Majitel bytu 3+kk v novostavbě developerského projektu nás požádal
o radu, protože se mu nelíbilo umístění vany v koupelně a celkově nebyl
spokojen s nabízeným standardem. Po prohlídce jsme se domluvili na kompletní
proměně interiéru.
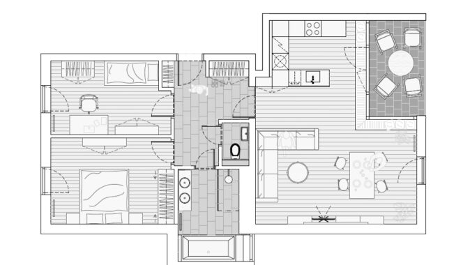
V rámci hrubé stavby jsme zvětšili průchod do obytné části a umístili sem velké
prosklené dveře ze surové oceli. Prostor se otevřel a prosvětlil. Také jsme
přebourali příčky, vytvořili niku na vestavnou skříň a tím podstatně rozšířili
úložné prostory.
Při první prohlídce se ukázalo, že prostor koupelny není plně využit. Měla tu
být jen malá vana a jedno umyvadlo. My jsme přišli s nabídkou velkorysejšího
řešení, původní vanu jsme vyměnili za větší a umístili ji do čela koupelny. Tím
se zvětšil prostor, který jsme doplnili o sprchu a další umyvadlo. V naší
koncepci hraje důležitou roli i kvalita materiálu. Proto jsme se rozhodli
nahradit keramický obklad za velkoformátové kamenné desky a na zadní stěnu jsme
umístili podsvícený onyx.
Kuchyňskou linku jsme navrhli na míru. Pracovní plocha je z masivní dubové
desky, skříňky jsou v bílém matném laku. Do linky jsme zakomponovali onyx jako
sjednocující prvek, abychom dosáhli kontinuity bytu. Zajímavým detailem je
zapuštěné čiré sklo nad pracovní deskou.
Pečlivě jsme vybírali podlahy. Místo navrženého vinylu jsme do obytných
místností umístili podlahy dřevěné, do koupelny a chodby kamenné. Přírodní
materiály jsou odolnější, lépe vypadají a důstojně stárnou.
Důležitou součástí interiéru jsou povrchy stěn a stropů. V bytě jsou použity
tradiční přírodní kletované omítky s viditelnou kresbou. Kromě toho jsme
navrhli atypické bezfalcované dveře a obklady zapuštěné do omítky, protože
věříme, že klíčem ke kvalitnímu bydlení jsou promyšlené detaily.
Standartní plechové radiátory, původně umístěné před okny lodžie, jsme
nahradili za skrytá tělesa, která jsme zahalili do dubového masívu, díky tomu
tak vznikla vytápěná lavice na posezení.
Autorská zpráva
Foto: David Korsa
Místo: Brno
Autoři: Václav Navrátil, Jan Sedláček





















Architektura musí souviset s místem, nikoli místo s architekturou. Proto jakékoli stavby umožňující realizaci na různých místech nejsou ARCHITEKTUROU.
Z mého pohledu je fajn vidět, jak se i u tak „běžné“ věci, jako jsou překlady, řeší systémovost a přesnost!
Praktické řešení, hlavně z pohledu rychlosti výstavby a přesnosti👍 U těchto systémových prvků dává smysl, že zjednodušují realizaci a pomáhají…
Zajímavý posun ve stavebnictví, je vidět, že se dnes klade velký důraz hlavně na rychlost výstavby a přesnost provedení. Systémové…
Jako problém vidím hlavně "lavičky" v prostoru sdíleném s cyklisty. Neměly by mít třeba tyče s praporky, jako dětské nákupní…