Projekt rekonstrukce podkroví domu v historickém centru
Bratislavy reagoval na běžné problémy rozrůstající se rodiny. Jak komfortně
ubytovat tři děti a přitom neztratit prostor…
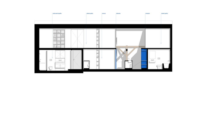
U návrhu jsme využili jednu z nejvýraznějších kvalit podkroví, výšku. Za
komínové stěny jsme umístili hygienický a technický trakt, jejich nízká světlá
výška nám umožnila další použití „zbytkového prostoru“ nad nimi. Právě sem
expandovaly půdorysně skromné dětské pokoje – menší pro dceru, větší pro dva
bratry. Na „patře“ tak vzniklo místo pro odpočinek a hry dětí, autonomní
krajina nad světem dospělých, oddělená jen skleněnými tabulemi, které
propouštějí světlo.
Autorská zpráva
Foto: Nora & Jakub Čaprnka
Autor: JRKVC – Peter Jurkovič, Kristína Tomanová
Velikost bytu: 150 m2
Architektura musí souviset s místem, nikoli místo s architekturou. Proto jakékoli stavby umožňující realizaci na různých místech nejsou ARCHITEKTUROU.




















































Nemám rád půdní byty, ale tenhle se povedl 🙂