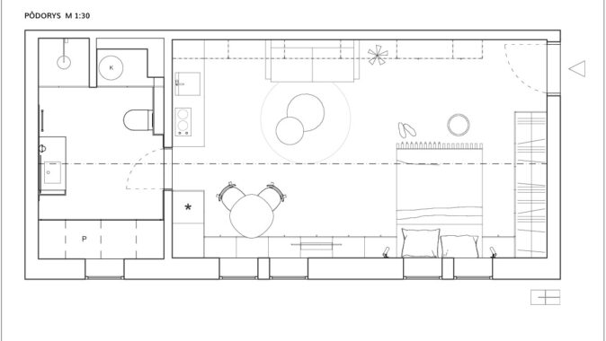
Podkrovní mini-loft má výhradně střešní okna, celý prostor dostatečně prosvětlilo pět oken Velux. Pro dosažení otevřeného charakteru byla odstraněna původní dělící příčka v předsíni. V jediné obytné místnosti se tak integruje předsíň, kuchyň, jídelna, obývák i ložnice. Příjemnou předností bytu je prostorná samostatná koupelna s vlastním oknem.
Prostor, světlo a samozřejmě rozloha nasměrovaly architekty k zařízení bytu po jeho obvodu. Toto nanejvýš praktické řešení v sobě zahrnuje i dostatek úložného prostoru a potlačení stísněného dojmu ze střešní šikminy. Jádro bytu tak zůstává vzdušné a průchodné. Spací kout je od zbytku místnosti opticky oddělen lamelovým paravánem, který z druhé strany slouží předsíni jako věšák. Veškerý nábytek je atypický a vyráběný na míru. Hlavní důraz byl kladen na kvalitní zpracování s moderními, snadno udržovatelnými materiály, v kombinaci s moderní technologií.
Úsporná logická dispozice, minimalistický design a množství skrytých nik pro lednici, oblečení nebo na pračku v koupelně pomáhají malometrážní byt prostorově a vizuálně nepřesytit. V tomto směru dobře spolupracují také světlé povrchy z lehce udržovatelného melaminu, které jsou doladěny petrolejovým barevným akcentem. Jedinečný výraz bytu dotváří terazzová struktura s jemným zrnem – v koupelně aplikovaná na obkladu a v obytné místnosti ve formě umývatelné tapety a konferenčních stolků. Laminátová podlaha v dubovém dekoru se stromečkovým vzorem odkazuje na staroměstský byt.
Interiér byl realizován výrobcem nábytku a subdodavatelskými firmami, s nimiž architektonické studio úzce spolupracuje. Všechny požadavky a představy tak bylo možné dotáhnut do nejmenšího detailu. Interiér byl řešen komplexně včetně doplňků a dekorací.
Lokalita: Trnava, Slovenská republika
Autoři návrhu: triha s. r. o.
Realizace: triha s. r. o.
Projekt: 2019
Realizace: 2019
Plocha: 39 m²
Foto: Iva Štarman
podle podkladů společnosti Velux
























Architektura musí souviset s místem, nikoli místo s architekturou. Proto jakékoli stavby umožňující realizaci na různých místech nejsou ARCHITEKTUROU.
Z mého pohledu je fajn vidět, jak se i u tak „běžné“ věci, jako jsou překlady, řeší systémovost a přesnost!
Praktické řešení, hlavně z pohledu rychlosti výstavby a přesnosti👍 U těchto systémových prvků dává smysl, že zjednodušují realizaci a pomáhají…
Zajímavý posun ve stavebnictví, je vidět, že se dnes klade velký důraz hlavně na rychlost výstavby a přesnost provedení. Systémové…
Jako problém vidím hlavně "lavičky" v prostoru sdíleném s cyklisty. Neměly by mít třeba tyče s praporky, jako dětské nákupní…