Úkol interiéru Provaznictví se nám od začátku líbil; chtěli jsme přetvořit nepřehledný stísněný prostor v prostor, kde budou výrobky a produkty zajímavě prezentovány a vše bude spolu souznít. Hlavním mottem naší rekonstrukce a nového interiéru byla velkorysost, otevřenost a přehlednost. Navrhli jsme propojení všech tří prostorů. Z historických plánů, které jsme našli ve stavebním archivu, bylo zřejmé, že původně byly dva prostory propojeny v jeden společný prostor.
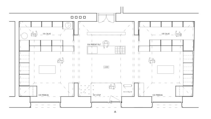
Naším návrhem propojení a vybourání zdí jsme prostor spojili v ucelenou jasnou dispozici. Navrhli a přesunuli jsme vstup do obchodu do středové části spojené dispozice, kde jsme umístili prodejní pult a centrální výstavní regál. Důležitý byl pro nás prvek možných vysokých stropů s klenbami. Odstranili jsme všechna vestavěná patra a navrátili prostorům původní výšku. V krajních prostorách obchodu jsme navrhli vložená půlpatra, která hmotově nenarušují pocit z vysokých prostor. Pod těmito půlpatry jsme ze strany prodejny navrhli regály s cívkami s lany a provazy, pod podlahou půlpater jsme umístili sklady pro prodejnu. Do horních vestavěných půlpater se vystoupá po schodištích, pod kterými jsme také navrhli regály s cívkami. Obě vestavěná půlpatra jsou navržena jako další prodejní plocha.
Stav celé fasády a parteru byl před rekonstrukcí ve špatném stavu. V roce 1974 byly původní dřevěné výkladce vybourány a nahrazeny ocelo-hliníkovými výkladci. Navrhli jsme jejich nahrazení novými dřevěnými výkladci v podobném designu jako původní dřevěné historické výkladce, které také lépe navazují na stávající výkladce vedlejšího obchodu. Barvu výkladců jsme sjednotili s barevností historických nově zrekonstruovaných vstupních dveří do domu.
Důležité bylo pro nás jak navržení označení provozovny kolmou výstrčí, která byla autorsky do detailu zpracována, tak výběr vizuálního stylu označení a grafiky provozovny společně s grafikem.
Nebylo jednoduché vymyslet, jak zajímavě a
jednoduše sjednotit povrchy na stěnách interiéru, které byly pod nánosy různých
zásahů a přestavování velmi narušeny. Vzhledem k omezeným financím
nepřipadalo v úvahu provedení kompletních nových omítek. Přes všechny nánosy různě barevných maleb jsme tedy přetáhli štuk, který
celý prostor sjednotil a jednotlivé vrstvy pod ním štuk barevně zpatinovaly.
Podlahu jsme navrhli z oktogonální slinuté dlažby, jejíž tvar se inspiruje historickými dlažbami. Celé vybavení provozovny je atypické, vyrobené na míru. Nábytek je materiálově řešen jako kombinace překližky z březové dýhy a antracitového deskového materiálu. Prodejní pult je navržen centrálně proti vstupu, přední plocha pultu je navržena jako instalace barevné škály provazů na špulkách a funguje i jako vzorník možných barev provazů.
Regály na cívky s lany a provazy v bočních částech současně slouží i konstrukčně jako nosný prvek pro patra. Zábradlí pater pak vychází z polí regálů, kdy mezi pole zábradlí jsou vypnuty sítě z produkce továrny provaznictví. Zábradlí tím pádem slouží i jako vzorkovník sítí. Na horních patrech jsou umístěny regály a je zde i místo pro schůzky.
Schodiště navazuje na regály a má stejný detail. Zábradlí schodiště je v kontrastu k barevným plochám s provazy a síťovému zábradlí navrženo jako čistá překližková deska zapadající do zubů schodišť. Na zděných stěnách podél schodišť jsou navržena lanová madla s kovovými úchyty. V každém krajním prostoru jsou navrženy atypické pojízdné měřící stolky z březové překližky.
Osvětlení provozovny je navrženo autorsky v každém poli instalací tří trubkových světel zavěšených v prostoru na různě barevných lanech.
Provaznictví má i svoji produkci výrobků, které prezentujeme jako instalace lan na šplh, žebříku a houpaček svěšených z kleneb ve vysokém prostoru. Provazy naskýtají mnoho možností a nápadů. Při našem návrhu bylo pro nás důležité, abychom interiér nápady s použitím provazů nezahltili a vytvořili jasný a přehledný návrh, který pracuje s celým prostorem a prezentuje provazy a výrobky z produkce továrny.
Autorská zpráva
Podlahu jsme navrhli z oktogonální slinuté dlažby, jejíž tvar se inspiruje historickými dlažbami. Celé vybavení provozovny je atypické, vyrobené na míru. Nábytek je materiálově řešen jako kombinace překližky z březové dýhy a antracitového deskového materiálu. Prodejní pult je navržen centrálně proti vstupu, přední plocha pultu je navržena jako instalace barevné škály provazů na špulkách a funguje i jako vzorník možných barev provazů.
Regály na cívky s lany a provazy v bočních částech současně slouží i konstrukčně jako nosný prvek pro patra. Zábradlí pater pak vychází z polí regálů, kdy mezi pole zábradlí jsou vypnuty sítě z produkce továrny provaznictví. Zábradlí tím pádem slouží i jako vzorkovník sítí. Na horních patrech jsou umístěny regály a je zde i místo pro schůzky.
Schodiště navazuje na regály a má stejný detail. Zábradlí schodiště je v kontrastu k barevným plochám s provazy a síťovému zábradlí navrženo jako čistá překližková deska zapadající do zubů schodišť. Na zděných stěnách podél schodišť jsou navržena lanová madla s kovovými úchyty. V každém krajním prostoru jsou navrženy atypické pojízdné měřící stolky z březové překližky.
Osvětlení provozovny je navrženo autorsky v každém poli instalací tří trubkových světel zavěšených v prostoru na různě barevných lanech.
Provaznictví má i svoji produkci výrobků, které prezentujeme jako instalace lan na šplh, žebříku a houpaček svěšených z kleneb ve vysokém prostoru. Provazy naskýtají mnoho možností a nápadů. Při našem návrhu bylo pro nás důležité, abychom interiér nápady s použitím provazů nezahltili a vytvořili jasný a přehledný návrh, který pracuje s celým prostorem a prezentuje provazy a výrobky z produkce továrny.
Autorská zpráva
Foto: Filip Šlapal
Autor: JRA – Jaroušek Rochová architekti – Ing. arch. Magdalena Rochová, Ing. arch. Radek Jaroušek
Adresa: Vítězná 10, Praha – Malá Strana
Projekt: 2017–2018
Realizace: 2020–2021
Celková plocha: 90 m2
Spolupráce: Lenka Mandelová, Jonatan Kuna – grafika
Adresa: Vítězná 10, Praha – Malá Strana
Projekt: 2017–2018
Realizace: 2020–2021
Celková plocha: 90 m2
Spolupráce: Lenka Mandelová, Jonatan Kuna – grafika






























Souhlasím, akustika se často podceňuje, přitom má velký vliv na celkový komfort bydlení!!!
Zajímavé, že HELUZ pořád tlačí nejen produktové novinky, ale i sdílení zkušeností z praxe 👍 Právě tohle mi dává největší…
Akustika je často podceňovaný, ale zásadní aspekt kvality bydlení... Článek dobře ukazuje, že nejde jen o samotný materiál, ale hlavně…
Oceňuji hlavně důraz na kvalitu provedení, nestačí jen dobrý materiál, ale i správná realizace. V praxi právě detaily často rozhodují…
Skvělý článek o akustické kvalitě staveb, která je často opomíjená, ale velmi důležitá. Systémy Heluz nabízejí dobrá řešení pro zvukovou…