Bytový dům se nachází v Praze na Vinohradech v blízkosti
Riegerových sadů – severní fasádou je orientován do ulice, jižní fasádou do
vnitrobloku. Zásadní pro nás bylo zachování jeho secesního charakteru. Hodnotné
secesní prvky, jako velké dvoukřídlé vstupní a interiérové dveře, vysoké
stropy, teracové schody s ornamenty, zábradlí schodiště, špaletová okna směrem
do ulice včetně parapetního obkladu, velké parkety, ornamentální štuky,
zábradlí lodžií jsme se snažili zachovat či nahradit replikami.
Fasádu do ulice jsme propojili s parterem, vznikly krajní vstupy do nových
provozoven protažením otvorů na stejnou úroveň jako vstup do domu. Středové
okno v nově vzniklém bistru bylo protaženo na úroveň podlahy provozovny. Ve
střešní části směrem do ulice vznikla tři ateliérová prosklení nové půdní
vestavby. Směrem do dvora došlo k výraznějším změnám. Do části půdy jsme
navrhli hmotu průběžného vikýře střešní vestavby. Vikýř je celý prosklený s
minimální tloušťkou profilů okenních otvorů. Při otevření se okno skryje do
zděné kapsy, vzniká tak jakási vnitřní terasa. Výraz vikýře jsme sjednotili
pomocí pevných a posuvných dřevěných roštů. Výtah jsme schovali do hmoty domu
směrem do dvora, do prostoru bývalých spíží. Byla posunuta okna na podestách ve
schodišťovém prostoru tak, aby byla možnost výstupu z výtahu na mezipodestách.
Krajní okna na obou stranách fasády jsou protažena na úroveň podlahy, středové
okno do obývacích částí zvětšeno. Před okna a na nově vzniklé balkóny byl
použit sjednocující prvek zábradlí, které je v designu původních zábradlí
lodžií.
Zahrada byla dorovnána až k domu zrušením zapuštěného dvorku. Mezi výstupem z
domu a zahradou vznikl zářez se schody, pozemek ohraničuje plot z betonových
cihel. Propojení přízemí domu s nebytovými prostory a zahrady je řešeno pomocí
terasy. Zahrada slouží obyvatelům domu a také jako venkovní zahrádka pro
bistro.
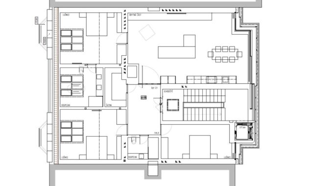
Jednotlivé byty a nebytové jednotky byly dispozičně
komplikované, mnohokrát v průběhu let také různě měněné a zanesené. Nová
dispozice přízemní části je rozdělena vstupem a schodištěm na dvě provozovny,
zamýšlené jako bistro a zmrzlinářství. Ve čtyřech patrech jsme navrhli
jednotnou dispozici se dvěma podobně velkými byty: jeden z nich má obytnou
část do ulice, druhý do dvora. Do bytu orientovaného obývací částí do ulice se
vstupuje přes velkou vstupní halu, která je propojena vysokými dveřmi do
hlavního obytného prostoru s kastlovými okny a arkýřem. Ze vstupní haly je přístupná
také šatna, koupelna a velká ložnice, orientovaná do dvora. Do bytu
orientovaného obývací částí do zahrady vstupujeme halou, která je oddělena od
obytného prostoru vestavnou šatní skříní. Obytný prostor je rozdělen na kuchyň,
jídelní část a obytnou část. Z obytné místnosti vede chodba, ze které je
napojení do šatny, koupelny a do velké ložnice s kastlovými okny, která je
orientována do ulice.
V půdní vestavbě v posledním patře je velký byt s proskleným průběžným vikýřem
do dvora a šikmou střechou do ulice. Do bytu se vchází vstupní halou, z níž
jsou vstupy do velkého obytného prostoru, šatny, koupelny, ložnice směrem do
ulice a pracovny směrem do dvora. Obytný prostor je orientován do dvora a má
velká okna s tenkými rámy.
Autorská zpráva
Foto: Filip Šlapal
Autor: JRA Jaroušek
Rochová architekti – Ing. arch. Radek Jaroušek, Ing. arch. Magdalena Rochová;
spolupráce Ing. Tomáš Hrubeš, Ing. Radek Brandejs, Techorg s.r.o., Klára
Jeníková, Marek Unger
Návrh zahrady: Atelier Partero
Užitná plocha: 1307 m2













































Kaskády Hranice jsou skvělým příkladem toho, že i bytová výstavba může mít kvalitní architekturu, promyšlený urbanismus a příjemný prostor pro…
Architektura musí souviset s místem, nikoli místo s architekturou. Proto jakékoli stavby umožňující realizaci na různých místech nejsou ARCHITEKTUROU.
Z mého pohledu je fajn vidět, jak se i u tak „běžné“ věci, jako jsou překlady, řeší systémovost a přesnost!
Praktické řešení, hlavně z pohledu rychlosti výstavby a přesnosti👍 U těchto systémových prvků dává smysl, že zjednodušují realizaci a pomáhají…
Zajímavý posun ve stavebnictví, je vidět, že se dnes klade velký důraz hlavně na rychlost výstavby a přesnost provedení. Systémové…