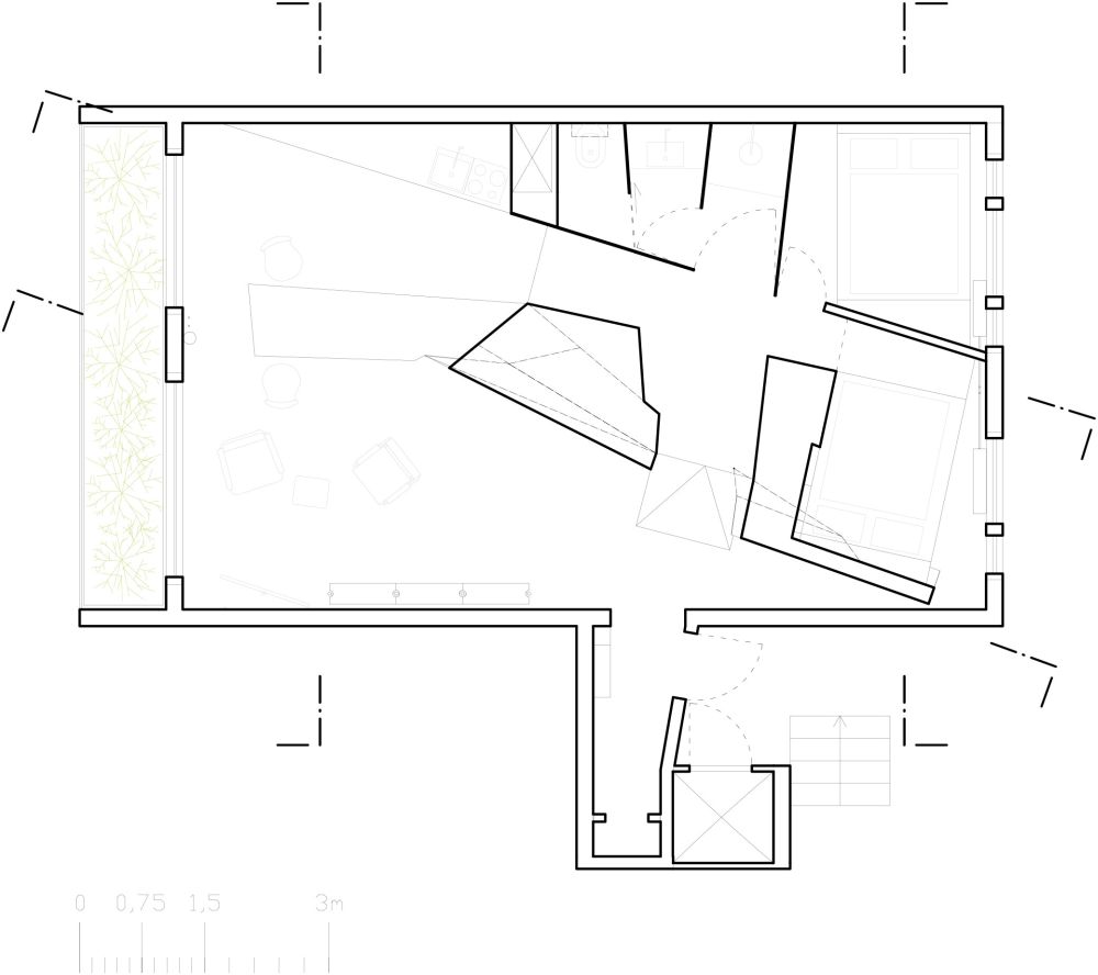
Primárním problémem panelových bytů je jejich nekvalitní zpracování, vizuální
stav a nevhodné řešení dispozice. Především jde o rozdělení na mnoho malých
místností, tmavých chodeb a koutů a také typického pachu. Problém těchto bytů nevzešel jen z jejich morálního opotřebení, stačí, když je srovnáme s byty z 19. a počátku 20. století… Pro zlepšení proto navrhujeme odstranit veškeré dělicí příčky, které nejsou z betonu. Základní ideou je odkrýt panelovou podstatu a do ní umístit nový
organismus, který do bytu přiletěl a rozevřel své skleněné a lesklé útroby.
Je třeba odstranit původní dispozici, elektroinstalaci
a vedení vody a zachovat jen panelové stěny. Ty se opískují a ukážou tak pravou
podstatu prostoru. Prostoru, který díky svému otevření má alespoň nějakou
hodnotu. Do tohoto prostoru se pak vloží organismus, který v bytě vytvoří nové
prostory. Zároveň tento organismus necloní volnému pohledu na celý prostor.
Díky tomu by měl byt působit vzdušným a větším dojmem než ve skutečnosti je.
Důležitá je také práce se skleněnými stěnami, které prostor prohlubují, a také
s odrazivými plochami, které jej opticky zvětšují a navíc odrážejí světlo.
Podstatné je totiž byt i maximálně prosvětlit.
Samotný objekt by měl být hodnotným nábytkovým kusem
pokrytým dýhou. Ta bude řešena „zrcadlovým skládáním” a finálně upravena speciálním
vysoce lesklým a kvalitním povrchem – šelakovou politurou. Podstatou je tedy
návrat kvality do prostoru bez hodnoty. Jedinou hodnotou je prostor. Dle našeho
názoru je také důležité se samotným vkladem co nejvíce distancovat od zavedených
schémat úprav bytů.
Autorská zpráva




















Architektura musí souviset s místem, nikoli místo s architekturou. Proto jakékoli stavby umožňující realizaci na různých místech nejsou ARCHITEKTUROU.
Z mého pohledu je fajn vidět, jak se i u tak „běžné“ věci, jako jsou překlady, řeší systémovost a přesnost!
Praktické řešení, hlavně z pohledu rychlosti výstavby a přesnosti👍 U těchto systémových prvků dává smysl, že zjednodušují realizaci a pomáhají…
Zajímavý posun ve stavebnictví, je vidět, že se dnes klade velký důraz hlavně na rychlost výstavby a přesnost provedení. Systémové…
Jako problém vidím hlavně "lavičky" v prostoru sdíleném s cyklisty. Neměly by mít třeba tyče s praporky, jako dětské nákupní…