Návrh domu vychází z místní lokality, kterou tvoří
rozptýlená vilová zástavba volně přecházející do zahuštěnější sídelní struktury
bytových domů. Za stavebním pozemkem se nachází Tyršův stadion, od kterého je dům
s byty vyššího standardu oddělen zahradou se vzrostlými stromy.
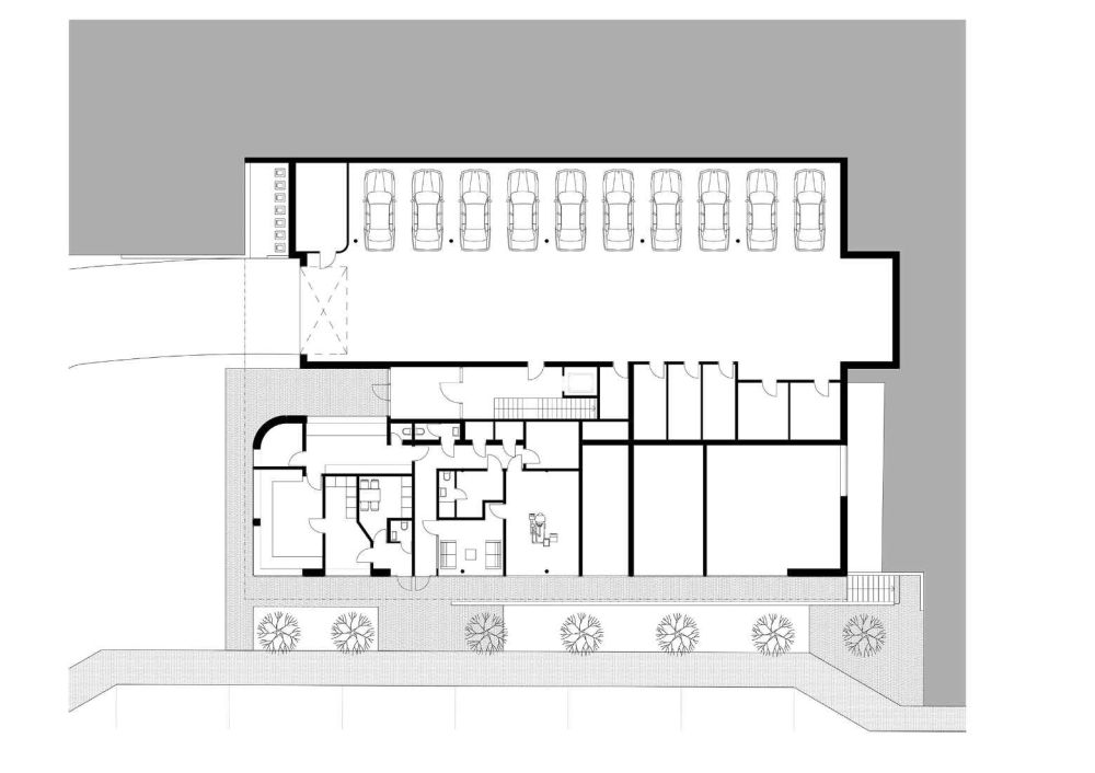
Třípodlažní stavba má polyfunkční parter a podzemní garáže. V nejvyšším podlaží
se nachází dva byty, ve středním podlaží tři až čtyři byty. Součástí všech bytů
jsou terasy obíhající ze všech stran domu. Dva byty ve druhém podlaží jsou
navíc přímo otevřeny do parku. Z veřejné části tohoto prostoru jsou k těmto
bytům přičleněny soukromé zahrady.
V parteru jsou prostory pro zdravotnická zařízení a laboratoře. Tyto provozy jsou
přístupné z ulice Mendlova.
Autorská zpráva
Foto: Studio Toast
Místo: Mendlova ulice, Opava
Stavebník: REZIDENCE MENDLOVA s.r.o.
Autor studie: Kamil Mrva Architects, s.r.o. – Kamil Mrva, Martin Rosa
Autor projektu: AMG studio s.r.o.– Martin Matušek


























Architektura musí souviset s místem, nikoli místo s architekturou. Proto jakékoli stavby umožňující realizaci na různých místech nejsou ARCHITEKTUROU.
Z mého pohledu je fajn vidět, jak se i u tak „běžné“ věci, jako jsou překlady, řeší systémovost a přesnost!
Praktické řešení, hlavně z pohledu rychlosti výstavby a přesnosti👍 U těchto systémových prvků dává smysl, že zjednodušují realizaci a pomáhají…
Zajímavý posun ve stavebnictví, je vidět, že se dnes klade velký důraz hlavně na rychlost výstavby a přesnost provedení. Systémové…
Jako problém vidím hlavně "lavičky" v prostoru sdíleném s cyklisty. Neměly by mít třeba tyče s praporky, jako dětské nákupní…