Ze strany ulice předprostor domu vymezuje oplocení a úseky ohradní opuková zeď. Na vjezdovou bránu a branku pak navazuje garáž pro čtyři osobní auta. Její stěny jsou rovněž opukové a tvoří součást oplocení, nad nímž se z uliční strany projevují pouze lemy ploché střechy nad korunou zdi.
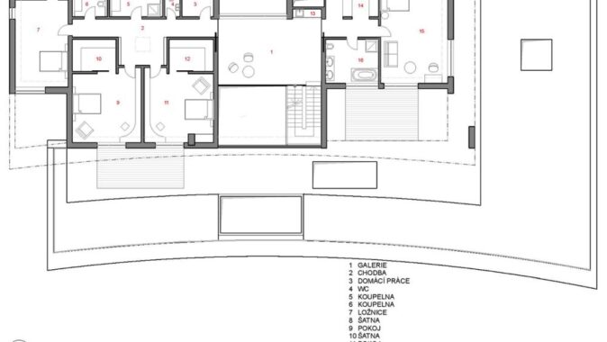
V rozsáhlém přízemí je umístěna převážná část místností
společenské a domácí obytné zóny. Hlavní vstupní hala zpřístupňuje všechny zóny
objektu – integrované garáže na západní straně, společenskou zónu na straně
druhé, a především pak ústí do jádra celého domu, určeného rodině –
dvoupodlažního prostoru s jídelnou a schodištěm, spojujícím obě nadzemní
podlaží. Na toto jádro navazuje na jedné straně kuchyň s příslušenstvím a
obytný pokoj, na straně druhé prostor bazénu a vířivky, orientovaný podél
jihozápadního průčelí a obrácený do zahrady, jenž je posléze propojen přes
předsíň wellness se saunou a s částí společenskou. Tato zóna obsahuje kromě šatny, hygienického zázemí,
přípravny jídel, a pracovny hlavně společenskou místnost s barovým pultem a je
zároveň přístupná i dalším samostatným vstupem z venku.
Dům je s rozsáhlou zahradou propojen terasou, krytou
přesahem střechy s prosvětleným otvorem v nejhlubším místě. Ve vodorovné rovině
část terasy kryjí otočné lamely. Svislé lamely chrání i jihozápadní část
horního podlaží budovy.
V patře se nachází soukromá část domu, dělená galerií –
ložnice rodičů s šatnou a koupelnou, o severozápadní křídlo se dělí pokoje dětí a pokoj hosta s příslušnými
šatnami, dvěma koupelnami, dále je tu také místnost pro domácí práce. Galerie je doplněna čajovou kuchyňkou, skrytou v obložení severní
stěny. V podzemním podlaží je skladové a technické zázemí.
Materiálové řešení je založeno na působení jednotící bílé
omítky základní hmoty domu, kombinované v parteru s plochami opukové přizdívky
na zapuštěných partiích fasád a v patře s obkladem překližkovými panely. Barva
dřeva se rovněž uplatňuje na svislých lamelách a vodorovných otočných lamelách
pergoly, umístěných nad východem z jídelny do zahrady a nad částmi střešní
terasy, přiléhajících k ložnicím v patře. Kovové prvky jsou tmavošedé
(oplechování ustoupené části atiky, okna, posuvné balkonové dveře, hliníkové
horizontální žaluzie). Zábradlí terasy je skleněné.
Motivem, propojujícím interiér i exteriér, je voda – z prostoru jídelny, kde její působení znásobuje zrcadlový podhled schodišťového ramene, jakoby „vytéká“ do zahrady a kolem venkovní pobytové plochy, směřuje k říčce Loučné.
Zahrada je pojata krajinářským způsobem, s několika terénními vlnami. Části určené k pobytu byly vydlážděny a jejich okolí doplňují trvalkové záhony.
Autorská zpráva
Foto: © Nikola Tláskalová, 2018, pro projekt www.lam.litomysl.cz.
Dále také Ondřej Getzel a archiv firmy Hanák
Autoři: Architektonický atelier ABV – Ing. arch. Petr Benda, Ing. arch. Eva Letovská; spolupráce Ing. arch. Veronika Suchánková
Projekt: Apolo CZ, s.r.o.
Motivem, propojujícím interiér i exteriér, je voda – z prostoru jídelny, kde její působení znásobuje zrcadlový podhled schodišťového ramene, jakoby „vytéká“ do zahrady a kolem venkovní pobytové plochy, směřuje k říčce Loučné.
Zahrada je pojata krajinářským způsobem, s několika terénními vlnami. Části určené k pobytu byly vydlážděny a jejich okolí doplňují trvalkové záhony.
Autorská zpráva
Foto: © Nikola Tláskalová, 2018, pro projekt www.lam.litomysl.cz.
Dále také Ondřej Getzel a archiv firmy Hanák
Autoři: Architektonický atelier ABV – Ing. arch. Petr Benda, Ing. arch. Eva Letovská; spolupráce Ing. arch. Veronika Suchánková
Projekt: Apolo CZ, s.r.o.










































Architektura musí souviset s místem, nikoli místo s architekturou. Proto jakékoli stavby umožňující realizaci na různých místech nejsou ARCHITEKTUROU.
Z mého pohledu je fajn vidět, jak se i u tak „běžné“ věci, jako jsou překlady, řeší systémovost a přesnost!
Praktické řešení, hlavně z pohledu rychlosti výstavby a přesnosti👍 U těchto systémových prvků dává smysl, že zjednodušují realizaci a pomáhají…
Zajímavý posun ve stavebnictví, je vidět, že se dnes klade velký důraz hlavně na rychlost výstavby a přesnost provedení. Systémové…
Jako problém vidím hlavně "lavičky" v prostoru sdíleném s cyklisty. Neměly by mít třeba tyče s praporky, jako dětské nákupní…