Velkopavlovická oblast je co do rozlohy vinic v České
republice největší, můžete tu stále ještě potkat vinařskou tradici, která je
nedílnou součástí života většiny místních obyvatel. Ne jinak je tomu i v
případě klientů, kteří oslovili architektonickou kancelář studioLIBRE pro návrh
svého vinařství. Rodinná firma, kde se tradice pěstování a výroby vína dědí již
po generace, došla do bodu, kdy jim výrobní i degustační a reprezentační
prostory již nestačí kapacitou ani nevyhovují kvalitou.
Pro oba architekty bylo toto zadání výzvou. Robert Jelínek a Jiří Vojtěšek z
Moravy pocházejí, a ač se usadili v Praze, téma vinařství pro ně bylo srdeční
záležitostí: „Obory, ve kterých se snoubí tradice a moderní přístup k
podnikání, jsou právě ta místa, odkud pro nás vycházejí ta nejzajímavější
zadání,“ říkají. V rámci své praxe už dokončili několik projektů sídel malých a
středních firem, projekt vinařství zpracovávali poprvé. Klientem je rodinná
firma, kterou vedou otec a syn. Oba měli v určitých ohledech rozdílný pohled na
to, jak by jejich vinařství mělo vypadat a fungovat. Tento dialog bylo skvělé
sledovat i moderovat a ve výsledku určil také výslednou podobu stavby.
Která témata
z diskuze se do podoby vinařství nejvíce promítla?
Způsob výroby vína – jako architekti o něm máme i přes veškeré studium,
které jsme si museli doplnit, pouze kusou představu. Dlouhá diskuse se vedla o
tom, jak má výroba vína pobíhat. Jestli bezbariérovým způsobem na jednom
podlaží, nebo přirozeným spádem – gravitační výrobou – na více výškových
úrovních.
Klienti od začátku preferovali gravitační způsob výroby vína, nebyli si ale
jisti objemem a plochou, kterou pro ni potřebují. K rozhodnutí přispěl i
pozemek, který se nachází v prudkém svahu na hraně obce. Svah překonává výškový
rozdíl tří podlaží. V rámci úvodních analýz jsme prověřili obě možnosti a
jejich dopad do plochy domu a výsledných finančních nákladů. Když jsme tyto
varianty srovnali, bylo rozhodnuto.
Takže dům vypadá podle
toho, jak funguje?
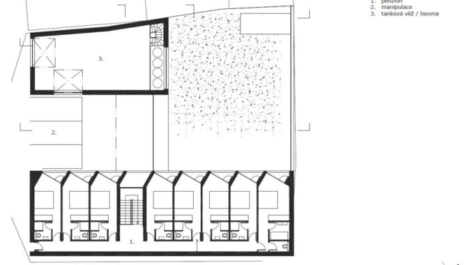
Přesně tak. Naše zadání bylo o to složitější, že v rámci vinařství klienti chtěli
vybudovat také prostory pro degustaci a ubytování hostů. Bylo důležité udržet
tyto prostory od výroby oddělené, ale zároveň umožnit návštěvníkům s výrobou
vína neustálý a přiměřený kontakt. Jedním
z našich cílů totiž bylo, aby se výroba stala další atrakcí pro návštěvníky
vinařství. Chtěli jsme dosáhnout toho, aby měli možnost se s procesem výroby
seznámit a poznat ne jenom jak víno chutná, ale také kolik práce, úsilí a
vědomostí za každou sklenkou stojí.
Jak to vypadá v praxi?
Host, který si přijde koupit pouze několik lahví do prodejny, má průhled do
expediční haly, která s prodejnou sousedí. Tyto dva prostory je možné dokonce
zcela propojit. Prodejně navíc vévodí prosklená místnost se zvláštním klimatickým
režimem pro barikové sudy, která sama o sobě nejde přehlédnout. Pokud vinařství navštíví skupina hostů
a ve druhém podlaží víno degustuje, má k dispozici kromě velké terasy také
průhled a průchod do tankové galerie, ze které mohou shlédnout z výšky druhého
poschodí na vysoké nerezové kryotanky pro zrání vína.
Proč myslíte, že je
kontakt návštěvníků s výrobou tolik důležitý?
V současné konkurenci se množství firem nesnaží svým klientům nabídnout
pouze produkt, ale také něco navíc. Prodat řemeslo, tradici, kvalitu. Ale
zákazník, který nespoléhá pouze na reklamu, nemá mnoho příležitostí se o tom
přesvědčit na vlastní oči. Mít možnost poznat odkud ta která věc pochází, kdo
ji vyrábí a jakým způsobem, znamená vytvořit si k ní vztah a pochopit její
hodnotu.
A k tomuto může pomoci
architektura?
Jsme o tom přesvědčeni. Pokud uspořádáte dům tak, že návštěvníka necháte
nahlédnout i do prostorů, kde se víno vyrábí, má pak z jeho ochutnávání větší
zážitek. Projekt vinařství je navržený tak, že v každém podlaží domu má
návštěvník s některou z výrobních částí kontakt a může tak celý proces vidět a
pochopit.
To ale klade velké
nároky na uživatele domu
Měli jsme to štěstí, že jsme si s klientem v tomto ohledu od začátku rozuměli.
Není to ale nic, co by bylo převratně nové. Pokud se podíváme za hranice do
Rakouska, je podobný přístup častý a není problém podobné propojení vidět už i
u nás. Ať už se jedná o vinařství, cukrárnu, nebo restauraci, kde máte průhled
do kuchyně.
Tohoto propojení lze
nicméně docílit pouze u firem, které něco vyrábí. U kanceláře to asi úplně
možné není?
Kanceláře nejsou nic jiného než továrny dneška. Mají i specifické požadavky
především na kvalitu vnitřního prostředí. Samozřejmě že na řady stolů s
počítači není tak příjemný pohled jako na výrobu vína, ale i tady si jako
architekti umíme poradit. V rámci práce pro firemní klienty a projektů jejich
sídel vždy vycházíme z toho, co firma dělá. Kancelář marketingové agentury nebo
grafického studia bude vypadat z podstaty jejich práce jinak než u banky či
burzovních makléřů.
Na začátku jste
zmínili, že z Moravy pocházíte, co vás přivedlo do Prahy?
Každého z nás do Prahy přivedla jiná životní zkušenost a teprve tady jsme
se po letech opět setkali. V rámci ČR není až tak důležité, kde máte kancelář,
autem se dostanete za pár hodin z jednoho konce na druhý. To, že pocházíme z
Moravy a jsme v Praze, vnímáme jako přínos. Na Moravě nás mají za Pražáky, v
Praze za Moraváky a my jsme doma všude, díky tomu máme taky zdravý nadhled,
který v naší práci pomáhá.
-red-



















Architektura musí souviset s místem, nikoli místo s architekturou. Proto jakékoli stavby umožňující realizaci na různých místech nejsou ARCHITEKTUROU.
Z mého pohledu je fajn vidět, jak se i u tak „běžné“ věci, jako jsou překlady, řeší systémovost a přesnost!
Praktické řešení, hlavně z pohledu rychlosti výstavby a přesnosti👍 U těchto systémových prvků dává smysl, že zjednodušují realizaci a pomáhají…
Zajímavý posun ve stavebnictví, je vidět, že se dnes klade velký důraz hlavně na rychlost výstavby a přesnost provedení. Systémové…
Jako problém vidím hlavně "lavičky" v prostoru sdíleném s cyklisty. Neměly by mít třeba tyče s praporky, jako dětské nákupní…