Místo: Prudký,
úrodný, jižně orientovaný svah.
Houstnoucí zástavba domů a chat v prostoru, který byl ještě zhruba před půl
stoletím stavebně téměř nepoznamenán (pole, louky, sady).
Kvalita stavěného, na rozdíl od kvantity, je v čase rapidně upadající.
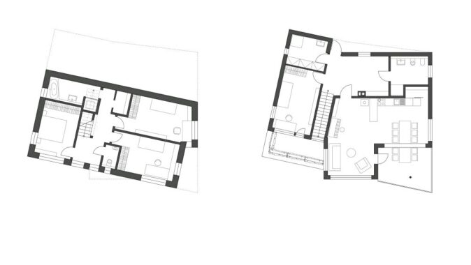
Návrh: Dům
umisťujeme do horní části pozemku a výškově ho usazujeme tak, aby obě podlaží
dobře navazovala na svažitý terén. Nabízí se tu široce otevřený výhled do
labského údolí a hlavní domovní vstup je relativně snadno dostupný z přilehlé
komunikace.
Stavitel původního dřevěného přístřešku uvažoval při stavbě podobně. Zděný sokl
dům pevně usazuje do meandru vrstevnic, dřevěné patro otáčející se k jihu je
holdem anonymním mistrům chat.
Nový dům považujeme za volnou reinterpretaci a pokračování původního objektu.
Plášť zrcadlí barevnost panoramatu Českého Středohoří v mihotavém letním oparu.
Autorská zpráva
Foto: Pavel Plánička
Místo: Zlatá stezka, Ústí nad Labem – Brná
Plocha pozemku: 1075 m2
Zastavěná plocha: 101 m2
Užitná plocha: 160 m2
Obestavěný prostor: 700 m3
































Architektura musí souviset s místem, nikoli místo s architekturou. Proto jakékoli stavby umožňující realizaci na různých místech nejsou ARCHITEKTUROU.
Z mého pohledu je fajn vidět, jak se i u tak „běžné“ věci, jako jsou překlady, řeší systémovost a přesnost!
Praktické řešení, hlavně z pohledu rychlosti výstavby a přesnosti👍 U těchto systémových prvků dává smysl, že zjednodušují realizaci a pomáhají…
Zajímavý posun ve stavebnictví, je vidět, že se dnes klade velký důraz hlavně na rychlost výstavby a přesnost provedení. Systémové…
Jako problém vidím hlavně "lavičky" v prostoru sdíleném s cyklisty. Neměly by mít třeba tyče s praporky, jako dětské nákupní…