Na začátku investor oslovil tři architektonické kanceláře a
ze zpracovaných studií si vybral tu naši. Je třeba zmínit, že postupoval
pečlivě a systematicky, jednání z jeho strany bylo vždy korektní a hned na samém
začátku se nebál důvěřovat odborníkům – od architektů počínaje přes technický
dozor a stavební firmu konče. Do projektu zasahoval pouze z hlediska
uživatelských požadavků a technickou stránku včetně estetické nechal plně na
profesionálech. Z tohoto pohledu byla spolupráce s ním výjimečná.
Pozemek se nachází v jedné z obcí západně od Prahy a zároveň
v nejvyšším bodě obce pod lesem. Těží tak z výhledu na bohatě tvarovanou krajinu.
Terén parcely je svažitý s výhledem na jih, od začátku bylo tedy jasné, že zahradu
umístíme na sever s výhledem do listnatého lesa. Tato charakteristika v zásadě
určila počáteční koncepci domu, a sice jeho určitou oboustrannost – z jihu
výhledy a slunce, ze severu kontakt se zahradou a výhled na les.
Svažitý terén umožnil částečně zapustit suterén s převážně technickou funkcí
včetně garáže pro dvě auta. Součástí suterénu je i byt správce domu s vlastním
přístupem na zahradu. Úroveň prvního nadzemního podlaží na severu navazuje na
vrstevnici svahu, kde byla terénním zářezem vytvořena menší rovinná plocha
zahrady. Do zahrady je dům zcela prosklený s přímým přístupem z kuchyně a
obývacího pokoje, jež spojuje terasa. Na přání investora je kuchyň v samostatné
místnosti, oddělená od obývacího pokoje.
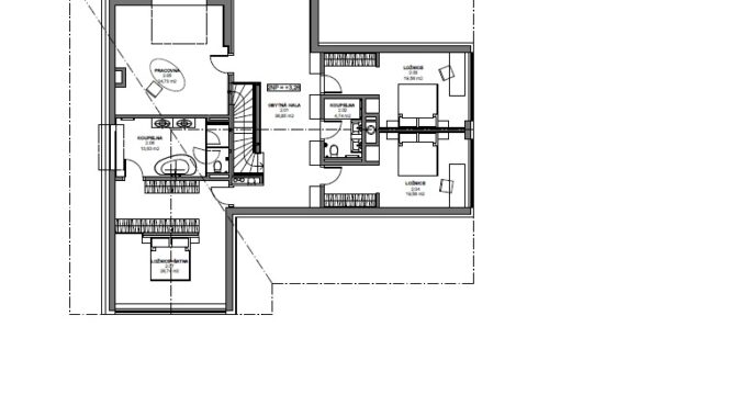
Z jihu je hlavní vstup po venkovním schodišti, dále pak obývací pokoj, který je
oboustranně orientován, poskytuje výhled do údolí a využívá jižní slunce. V
západním křídle je sociální zázemí a dva pokoje pro hosty – jeden z nich má
vlastní terasu s výhledem na jih. V podkroví jsou tři ložnice, sociální
zázemí a pracovna. Chodba s dominantním oknem s výhledem na les byla, i díky
své prostornosti, od začátku koncipována jako obytná s knihovnou a stala se
společenskou místností pro podkroví. Ložnice mají okna ve štítech – díky tomu
nebylo nutné využít nouzové řešení střešních oken. Master ložnice pak zaujímá
výsadní pozici, kdy díky převýšení využívá opravdu výjimečného výhledu.
Náročnou úlohou bylo řešení oken ve štítech. Podstatou bylo nevytvářet formu
oken, ale štít zcela prosklít. To samo o osobě nese komplikace v podobně ploch,
které musí být buď neprůhledné nebo tepelně izolační tak, jak štít kryje
prostory s různou funkcí. Nakonec se to podařilo vyřešit pomocí potištěného
skla přecházejícího plynule z plných neprůhledných ploch po zcela čiré a tím vytvořit
kýžený efekt.
Hmota domu jako taková vychází z oboustranně řešeného
obývacího pokoje, který je umístěn jako samostatné křídlo napříč pozemkem. Kolmo
na něj navazuje křídlo se zázemím a přidruženými místnostmi. Půdorysně tak dům
vytváří písmeno T. Díky polozapuštěnému suterénu je fasáda z jihu částečně
třípodlažní, což se podařilo opticky eliminovat horizontálními prvky teras a
markýz. Z pohledu ze zahrady dům díky rozložité střeše působí jako nízký a má
přijatelné měřítko. Přízemí – tedy prostřední podlaží – je prosklené, působí
vzdušně a umožňuje průhled na zahradu. V této úrovni je výrazným prvkem kostka
vstupní haly z cedrového dřeva. Jasné označení vstupu považujeme za jeden z
charakteristických prvků individuálního bydlení. Podél východní a západní
hranice je masivní kamenná stěna, která zajišťuje soukromí vůči sousedním objektům.
Podkroví je ukryto pod rozložitou střechou, která má přesahy a zcela tak
zakrývá jižní i severní terasu.
Dům je vybaven moderními systémy vytápění za použití
tepelného čerpadla vzduch-voda, rekuperační jednotkou zajišťující příjemné
vnitřní prostředí, centrálním vysavačem s automatickým čištěním, chlazením
ložnic opět za použití tepelného čerpadla, sofistikovaným vodním hospodářstvím
využívající dešťovou vodu k zálivce a eventuálně zásobováním rezervoárů WC.
Elektroinstalace byla na přání investora koncipována jako konveční bez použití
inteligentního systému pro větší spolehlivost a snadné ovládání. Dům je
spotřebou energie zařazen do kategorie nízkoenergetický. Podařilo se tak
realizovat dům tradiční formy, ale s vytříbenými detaily a zvládnutou proporcí
jednotlivých prvků. V řadě běžné produkce sousedních domů působí zcela výjimečně.
Autorská zpráva
Foto: Filip Šlapal
Místo: ulice Na Močidlech, Jíloviště, Praha-západ
Autor: ABM architekti s.r.o. – Ing. arch. Petr Bouřil, Ing. arch. Lukáš Bílek,
Ing. arch. Tereza Vrbová, Ing. arch. Michal Pavlík
Kaskády Hranice jsou skvělým příkladem toho, že i bytová výstavba může mít kvalitní architekturu, promyšlený urbanismus a příjemný prostor pro…




















Zdravím vás, tohle je prostě moc a moc pěkné řešení, a odkaz si ukládám a budu se inspirovat do budoucna. Více takových řešení.
Díky