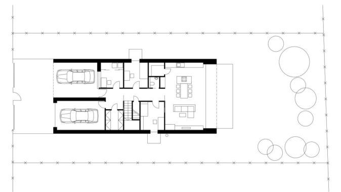
Projekt odpovídá tvaru pozemku, situování příjezdové cesty a proporcím zahrady. Výsledná realizace je vlastně zrcadlovým odrazem dvou totožných stavebních struktur ve tvaru písmene L. Maximálně jsme tu využili malé šířky pozemku, přičemž jsme značně zasáhli do jeho hloubky. To dává obyvatelům domu nezbytné soukromí. Zmíněné části domu jsou rozděleny na úsek uliční, kde se skrývá mimo jiné i parkovací část, a úsek zabíhající do zahrady, kde se nachází převážně část obytná. Fasáda uliční části má bílou barvu, zatímco do zahrady má dům cihličkové provedení.
Dům je strukturován na tři provozní části. První z nich je část parkovací s předsíní a technickou místností. Druhou, prostřední část tvoří spojovací chodba a pracovna. Obytná, zahradní část obsahujedenní zónu, pokoj pro hosty a koupelnu.
Druhé podlaží kopíruje, co se týče sekcí, přízemní patro. Nacházejí se zde dětské pokoje a ložnice s šatnou a vlastní koupelnou.
Autorská zpráva
Autor: Master Design s.r.o. – Martin Náhlovský, Michal
Janáč, Jan Jadrníček
Podlahová plocha: 190 m2

























Jako problém vidím hlavně "lavičky" v prostoru sdíleném s cyklisty. Neměly by mít třeba tyče s praporky, jako dětské nákupní…
Zdravím, děkuji za informaci o výstavbě v areálu i zmínku o vile, žel chybí aspoň informace, zda vila stojí a…
Článek působí docela věcně a snaží se jít víc po principu než jen po marketingu, což je za mě plus…
Chybí schody z levého břehu na most, takže s Chuchle přijedeme na Lihovar , musíme přejít Strakonickou a pak teprve…
Dobrý den,žádám o informace o novinkách. J.J.Kubát