Dům leží v místě, které splňuje představy investora o jeho
bydlení – klid a zároveň město na dosah. Lokalita, kde rodinný dům stojí, byla
koupena developerem s cílem vytvořit urbanisticky i architektonicky ucelenou
oblast. Tato skutečnost do návrhu přinesla spoustu pro i proti: například už
byly dány přísné regulativy jako uliční čára, výška hřebene, sklon a tvar
střechy, zastavěnost a také podlažnost. Investorovu i naši představu bylo tedy
nutno se všemi podmínkami i dalšími vlivy protnout a zkusit najít určitou
svobodu.
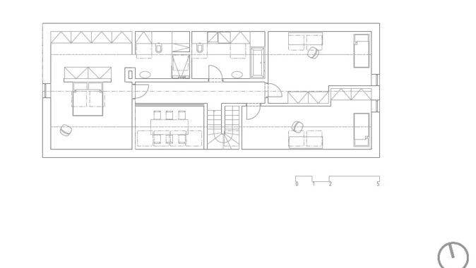
Dům je navržen pro čtyřčlennou rodinu s dětmi. Jde o samostatný nepodsklepený
dvoupodlažní objekt, pozemek je ze severu a východu obklopen komunikací.
Půdorysně se jedná o obdélník se sedlovou střechou. V rámci hlavního objektu je
současně i garáž pro jeden automobil s pracovním koutem.
V přízemí byla jako hlavní prostor vytvořena kuchyně s jídelnou a varným
ostrůvkem, což byl hlavní požadavek klienta na jeho upřednostnění před obývacím
pokojem. Výhled do zahrady s bazénem je z jídelny i obývacího prostoru, který je
prodloužen o krytou část venkovní terasy, skrytou pod vykonzolovanou částí
ložnice rodičů. V horním patře se nachází ložnice s koupelnami, přístupné z
prosvětlené galerie.
Konstrukčně se jedná o zděnou stavbu s monolitickými stropy,
střešní krytina je betonová skládaná, okna hliníková. Fasáda je kombinací bílé
omítky a svislého rastru obkladu modřínem, který kryje vjezd do garáže.
Autorská zpráva
Foto: Jiří Ernest
Autor: Nestudio v.s.a – Ing. arch. Vojtěch Hajný; LINK
studio s.r.o. – Ing. arch. Michala Malánová
Generální projektant: Nestudio v.s.a
Dodavatel: MB Stavitelství s.r.o.
Plocha pozemku: 1140 m2
Zastavěná plocha: 160 m2
Užitná plocha: 180 m2





















Architektura musí souviset s místem, nikoli místo s architekturou. Proto jakékoli stavby umožňující realizaci na různých místech nejsou ARCHITEKTUROU.
Z mého pohledu je fajn vidět, jak se i u tak „běžné“ věci, jako jsou překlady, řeší systémovost a přesnost!
Praktické řešení, hlavně z pohledu rychlosti výstavby a přesnosti👍 U těchto systémových prvků dává smysl, že zjednodušují realizaci a pomáhají…
Zajímavý posun ve stavebnictví, je vidět, že se dnes klade velký důraz hlavně na rychlost výstavby a přesnost provedení. Systémové…
Jako problém vidím hlavně "lavičky" v prostoru sdíleném s cyklisty. Neměly by mít třeba tyče s praporky, jako dětské nákupní…