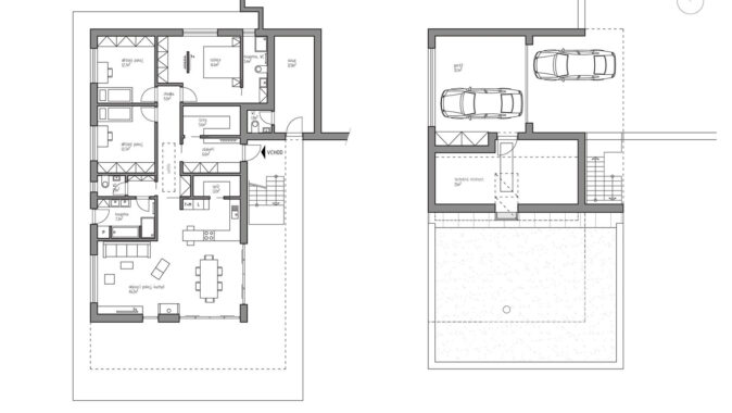
Rodinný dům Horská se nachází ve stejnojmenné ulici a stojí na
svažitém pozemku. Je koncipován jako jednoduchá dvojúrovňová stavba
s úrovněmi rozdělenými podle terénu. Horní část, která leží v úrovni
ulice Horská, slouží pro příjezd a parkování vozů, dolní je určena pro
zahradu. Na tyto úrovně funkčně navazují dvě podlaží budovy. První patro
tvoří parking a technická místnost, přízemí zabírají obytné prostory
a zázemí. Obě podlaží propojuje výrazné venkovní schodiště z betonu, na
které navazuje opěrná zeď vymezující předprostor s bazénem. Schodiště je
kryto zalomenou střechou. Ta zároveň funguje jako stínící prvek dřevěné
terasy před slunečními paprsky a deštěm. Výškové rozdíly jsou
v exteriéru řešeny opěrnými betonovými zdmi, u kterých se v budoucnu
počítá s estetickým zakrytím obrůstající zelení.
Hlavní vstup do domu se nachází pod venkovním schodištěm. Za ním
vedoucí chodba prostupuje prostředkem domu a ústí do velkoryse
navrženého obývacího pokoje s kuchyní. Stěny pokoje orientované jižním
směrem, tvoří velké posuvné výkladce, které pokoj dokonale propojují
s terasou a následně i zahradou a pouští dovnitř dostatek denního
světla.
Z hlavní chodby je rovněž možné vejít do dvou dětských pokojů,
sociálního zázemí a ložnice, disponující vlastní koupelnou a toaletou.
Technická místnost a garáž pro dva osobní automobily byly navrženy do
horního podlaží. Předprostor garáže nabízí venkovní kryté stání pro
další dvě vozidla a dostatečný prostor pro manipulaci s nimi.
AUTORSKÁ ZPRÁVA
Místo, ul. Horská, Liberec
Autoři: Jiří Písek, Jan Seyček, Jan Krauz
Termín: 2015–2018
Fotografie:
Viktor Jelínek
Kaskády Hranice jsou skvělým příkladem toho, že i bytová výstavba může mít kvalitní architekturu, promyšlený urbanismus a příjemný prostor pro…


























Děkuji za vysvětlení.
Rodinný dům mne zaujal, takže jsem si obrázky dlouze prohlížel. Fotografická dokumentace, respektive obrázek 9 (v pořadí) a obrázek 14 jsou v rozporu. Buď je ta fotografie (9) odjinud nebo je ten nákres přízemí (14) špatně.