Na přání mladé rodiny jsme navrhli otevřený, prosluněný a
vzdušný dům. Svou formou a dispozičním řešením využívá maximum z potenciálu
místa, reaguje na morfologii terénu a orientaci ke světovým stranám. I přes nepříznivou
orientaci pozemku splňuje přísná kritéria pasivního standardu.
Stavba je vzhledem k regulativům v území situována přibližně ve střední části
pozemku a člení ho tak přirozeně na dva subprostory. Do ulice otevřené jižní
předpolí domu s terasou – pozorovatelnou na ploše ze zatravněného pororoštu a
intimnější část zahrady se stinnou dřevěnou terasou na severu. Z hlavního
objemu přízemí vystupuje v jihozápadní části hmota „slunečního trychtýře“,
který přes velkoformátové jižní okno umožňuje proslunit vnitřní dispozici až na
sever do hloubi interiéru. Převýšený obytný prostor se maximálně otevírá na jih
i sever – nechává domem plynout světlo, vzduch, krajinu a maže tak rozdíl mezi
exteriérem a interiérem.
Nad východní polovinou vyrůstá hmota 2. NP jednoduchého obdélného tvaru se
sklonem pultové střechy kopírujícím původní svah na pozemku. Dynamická střešní
krajina v kontrastu s lapidárním půdorysem utváří silný výraz a svou členitostí
dodává domu lidské měřítko.
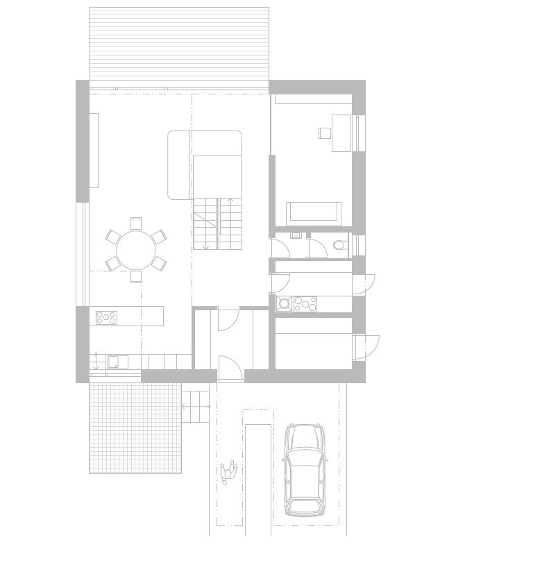
Přízemí domu je koncipováno jako velkorysý volně plynoucí
obytný prostor. Jeho vnímání napomáhá velkoformátové prosklení i nosná
konstrukce z dřevěných panelů bez potřeby podpor uvnitř půdorysu. Technické
zázemí je komprimované na minimum a situováno při východní straně. Volně
plovoucí objekt schodiště s knihovnou a posezením poskytuje další prostorový
zážitek. Ze schodišťové haly ve 2. NP se pak vstupuje do dětských pokojů,
koupelny a ložnice s vlastní malou koupelnou.
Autorská zpráva
Foto: Martin Zeman, Vojtěch Kaas
Autoři: Ing. arch. Vojtěch Kaas, Ing. arch. Jan Kalivoda



























Architektura musí souviset s místem, nikoli místo s architekturou. Proto jakékoli stavby umožňující realizaci na různých místech nejsou ARCHITEKTUROU.
Z mého pohledu je fajn vidět, jak se i u tak „běžné“ věci, jako jsou překlady, řeší systémovost a přesnost!
Praktické řešení, hlavně z pohledu rychlosti výstavby a přesnosti👍 U těchto systémových prvků dává smysl, že zjednodušují realizaci a pomáhají…
Zajímavý posun ve stavebnictví, je vidět, že se dnes klade velký důraz hlavně na rychlost výstavby a přesnost provedení. Systémové…
Jako problém vidím hlavně "lavičky" v prostoru sdíleném s cyklisty. Neměly by mít třeba tyče s praporky, jako dětské nákupní…