V odlehlé části přímořské oblasti Costa Blanca, pouhých pět kilometrů
od pobřeží, vyrostl rodinný dům Vivienda en Elche. Jednopodlažní
novostavba z dílny architektonického studia Estudio Arn Arquitectos na
první pohled zaujme výrazným kontrastem otevřených a uzavřených ploch
fasády. Křídla posuvného systému Schüco ASS 77 PD.NI na celou výšku
místností a hlavně po celé délce fasády umožňují téměř neomezené
panoramatické výhledy směrem na jihozápad, do zahrady s bazénem. Otvírat
je lze dle libosti – v závislosti na teplotě, ročním období i náladě
obyvatel domu.
Město Elche leží ve vnitrozemí ve španělské provincii Alicante
nedaleko pobřeží Costa Blanca. Proslavilo se svým palmovým hájem, který
je zapsán na seznamu světového dědictví UNESCO. Palmy proto nemohly
chybět ani v projektu rodinného domu Vivienda en Elche. Z
architektonického hlediska chtěli autoři odkázat na stavební sloh
venkovských domů, který je pro tento region typický. Odrazil se
především v sedlové střeše a také v použití přírodního světlého kamene
pro vnitřní i venkovní podlahy a pro severní fasádu. Tradiční prvky
tvoří výrazný kontrast s vertikálními žaluziemi, s vnitřním dřevěným
obložením z tropického irokového dřeva původem z Afriky, s
velkoformátovými prosklenými fasádními panely v hliníkových rámech a s
pohledovým betonem.
Chráněný ze severu, otevřený k jihozápadu
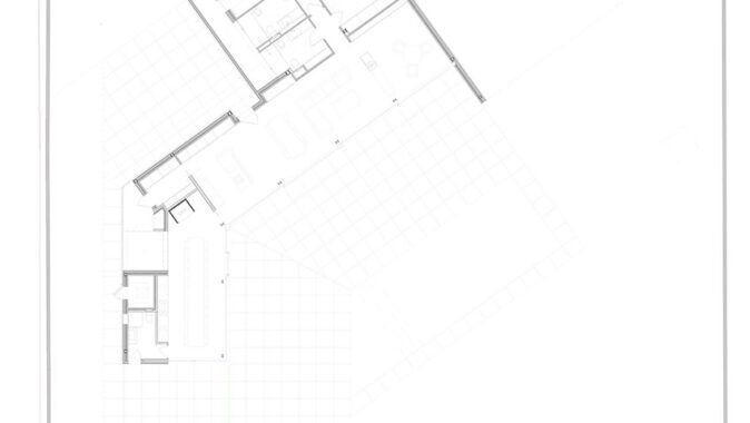
Půdorys domu se
skládá ze čtvercové hlavní budovy a protáhlého křídla, které z ní
vystupuje směrem na jihozápad pod úhlem 45 stupňů. Kontrastující pojetí
fasády dvou propojených částí stavby odpovídá rozdílným zónám využití.
Do kubusu byly umístěny ložnice, šatny a koupelny, diskrétně skryté před
pohledy zvenčí. V šikmo připojeném křídle se pak nachází obývací
prostor, jídelní část a kuchyňský kout, které jsou orientovány směrem k
terase, zahradě a bazénu a do kterých jsou částečně začleněny i venkovní
prostory.
Přirozené světlo proniká do severně orientovaných ložnic a koupelen
okny a prosklenými dveřmi, z nichž některé se otevírají do vnitřního
atria, skrytého před zraky kolemjdoucích (hliníková okna Schüco AWS 65
BS a Schüco AWS 50.NI). Díky dřevěným žaluziím toto atrium stejně jako
ostatní části severní fasády výrazně kontrastují se světlými barvami
fasádních obkladů a dlažby z přírodního kamene na podlahách.
Fasáda je osazena posuvným systémem Schüco ASS 77 PD.NI na výšku celých místností
Po
úvodním dojmu z nenápadných a uzavřených vstupních prostor a severní
části fasády se budova otevírá do prostoru panoramatickým zasklením po
celé délce jihozápadní fasády. Otvírá tak neomezené výhledy na venkovní
terasu s bazénem, zahradu a krajinu kolem pozemku, řídce posetou nízkými
rezidenčními a komerčními stavbami. Výjimečnost této protáhlé prosklené
fasády, která sahá do výšky celého patra, pramení z možnosti otevírat
dle libosti čtyři z jejích křídel o rozměrech zhruba 4×3 m pomocí
posuvného mechanismu. Celá fasáda je osazena posuvným systémem Schüco
ASS 77 PD.NI, jehož štíhlé hliníkové profily konstrukce Panorama Design
umožňují realizovat prosklené plochy na výšku celé místnosti, aniž by
výhled rušily jakékoli příčníky. Kolejnice zapuštěné v podlaze zajišťují
bezbariérový pohyb i plynulý přechod mezi vnitřním a venkovním
prostorem, kdykoli po něm obyvatelé domu zatouží.
Systémy Schüco na míru pro teplejší klima se speciální stínicí vrstvou a bezpečnostním sklem
Mírné
zimy a teplá léta – právě tyto středomořské klimatické podmínky
ovlivnily podobu i konfiguraci posuvného systému. Společnost Schüco
nabízí posuvný systém ASS 77 PD i v tepelně neizolované verzi „NI“,
která se dokonale hodí do teplejších klimatických pásem. Uplatnila se i v
projektu Vivienda en Elche – v kombinaci s izolačním dvojsklem
opatřeným speciální stínicí vrstvou. V rámci speciální úpravy byla
křídla osazena bezpečnostním sklem v třídě odolnosti 2 – požadavek na
zvýšenou odolnost vůči zlodějům, který okenní systémy Schüco AWS 65 BS a
AWS 50.NI nainstalované v tomto domě splňují také.
V souladu s architektonickou vizí bylo třeba realizovat průhledné
plochy na plášti budovy s co možná největším podílem skla,
nejrozměrnějšími panely a nejštíhlejší pohledovou šířkou profilů, s čímž
projektantům významně pomohl výrobce Novalco Metales, partnerská firma
společnosti Schüco z města Alicante. Bezproblémovou instalaci zaručil
přesný plán na míru, pečlivá výroba v dílnách a také přesná práce jeřábu
při osazování panelů přímo na místě. „Vzhledem k teplému klimatu lze
ve Španělsku naplno využívat všechny možnosti a výhody, které posuvné
systémy Schüco ASS 77 PD nabízejí. Platí to jak pro fasády soukromých
rezidenčních domů, tak pro fasády kancelářských budov,“ říká vlastník firmy Novalco Metales a vedoucí projektu Paco Gea Miralles.
Rodinný dům ve španělském městě Elche
Architekt: Estudio Arn Arquitectos, Elche (Španělsko)
Výrobce kovových prvků: Novalco Metales, Alicante (Španělsko)
Dokončení: 2018
Použité systémy:
Posuvné systémy: Schüco ASS 77 PD.NI
Okna: Schüco AWS 65 BS a Schüco AWS 50.NI
Vstupní dveře: Schüco ADS 65.HD
Speciální prvky: Dveřní, okenní a posuvné systémy ve třídě odolnosti RC 2
Barevný nátěr profilů v odstínu RAL 7016, matný
Rozhovor s Josém Amorósem Gonzálvezem, hlavním architektem projektu ze studia Estudio Arn Arquitectos
Jak rodinný dům Vivienda en Elche zapadá do okolí?
V
tomto projektu jsme chtěli reinterpretovat typologii architektury
typické pro místní venkovská stavení. Výsledkem byla kombinace kubické
hmoty hlavní budovy, obložené přírodním kamenem a zakončené sedlovou
střechou, a striktně horizontálního bloku z železobetonu. Hlavní budova
se sedlovou střechou ukrývá funkční prostory, které lze využívat po celý
rok bez ohledu na počasí, zatímco křídlo s plochou střechou slouží
zčásti jako uzavřená kuchyně a jídelní prostory a zčásti jako otevřená
terasa se zastíněním.
Při pohledu na vstupní část působí dům nejprve velmi uzavřeně…
Severní
část domu orientovaná směrem k příjezdové cestě zaručuje potřebné
soukromí pro přilehlé funkční prostory – koupelny, šatny a ložnice.
Proudí do nich přirozené světlo z vnitřního atria, které je zvenku
obloženo průsvitnými, vertikálně členěnými žaluziemi z tropického
irokového dřeva původem z Afriky. Na vstupní fasádě jsme pomocí
použitých materiálů nastavili určitý vizuální koncept, který pak
pokračuje i v interiéru budovy.
Celá fasáda směrem do zahrady s bazénem se skládá z
velkoformátových posuvných systémů od společnosti Schüco. Jakou funkci
tyto systémy plní v celkovém vizuálním pojetí?
Pomocí
křídel typu Panorama Design vysokých přes celou místnost se nám podařilo
vytvořit prosklenou fasádu, a umožnit tak vizuálně plynulý přechod
materiálů a prostoru mezi interiérem a exteriérem. Podlaha ze světlého
kamene volně plyne z interiéru na terasu a k bazénu, ať už jsou posuvy
otevřené nebo zavřené, a to samé platí i pro světlo a výhled.
Prostřednictvím velkoformátových prvků o rozměrech 4×3 m si obyvatelé
domu mohou regulovat míru otevřenosti a uzavřenosti prostor a tím i
prolínání vnitřku s venkem podle počasí, ročního období nebo aktuální
nálady. V rámci pláště budovy tento dům disponuje trvale otevřenými,
variabilními i uzavřenými prostory, které nabízejí vysokou míru
přirozeného osvětlení i panoramatické výhledy.
podle podkladů společnosti Schüco International KG
foto David Frutos a archiv společnosti Estudio Arn Arquitectos


































Výtvarně malebné, ale jak se bude odstraňovat sníh z těch zapuštěných teras?
Zajímavý vhled do problematiky náhrady PSu. Je pravda, že i když je pěnobeton technologicky náročnější na přesné dodržení postupů, jeho…
Úžasný projekt! 🌿🏡 Perfektní propojení moderní architektury, přírodních materiálů a praktického řešení, dům i zahrada působí opravdu harmonicky a inspirativně
Hm, v takovém domě bych si dokázal představit bydlet😎
inspirativní článek, který ukazuje, jak může promyšlená architektura citlivě zapadnout do krajiny a zároveň splnit nároky moderního bydlení i podnikání...spojení…