Dom sa nachádza na konci slepej ulice, na ktorú nadväzuje
les. Pre jeho kontakt s okolitou zeleňou lesa i záhrady pôsobí akoby z nej
prirodzene vyrastal. Naturálny charakter exteriéru posilňuje využitie
príhodných materiálov dreva a kameňa. Kompletné obloženie fasád a strechy
sibírskym smrekovcom vytvára jednoliatu hmotu, ktorá je rozihraná kompozíciou
vsadených tmavých otvorov. Exteriérové žalúzie otvory dopĺňajú v súhlasnej
farbe, no najmä chránia interiér proti nežiaducemu prehrievaniu. Podlažia domu
pozostávajú z prvého nadzemného podlažia a podkrovia, pričom tieto dva
priestory navzájom komunikujú – prepájajú sa v miestach dvoch galérií. Materialita
interiéru je príznačná jednoduchosťou a síce kombináciou dreva a bielej
omietky. Čierne doplnky ju v tomto smere podčiarkujú a nechávajú vyniknúť
priestor.
Cieľom návrhu bolo vytvorenie rodinného domu, ktorý spája súčasnú
architektonickú tvorbu rodinných domov so štýlom už existujúcich objektov
súčasného charakteru v danej lokalite. Medzi ďalšie konceptové idey patrí
maximálne racionalizovaný interiér podľa požiadaviek klientov s plnohodnotnými
a kvalitnými užívateľskými a tepelno-technickými vlastnosťami. Dôležitým
prvkom, ktorý vytvára aj prvý vizuálny kontakt s objektom, je vytvorenie
elegantných línií kopírujúcich existujúcu zástavbu.
Východiskom pre podobu návrhu boli hlavne dispozičné a estetické požiadavky
investora vychádzajúce z predstavy tradičného spôsobu bývania. Výsledkom
činnosti je racionálny rodinný dom, ktorý vypovedá o charaktere stavebného
objektu a rešpektuje lokálnu architektúru.
Dom je komponovaný z CLT panelov a drevených sendvičových
panelov so stĺpikovým nosným jadrom. Ďalej nosnú konštrukciu tvoria drevené
nosníky a stĺpy. Celý objekt je
nadštandardne zaizolovaný. Povrch fasády je vytvorený zo šedej silikónovej
omietky a sibírskeho smrekovcu bez povrchovej úpravy. Strešnú krytinu tvorí
fóliová hydroizolácia, ktorá je prekrytá taktiež sibírskym smrekovcom bez
povrchovej úpravy. Povrchová úprava garáže je kombinácia dreveného obkladu a
falcovaného čierneho plechu.
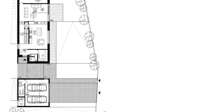
Dispozične je rozdelený na súkromnú a verejnú časť. Na
prízemí sa nachádza verejná časť a hosťovská izba. Hlavný vchod sa nachádza v
závetrí, ktoré je orientované na severozápadnej fasáde objektu a je napojené na
exteriérovú komunikáciu – spevnenú plochu, ktorá vedie k verejnej komunikácii.
Vstupný priestor je charakterizovaný ako vstupná hala s galériou a s
prislúchajúcim šatníkom. Vstupná hala slúži aj ako hlavná komunikačná jednotka
s v rámci 1NP. Vstupná hala je doplnená samostatným záchodom a sprístupňuje
skladovací priestor v západnej časti objektu. Pravým smerom sa dostaneme do
kuchyne s jedálňou. Kuchyňa je priamo prepojená s obývacou izbou v juhozápadnej
časti pôdorysu s výškovým prevýšením 500 mm. Nad obývacou izbou je vytvorená
galéria a je doplnená s veľkými posuvnými presklenými dvermi, ktoré
sprístupňujú južne orientovanú terasu. Ďalej juhovýchodná časť pôdorysu je
doplnená hosťovskou izbou ktorá disponuje vlastnou kúpeľňou a má spoločnú
terasu s obývacou izbou.
Na podkrovie sa dostaneme priamym smerom zo zádveria pomocou jednoramenného
schodiska. Výstupom zo schodiskového ramena sa dostaneme do hlavnej
komunikačnej jednotky podkrovia ktorá sprístupňuje všetky miestnosti poschodia
a galériu nad obývacou izbou. V juhovýchodnej časti sú situované dve samostatné
izby. Ďalej v strede dispozícií sa nachádza spoločná kúpeľňa, v rámci ktorej
bude umiestnené technické vybavenie domu. Spálňa sa nachádza v severozápadnej
časti pôdorysu. Je vybavená vlastnou kúpeľňou, šatníkom a prestrešenou terasou.
V severozápadnej časti pôdorysu je situovaná garáž pre dve autá, ktorá je
doplnená skladom a s doghousom.
Stavebno-konštrukčné riešenie
Dom je komponovaný z drevených prefabrikovaných lepených panelov a drevených
sendvičových panelov so stĺpikovým nosným jadrom. Navrhnuté konštrukcie stropu
a strechy sú z drevených nosných prvkov. Garáž je prestrešená drevenými
väzníkovými nosníkmi. Tepelnú izoláciu tvorí drevovlákno, minerálna vlna a
polystyrén v konštrukcií podlahy a soklovej časti objektu.
Výplne okenných a dverných otvorov na fasáde sú z drevohliníkových profilov,
ktoré sú zasklené izolačným bezpečnostným trojsklom.
Autorská zpráva
Foto: Michal Lachkovič
Autor a projekt: KubisArchitekti s.r.o. – Daniel Kubiš, Martin
Hudec, Zsolt Nagy
Dodávateľ stavby: Úsporne Drevodomy s.r.o.
Autor záhrady: Martin Malachovský
Interiér: Lucia Vlasáková
Statika: Ing. Lubomír Staník
Zdravotechnika: Ing. Milan Gatial
Vykurovanie: Ing. Marek Bukoviansky
Projekt elektroinštalácií: Ing. Lubomír Pavelek
Projekt vzduchotechniky: Ing. Gabriela Heffnerová
Projekt požiarnej ochrany: Robert Marikovič
Celková zastavaná plocha: 170,14 m2
Obostavaný priestor: 1054,2 m3
Pozemok: 815 m2
Úžitková plocha: 167,63 m2































Zajímavý posun ve stavebnictví, je vidět, že se dnes klade velký důraz hlavně na rychlost výstavby a přesnost provedení. Systémové…
Jako problém vidím hlavně "lavičky" v prostoru sdíleném s cyklisty. Neměly by mít třeba tyče s praporky, jako dětské nákupní…
Zdravím, děkuji za informaci o výstavbě v areálu i zmínku o vile, žel chybí aspoň informace, zda vila stojí a…
Článek působí docela věcně a snaží se jít víc po principu než jen po marketingu, což je za mě plus…
Chybí schody z levého břehu na most, takže s Chuchle přijedeme na Lihovar , musíme přejít Strakonickou a pak teprve…