S ohledem na přetrvávající kvality původního domu, i vazbu na další dva stejné objekty dále v ulici, byla akcentována snaha o zachování historických kvalit, odstranění nevhodných zásahů a doplnění objektu o potřebné prostory vhodným hmotovým pojetím. Stávající pozice domu v jihozápadní části pozemku téměř v polovině uliční hranice nebyla z hlediska orientace ke světovým stranám a vazbě ke klidové části zahrady úplně nejvhodnější.
Požadavků klienta na dispoziční řešení nebylo možné dosáhnout pouze v objemu původní stavby. Tím se otevřela možnost uvažovat o takové přístavbě domu, která by uměla nabídnout, jak plnohodnotnou vazbu obytného prostoru se zahradou, tak i v tomto prostoru zajistila klid, soukromí a dostatečné oslunění. Nová hmota přístavby se proto vysunula ze zadní části domu do zahrady. Přístavba je pojata jako moderní, přesně vymezený pravoúhlý objekt, výrazově odlišný od původních konstrukcí, s velkým prosklením. V návaznosti na původní objekt je pak přístavba navýšená o druhé ustupující podlaží, čímž vzniká architektonicky adekvátní objem nové části v poměru ke stávající, i adekvátní objem ve vztahu k prostorovým potřebám klienta. Těleso přístavby proniká do původního objektu, vzniká tak těsné spojení nového se starým.
U vstupu do domu vznikla druhá přístavba a to ve formě zastřešení parkovacích stání a navazujícího skladu. Tato konstrukce je situována kolmo k prvnímu objektu přístavby, tedy podél uliční čáry. Přístřešek je řešen materiálově odlišně od hlavní přístavby i stávajícího domu, tímto materiálem se propisuje i do jihovýchodní fasády, čímž je podpořen pocit průniku těles a zároveň vhodně zvýrazněn hlavní vstup do domu.
Nové hmotové uspořádání je jasně čitelné co do funkčního, tak i historického dělení. Objekty se vzájemně dobře doplňují, i když si každý drží svůj charakter. Nově vzniká kvalitní propojení domu se zahradou.
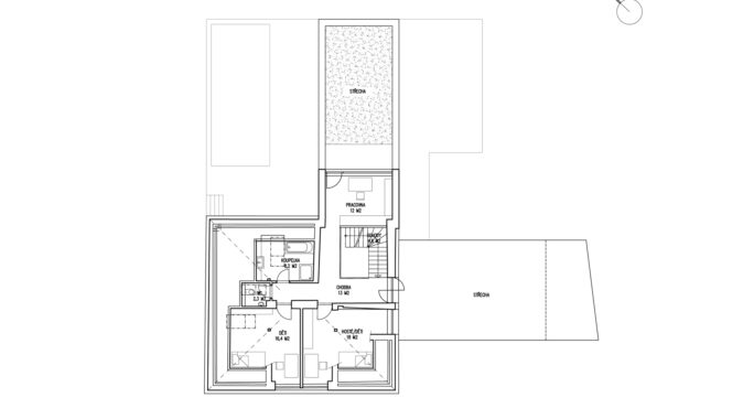
Stávající členění jednotlivých pater se de facto kompletně upravilo. V přízemí byla zachována pozice atraktivní vstupní haly, přičemž bylo důležité ji „obsadit“ životem. Změnou umístění a novým tvarovým řešením schodiště se dosáhlo skvělého komunikačního propojení jak v přízemí, tak v podkrovním podlaží. Hala se tak stala jakýmsi „srdcem“ domu, ke kterému se orientují pak všechny další obytné prostory.
Na halu přímo navazuje hlavní obytný prostor situovaný v celém obdélníkovém půdorysu nové přístavby. Jedná se o moderní obývací pokoj s kuchyňským koutem, jídelní a odpočinkovou částí, s výrazným prosklením na delších stranách propojujícím jej se zahradou a do budoucna plánovanými terasami.
Dva v přízemí situované pokoje jsou nově pojaty jako pokoj dětí a ložnice rodičů. Do budoucna se uvažuje s přemístěním dětí do podkroví a pokoj pak využívat pro návštěvy. Umístění ložnice v přízemí umožňuje bezbariérové pohodlné bydlení obyvatelům i ve vyšším věku. S plnou soběstačností přízemí souvisí i v původním půdorysu domu umístěná komfortní koupelna, prádelna, sklad a samostatné WC.
V podkroví jsou nově situovány dva pokoje, koupelna a WC, v hmotě přístavby pak pracovna s velkorysým okenním výkladcem orientovaným do zahrady.
Místo: Jílové u Prahy, okres Praha-západ
Autoři: PÍSEK SEYČEK ARCHITEKTI s.r.o. – Ing. arch. Jiří Písek, Ing. arch. Jan Seyček, Ing. Jan Krauz, Ing. Jiří Klofák
Projekt a realizace: 2019–2023
Fotografie: Viktor Jelínek
Autorská zpráva


































Architektura musí souviset s místem, nikoli místo s architekturou. Proto jakékoli stavby umožňující realizaci na různých místech nejsou ARCHITEKTUROU.
Z mého pohledu je fajn vidět, jak se i u tak „běžné“ věci, jako jsou překlady, řeší systémovost a přesnost!
Praktické řešení, hlavně z pohledu rychlosti výstavby a přesnosti👍 U těchto systémových prvků dává smysl, že zjednodušují realizaci a pomáhají…
Zajímavý posun ve stavebnictví, je vidět, že se dnes klade velký důraz hlavně na rychlost výstavby a přesnost provedení. Systémové…
Jako problém vidím hlavně "lavičky" v prostoru sdíleném s cyklisty. Neměly by mít třeba tyče s praporky, jako dětské nákupní…