Komunita slouží klientům organizace SANANIM, kteří se léčí
ze závislosti na drogách. Jedná se o starší klientelu s mnohaletou drogovou
kariérou. V komunitě tráví přibližně jeden rok, poté odcházejí do doléčovacích
programů. Terapie sestává z psychoterapie, pracovní terapie, sociální práce,
sportovních aktivit a dalších složek. Probíhá v několika fázích, a postupně se
zvyšuje samostatnost, odpovědnost a nároky kladené na klienta. Kapacita
zařízení je 20 lůžek.
Minulost
Zemědělská usedlost U Karáska je patrná už na mapách I. vojenského mapování
z let 1764-1768. Leží na samotě mezi dvěma koryty řeky Blanice, blízko obce
Heřmaň v jižních Čechách. K usedlosti patří zemědělské pozemky a areál
autokempu. Dvě přestavby v letech 1995 a 2005 nenávratně překryly starší vrstvy
a členění objektu. Bylo dostavěno křídlo s apartmány a byt majitele se zdobným
štítem, povrchy fasád v kombinaci přírodního kamene, bílé omítky a cihelných
prvků. Bohužel bez historických nebo provozních souvislostí. Celkově byl objekt
v přijatelném technickém stavu, proto jsme se s investorem soustředili na
hledání optimálního provozního řešení a nově dostavěné hmoty.
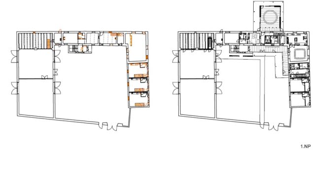
Návrh
Všechny potřebné prostory komunity nebylo možné do původního objektu
umístit. Také z toho důvodu je ve dvoře přistavěná spojovací chodba a komunitní
místnost stojí vně půdorysu usedlosti. Bydlení terapeutů i klientů, jídelna s
kuchyní, klubovna, kancelář a ordinace, technické a provozní místnosti, jsou v
původních stavbách.
Chtěli jsme, aby nejnovější etapa v historii usedlosti byla jednoduše
čitelná. Dostavěné prostory jsou dřevostavby a mají shodné konstrukční a
materiálové řešení. Detaily a návaznosti jsou jednoduché a minimalistické.
Pohledový trámový strop nesou ocelové a dřevěné sloupky. Společné místnosti a
prostory, staré i nové, jsou propojeny cihelnou dlažbou na podlaze. To má
symbolický význam, každý by měl mít pocit, že když se z vlastní vůle stal
členem komunity, prostory jsou pro něj otevřené. Dlažba je přerušená jen při
vstupu do komunitní místnosti a jídelny kamenným prahem. Znamená to vytržení z
běžného rytmu a důraz na zvláštní význam těchto místností.
Komunitní místnost
Z hlediska komunity má zvláštní význam, slouží pro pravidelnou skupinovou
terapii, otevřené rozhovory mezi terapeuty a klienty. Důležitý je motiv kruhu
při uspořádání židlí nebo jako osvětlení na stropě. Přemýšleli jsme, jestli má
komunitní místnost stát odděleně v areálu, aby bylo její použití sváteční a
zvláštní. Ale skupinová terapie je normální, každodenní součást léčby.
Výsledkem je komunitní místnost jako součást dispozice, zároveň však vybíhá
mimo půdorys původního statku do okrasné zahrady.
Chodba
Chodba je neformální místo pro setkávání a denní provoz, vše propojuje. Je
součástí dvora i komunity, má vnitřní prosklený prostor a vnější krytý ochoz.
Důležitá je osa, která prochází od vstupní branky, přes hlavní vchod a chodbu,
skrz střední křídlo usedlosti a komunitní místnost do zahrady. Je to optické
propojení vnějšího okolí s dvorem a soukromou zahradou na severní straně
areálu.
Jídelna
Pro život komunity má společné jídlo velký význam. Pokrmy připravují sami
klienti. Jídelna je umístěna v rohu usedlosti, kde se zachovalo kamenné zdivo
původního statku. Do jídelny se prochází starým kamenným portálkem. Z bývalé
komunity v Němčicích je do jídelny přestěhován velký společný stůl jako
důležitý artefakt.
Klubovna
V severní části stodoly bylo vložené původní dřevěné patro na masivních
trámech. To je nově upraveno na neformální klubovnu komunity. Je to jeden velký
prostor, kde se „mimo službu“ potkávají terapeuti s klienty. Vestavba je
konstruována nezávisle na krovu a zateplena z vnitřní strany kamenného
zdiva.
Ubytování klientů
Ubytování klientů je v jednoduchých podkrovních pokojích. Vzniklo
přestavbou původních patrových apartmánů a využitím prázdné půdy. Vložená
společná komunikace je na obou koncích schodišti spojena s dvorní skleněnou
chodbou. Část dispozice pro klienty je tak uzavřena do dalšího symbolického kruhu.
Film Pravidla lži
Komunita v Heřmani vznikla přestěhováním původní terapeutické komunity v
Němčicích, kde se natáčel film Pravidla lži. Film ukazuje původní prostory i
způsob života v terapeutické komunitě.
http://www.csfd.cz/film/223906-pravidla-lzi/prehled/
Autorská zpráva
Foto: Jan Kuděj
TERAPEUTICKÁ KOMUNITA HEŘMAŇ – SANANIM
Investor: SANANIM z.ú., www.sananim.cz
Místo: obec Heřmaň, okres Písek
Autor: Sporadical architektonická kancelář – Aleš Kubalík, Josef Kocián, Jakub
Našinec, Veronika Sávová
Dodavatelé: David Böhm – Drebo, Raul Kačírek – Restel, Dřevěná okna a posuvy –
Tronet
Obestavěný prostor: 6150 m3
Zastavěná plocha: 990 m2
Užitná plocha: 1170 m2



































Z mého pohledu je fajn vidět, jak se i u tak „běžné“ věci, jako jsou překlady, řeší systémovost a přesnost!
Praktické řešení, hlavně z pohledu rychlosti výstavby a přesnosti👍 U těchto systémových prvků dává smysl, že zjednodušují realizaci a pomáhají…
Zajímavý posun ve stavebnictví, je vidět, že se dnes klade velký důraz hlavně na rychlost výstavby a přesnost provedení. Systémové…
Jako problém vidím hlavně "lavičky" v prostoru sdíleném s cyklisty. Neměly by mít třeba tyče s praporky, jako dětské nákupní…
Zdravím, děkuji za informaci o výstavbě v areálu i zmínku o vile, žel chybí aspoň informace, zda vila stojí a…