K projektu dostavby lázní Aurora jsme byli nejprve přizváni na pozici interiérového architekta. Postupně jsme přesvědčili investora o přínosných změnách týkajících se především otevření dispozice a celkového zjednodušení prostoru, které se z interiéru propsaly také na fasádu objektu.
Jelikož musely úpravy dispozic respektovat existující nosný systém, navrhli jsme pro lázeňské procedury prostory, které mezi stávajícími sloupy přirozeně proplouvají.
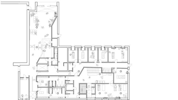
Do nitra nové budovy vtahuje návštěvníky vstupní hala, křižovatka různých provozů a spojení s původní lázeňskou budovou. Přes šatny přicházíme k parním procedurám, Knaippově chodníku a masérnám. Druhé patro nabízí několik druhů saun, páru, prosvětlené odpočívárny s výhledem do zeleně a soukromé wellness k pronajmutí.
Dostavba třeboňských lázní pro nás byla velkou výzvou, snahou navázat na kvality původního lázeňského areálu ze 70. let minulého století. Pokračujeme s lokální aplikací drceného kamene, světlou dlažbou a dřevěným obkladem. To vše doplňují prvky z betonu a mramoru v podobě umyvadel nebo ledovačů.
Budovou procházejí podhledy z Heradesignu různých barev a systémů zavěšení, zajišťující akustickou i estetickou pohodu. Masérny jsou vybaveny vestavěnými truhlářskými prvky ze smrkové biodesky. Světla materiálově navazují na skleněné příčky a zábradlí, v kontrastu se dřevem a tenkými závěsy dotváří provázanost mezi přírodními saunami a křehkou historií lázní.
Autorské obrazy, vytvořené přímo pro interiér lázní, podporují celkovou atmosféru klidu a odpočinku.
Autorská zpráva
Foto Radek Úlehla
Komunikace Linka
Autorky Plus One Architects / Petra Ciencialová, Kateřina Průchová
Místo Lázeňská 1001, 379 01 Třeboň
Rok projektu 2021
Rok dokončení 2022
Užitná plocha 1040 m²
Autorky Plus One Architects / Petra Ciencialová, Kateřina Průchová
Místo Lázeňská 1001, 379 01 Třeboň
Rok projektu 2021
Rok dokončení 2022
Užitná plocha 1040 m²




































Architektura musí souviset s místem, nikoli místo s architekturou. Proto jakékoli stavby umožňující realizaci na různých místech nejsou ARCHITEKTUROU.
Z mého pohledu je fajn vidět, jak se i u tak „běžné“ věci, jako jsou překlady, řeší systémovost a přesnost!
Praktické řešení, hlavně z pohledu rychlosti výstavby a přesnosti👍 U těchto systémových prvků dává smysl, že zjednodušují realizaci a pomáhají…
Zajímavý posun ve stavebnictví, je vidět, že se dnes klade velký důraz hlavně na rychlost výstavby a přesnost provedení. Systémové…
Jako problém vidím hlavně "lavičky" v prostoru sdíleném s cyklisty. Neměly by mít třeba tyče s praporky, jako dětské nákupní…