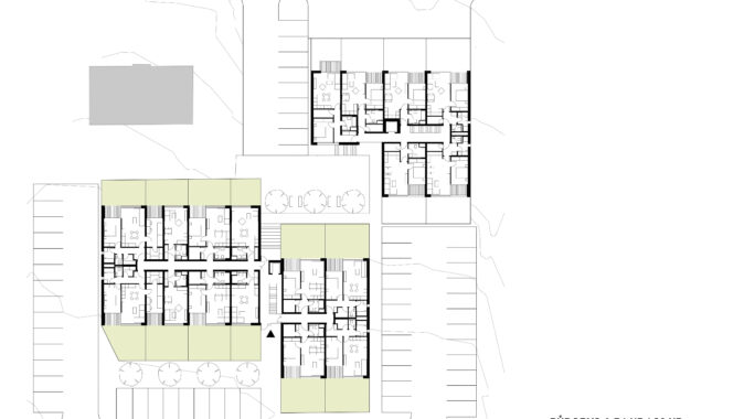
Nezastavěnou parcelu bez určené funkce uprostřed nesourodé zástavby zaplnily bytové domy podle studia ATELIER 38. Původně byl prostor typický pro Slezskou Ostravu obklopen množstvím zeleně, ale bez energie a s „ne-řádem“. Fenoménem je blízkost nejznámější „vulkanicky aktivní“ haldy Emy s její menší siamskou sestrou Terezií.

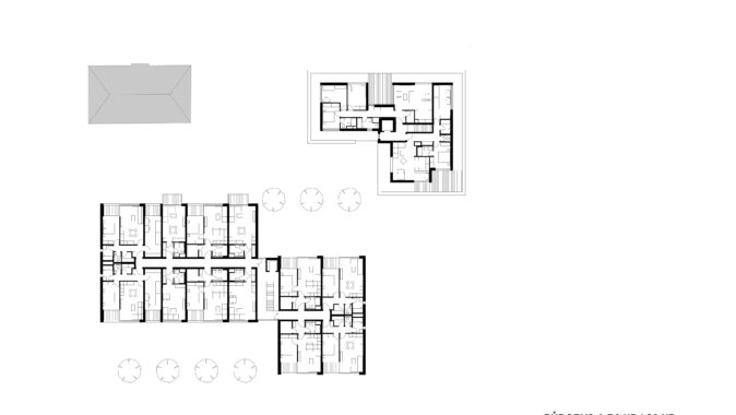
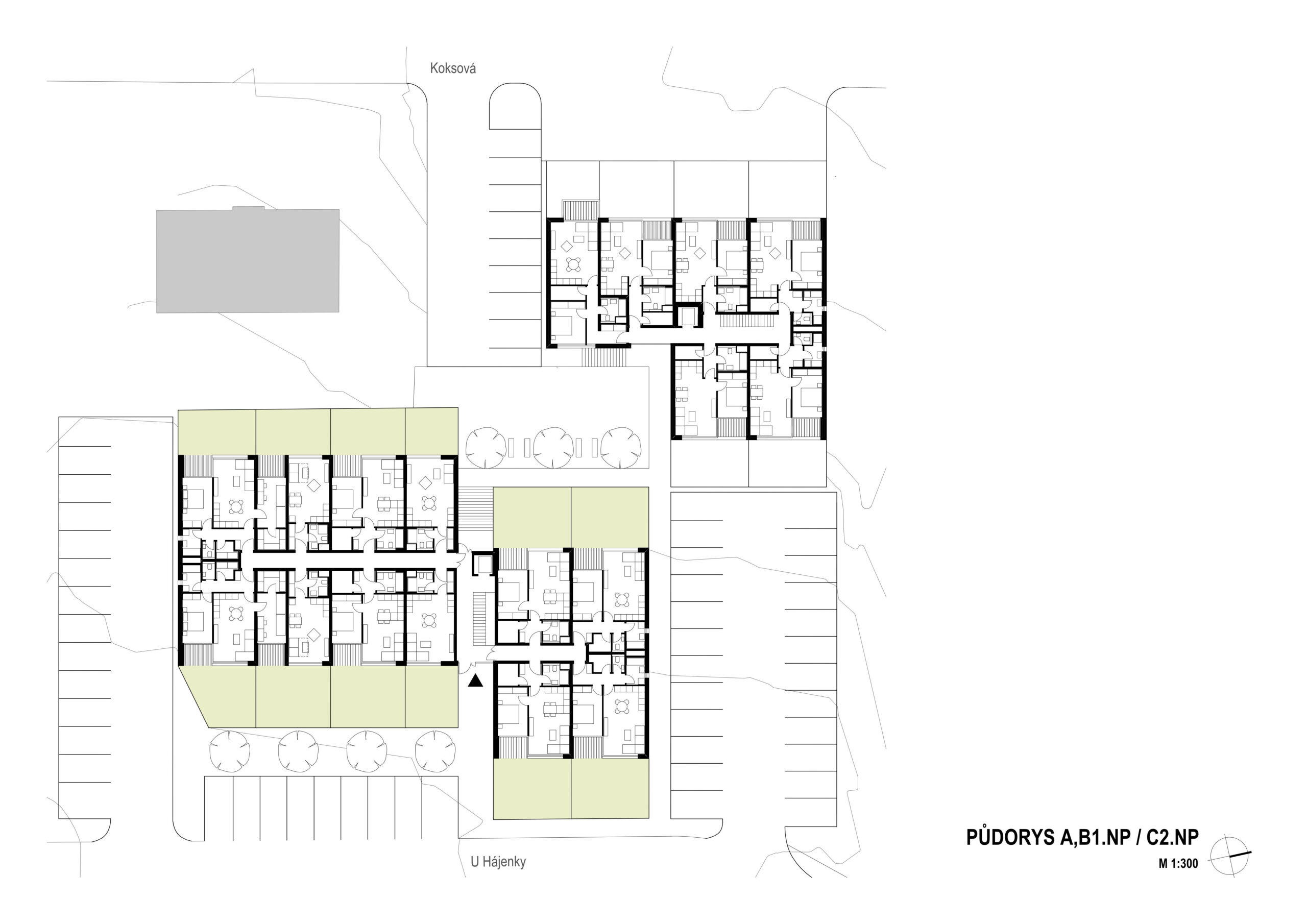
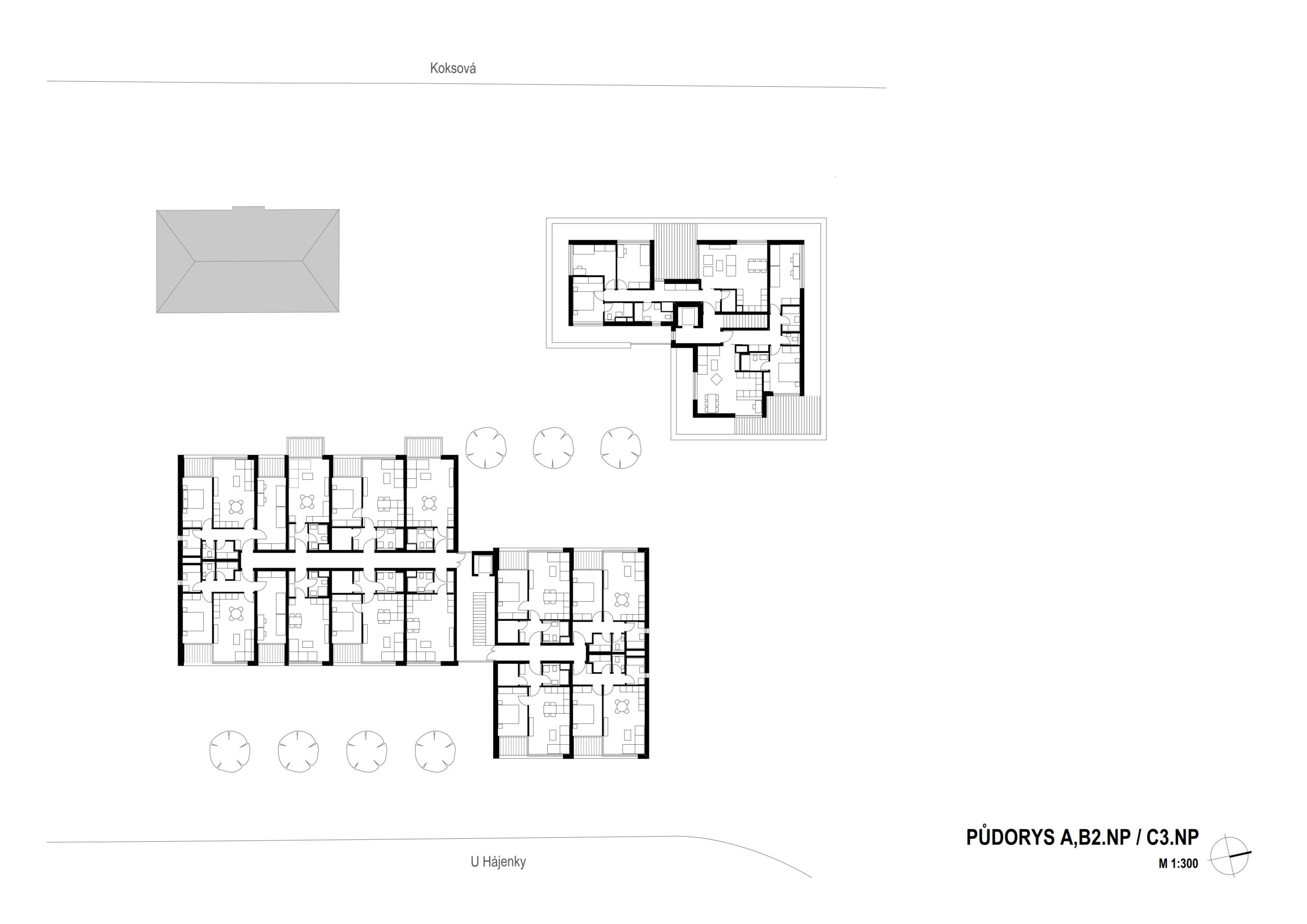
Obytný soubor je navržený jako přechodový prvek mezi nízkopodlažní zástavbou rodinných domů na severní straně a bytovými domy na straně jižní. Soubor s 53 byty je rozdělený do tří hmot, společně s předzahrádkami spodních bytů a s ustupujícím horním podlažím vytváří kompozici rozloženou po výrazné terénní depresi.

Soubor je navržený jako otevřený, průchozí. Tak, aby nevytvářel ve stávajícím území bariéru a umožňoval interakci mezi autochtony a nově příchozími. V těžišti obytného souboru je navržený polouzavřený komunitní dvůr pro vytváření sousedských vazeb. Soukromé prostory tvoří předzahrádky spodních bytů a střešní terasy bytů horních. Svažitý pozemek umožnil částečné podsklepení bytových domů, kde jsou umístěny sklepy a parkování.

Tři bytové domy jsou napojeny na dvě vertikální komunikační jádra. Dispozičně jsou uspořádány jako troj trakt se středovou chodbou a orientací bytů východ-západ. Základní modul – bytovou jednotku tvoří byt 2+kk s lodžií. Dva moduly 2+kk vedle sebe zároveň umožňují variabilní uspořádání 3+kk a 1+kk, případně 4+kk. Tím bylo umožněno vytvoření matice bytů odpovídající aktuálním potřebám realitního trhu. V posledním podlaží jsou umístěny byty 4+kk se střešními terasami.

Domy se nacházejí na poddolovaném území a jsou založeny na vrtaných pilotách. Nosný systém tvoří příčné stěny z vápenopískových tvarovek, rovněž tak výplňové zdivo a příčky. Stropy jsou železobetonové monolitické. Zdrojem ohřevu vody pro podlahové topení jsou centrální plynové kotle. Na střechách je umístěna fotovoltaika, vyrobená elektrická energie se komunitně využívá pro osvětlení společných prostor a pro centrální ohřev TUV.
Autorská zpráva
Místo: Obytný soubor EMA, mezi ulicemi U Hájenky a Koksová ve Slezské Ostravě
Autor: Tomáš Bindr / Atelier 38
Spoluautoři: Martin Struhala, Hana Staňková (Hofmanová)
Zodpovědný projektant: Luděk Valík
Investor: Ridera development
Projekt: 2020–2022
Realizace: 2023–2025
Foto: Roman Polášek







































Akustika je často podceňovaný, ale zásadní aspekt kvality bydlení... Článek dobře ukazuje, že nejde jen o samotný materiál, ale hlavně…
Oceňuji hlavně důraz na kvalitu provedení, nestačí jen dobrý materiál, ale i správná realizace. V praxi právě detaily často rozhodují…
Skvělý článek o akustické kvalitě staveb, která je často opomíjená, ale velmi důležitá. Systémy Heluz nabízejí dobrá řešení pro zvukovou…
Zajímavé téma, díky za sdílení. Tyhle novinky z praxe mají vždycky největší přínos 👍
Zajímavý webinář zaměřený na novinky od společnosti Heluz. Oceňuji hlavně představení cihel Heluz AKU a jejich výsledků v oblasti zvukové…