Projekt IN sady v Brně sestává ze tří částí, které zahrnují komerční, administrativní, ubytovací a bytové jednotky. Nadzemní část byla rozdělena mezi dvě architektonické kanceláře, a53 architekti a dílna, což vedlo ke vzniku tří odlišných domů.

Ačkoli je podzemní podlaží propojuje, jednotlivé domy se liší provozem, uspořádáním a funkcí. Zároveň žádný z architektů neměl možnost ovlivňovat práci toho druhého a výsledek vychází z konceptu „rostlého města“. Uvnitř bloku se nachází společné, veřejně přístupné prostranství. Parter nabízí administrativní a obchodní prostory, do nichž vedou dva hlavní vstupy – z nároží ulice Nové sady a z jihovýchodní části.

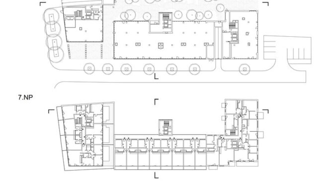
Sekce A zahrnuje 12 nebytových jednotek a 26 bytů různých velikostí. Desetipodlažní dům se nachází na nároží ulice Nové sady, kde přirozeně doplňuje uliční frontu. Výrazným architektonickým prvkem budovy jsou betonové sloupy ve tvaru „V“, které zdůrazňují vstup do vnitrobloku. Celoprosklená fasáda je oživená vzájemně posunutými průběžnými balkony s ocelovým zábradlím v pastelově zeleném odstínu.

Střední sekce B je osmipodlažní pavlačový dům s 48 bytovými jednotkami k pronájmu a komerčními prostory v přízemí. Schodišťová věž je vysunuta mimo objekt a hlavní vstup do ubytovací části je z vnitrobloku. Střešní zahrada slouží k odpočinku obyvatel domu.

Jednotná dispozice bytů se odrazila v pravidelné fasádě orientované do ulice. Tento přísný rastr je na obou stranách budovy zjemněn perforovaným plechem, což fasádě dodává vizuální lehkost a interiérům více soukromí. Budova je provedena v čisté bílé barvě, kterou v interiéru doplňuje kombinace pohledového betonu, stěrek v malinovém odstínu a světle šedé velkoformátové dlažby.

Komplex uzavírá 13podlažní objekt C, který má 33 bytových jednotek a komerční prostory v přízemí. Objekt disponuje také druhým vstupem do vnitrobloku. Podlaží od 1. do 8. patra mají půdorys ve tvaru „L“, zatímco od 9. do 12. patra mají lichoběžníkový tvar. V nárožní části hmota ustupuje za uliční čáru, čímž přispívá k dynamice. Bílá barva kartáčované omítky fasády je zlomena čedičovým vsypem, který dodává povrchu texturu a hloubku.

Budova je energeticky mimořádně úsporná. Všechny prostory mají nucené větrání s rekuperací, a to i s ohledem na hlukovou zátěž. Tepelný komfort je zajištěn tepelnými čerpadly využívajícími hlubinné vrty.
Autorská zpráva, kráceno, vyšlo v časopise Stavba 4/2024 s recenzí Moniky Mitášové
Místo stavby: ulice Nové sady a Fuchsova, Brno
Autoři: a53 architekti, dílna / Michal Palaščak
Spolupráce: Lenka Mazurová, Petr Kadlčík, Men Nychtej, Karolína Burešová, Jan Flídr, Jiří Havel, Vítězslav Titl
Zastavěná plocha: 2799 m2
Užitná plocha: 7203 m2 (bydlení) + 3706 m2 (komerční a administrativní plochy)
Plocha pozemku: 2799 m2
Obestavěný prostor: 81 305 m3
Projekt: 2018–2021
Realizace: 2021–2023
Foto: Marieta Musálková












































Do 4/1 jsou Mockerovy domy přístupné v rámci akce Vánoční putování Pražským hradem https://www.hrad.cz/cs/kultura-na-hrade/program/vanocni-putovani-prazskym-hradem-1-13462
Hodně mě překvapilo, že je v areálu Pražského hrad tahle zanedbaný dvorek. Na leteckých snímcích to vypadá líp, jako že…
Díky za odkaz, opravdu zajímavý projekt! Rekonstrukce za plného provozu je vždycky náročná, a je skvělé vidět, jak se to…
Ano, továrna v Pardubicích je velmi zajímavá. Kromě jiného rekonstrukce probíhala za plného provozu. Přikládám odkaz na celou stavbu, je…
V rámci Prahy jde o jednu z nejhlučnějších lokalit, které lze v centru najít. ideální pro drahé kanceláře a bydlení.…