Nový bytový dům od studia mar.s architects se nachází ve východní části Libčic nad Vltavou a představuje první dům rezidenčního projektu. Projekt reaguje na charakter města, jehož industriální minulost významně ovlivnila jeho podobu.

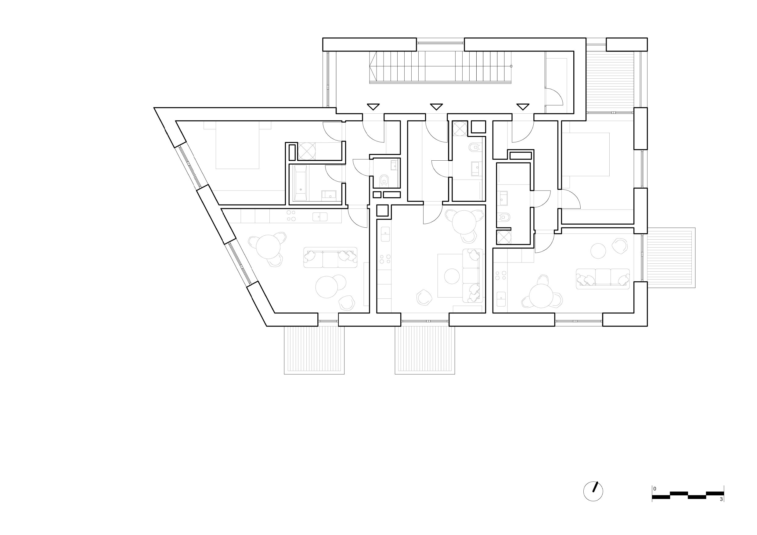
Budova má čtyři nadzemní podlaží a obsahuje deset bytových jednotek, z nichž většina má dispozice 2+kk, což bylo zadáním ze strany investora. Investor pochází přímo z Libčic, což se odráží v jeho osobním vztahu ke stavbě a důrazu na kvalitu i detailní zpracování. Hmota domu je navržena minimalisticky s ohledem na tvar pozemku a urbanistické možnosti dané lokality.

Objekt respektuje uliční čáru i výšku okolní zástavby. Jeho cílem není být dominantou, ale citlivě doplnit lokalitu a podpořit její rozvoj moderní architekturou, která ladí s industriálním prostředím. Tento přístup se projevuje nejen v objemu a formě stavby, ale také ve střídmém výběru materiálů. Budova je lemována betonovým soklem a obložena cihlovými pásky, odkazuje na průmyslovou historii města a zároveň vytváří vizuální propojení s okolními stavbami, jako je na příklad historický uhelný mlýn. Fasádu doplňují chic luxfery a kovová zábradlí předsazených betonových balkonů, které nepravidelně vystupují z hmoty objektu. Tímto záměrně narušují formální rastrové uspořádání a přidávají dynamiku, čímž zdůrazňují vztah mezi jednotlivými částmi stavby.

Společné prostory budovy jsou obohaceny o industriální prvky, jako je přiznané vrstvení betonu a ocelový výplet lineárního schodiště. Detaily podtrhují surový charakter použitých materiálů a vytvářejí autentickou atmosféru, která přirozeně propojuje interiér s exteriérem. Projekt ukazuje, že citlivý přístup k lokalitě a její historii může vytvořit kvalitní a estetické bydlení, které obohatí nejen své bezprostřední okolí, ale i celkový charakter města. Dům má čtyři podlaží a deset bytových jednotek.
Autorská zpráva
Autoři mar.s architects / Martin Šenberger
Spoluautor Adam Hodek
Místo Letecká ul., Libčice nad Vltavou
Rok projektu 2019
Rok dokončení 2024
Zastavěná plocha 202 m²
Plocha pozemku 675 m²
Foto BoysPlayNice
Komunikace Linka



































Architektura musí souviset s místem, nikoli místo s architekturou. Proto jakékoli stavby umožňující realizaci na různých místech nejsou ARCHITEKTUROU.
Z mého pohledu je fajn vidět, jak se i u tak „běžné“ věci, jako jsou překlady, řeší systémovost a přesnost!
Praktické řešení, hlavně z pohledu rychlosti výstavby a přesnosti👍 U těchto systémových prvků dává smysl, že zjednodušují realizaci a pomáhají…
Zajímavý posun ve stavebnictví, je vidět, že se dnes klade velký důraz hlavně na rychlost výstavby a přesnost provedení. Systémové…
Jako problém vidím hlavně "lavičky" v prostoru sdíleném s cyklisty. Neměly by mít třeba tyče s praporky, jako dětské nákupní…