Interiér restaurace, lobby, hotelových pokojů a relaxační zóny na střeše budovy od Lucie Koldova Studio je vítězem soutěže Interiér roku 2023 v kategorii Veřejný interiér I. Řešení respektuje původní architektonický ráz budovy.

Investor přistoupil k projektu hotelu jako k příležitosti vnést do města Šumperk novou energii. Chtěl znovu obnovit místo, kde se budou potkávat nejen místní lidé, ale také hosté i obchodníci hledající profesionální služby pro svůj rozvoj businessu. Svým citlivým přístupem a kladným vnímáním architektury a designu dal vzniknout unikátnímu prostoru, který pozvedává celý region.
Velkorysá rekonstrukce vsadila na udržení původních exteriérových rysů, současný design a prostorovou vzdušnost v interiérech, kterou podtrhuje atmosférická plejáda světelných instalací vytvořených na míru. Znovu se z prostoru stal čistý funkcionalistický objekt s využitím nových technologií.

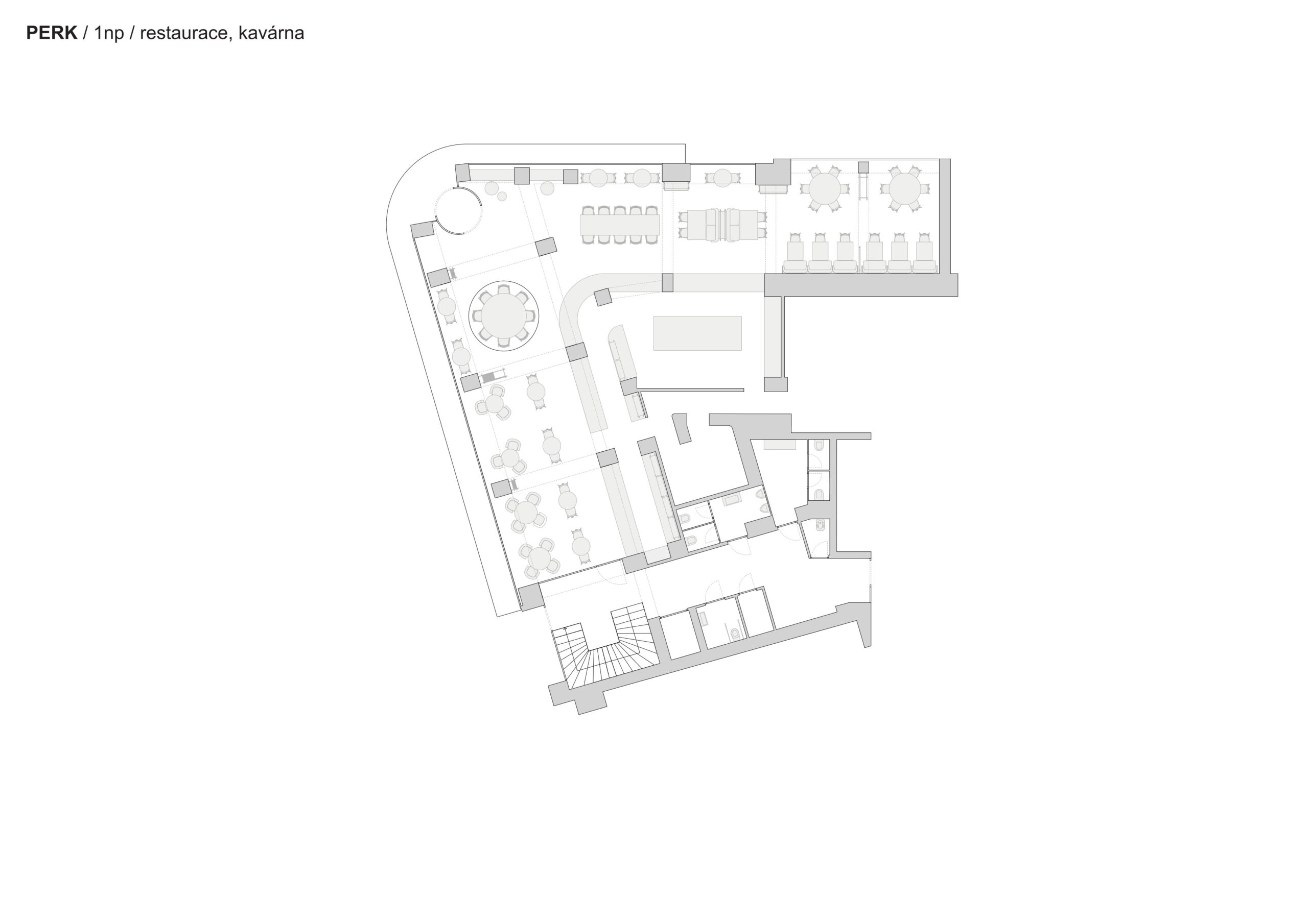
Restaurace PERK
Interiér restaurace v přízemí byl navržen v tmavších barevných tónech a ležérním duchu. Cílem bylo diferencovat přízemní prostor hotelu od celkového pojetí ostatních částí objektu a pomyslně jej tak otevřít všem, nejen hotelovým hostům. Restaurace je rozčleněna do jednotlivých zón, tj. kavárna, středový prostor s výdejem jídla a zadní trakt pojatý v intimnějším duchu. Křivka baru probíhající celou restaurací je důležitým funkčním prvkem, který zvýrazňuje barevný cihlový obklad.

Vybavení jednotlivých zón se liší typem sezení, barevnost zůstává ve všech částech tlumená a chic se dvěma akcenty v podobě velkých jídelních stolů. Materiálově vévodí kov, dřevo, příjemná lana změkčující tvrdý charakter betonu, pomáhající zároveň členit prostor. Atmosféru umocňuje tmavá antracitová betonová stěrka na podlaze. Prostoru zde především vizuálně vévodí výrazná vertikální a horizontální svítidla, která vytváří svébytný ambientní charakter restauračního zařízení odpovídající nejvyšším soudobým nárokům.
Lobby jako galerie
Záměrem volného prostoru lobby bylo, aby se návštěvníci hotelu zrelaxovali a inspirovali v příjemném à la galerijním prostoru nádherně prosvětleným sluncem díky velkoformátovým oknům lemujícím celé patro. Zadní trakt prostoru byl uzpůsoben hostům využívajícím konferenční sály a poskytuje funkční zázemí s možností občerstvení.
Sedací čalouněné prvky jsou umístěny v kompozicích jemných ostrůvků uprostřed lobby a nesou světlejší tóny pískové, tlumené růžové či nugátové barvy. Doplňují je dřevěné stolky navržené autorkou.
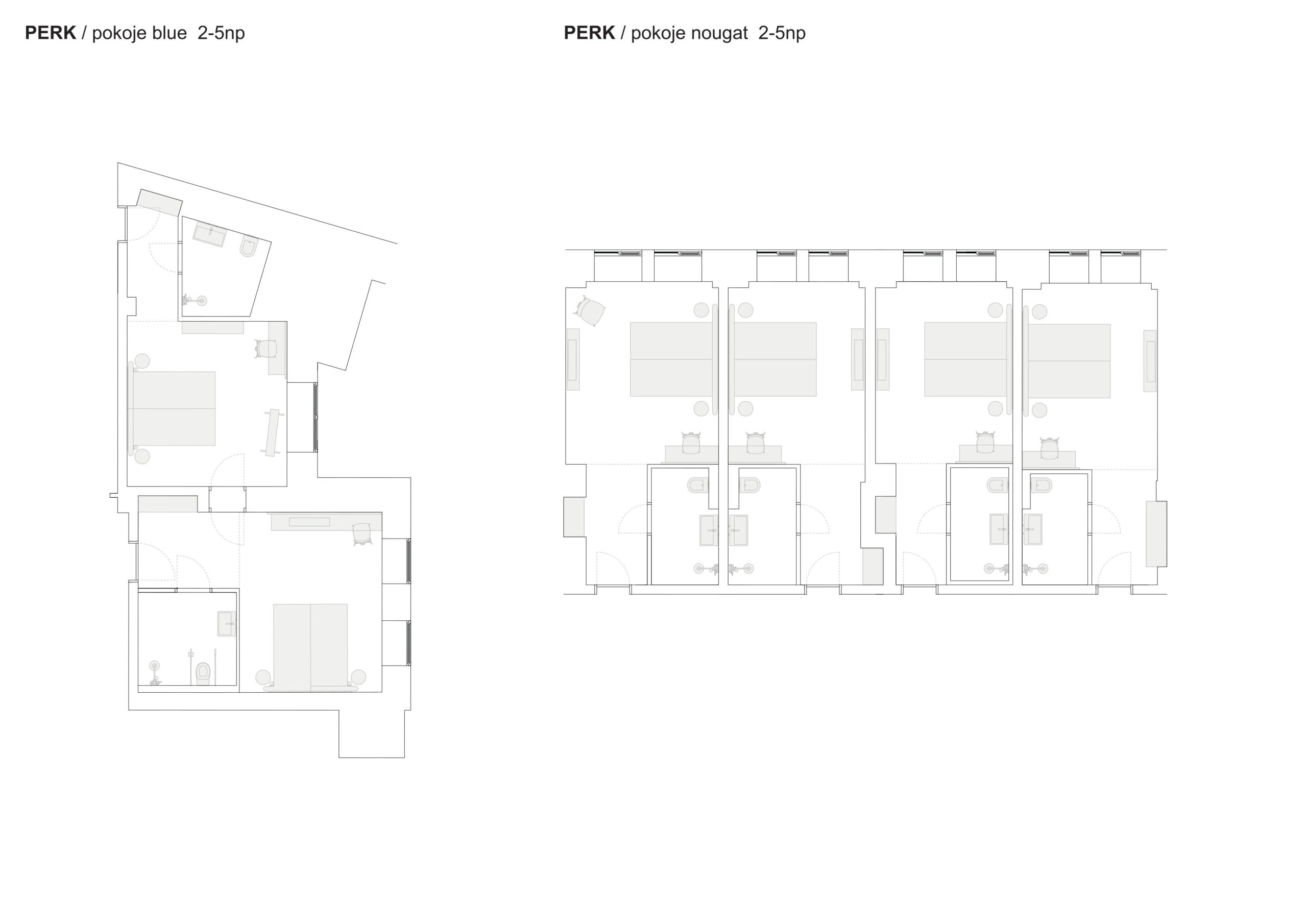
Barevná paleta i materiály lobby a třiceti pěti hotelových pokojů na zbývajících pěti patrech působí v symbiotických kontrastech. V hotelových pokojích a v lobby, se objevuje lomená bílá betonová stěrka. Dále se v prostoru prolínají výrazné prvky z broušeného nerezu jako například recepce, police či barové sezení. Velkorysá kompozice kovových zavěšených svítidel dominuje prostoru lobby a prochází skrze otvor v podlaze do patra restaurace, kde osvětluje a zdobí jeden z hlavních stolů.
V interiéru figurují i obrazy od Michala Ožibka, rodáka ze Šumperka. Další jeho díla může host objevit v konferenčních sálech.

Pokoje v barevných stěrkách
Barevná typologie stěrek pokojů – cihlová, nugátová, olivová, šedomodrá – jsou citlivě určené pro rozjasnění i definici velikostí dispozic či geografické orientace na jednotlivých podlažích. Pokoje jsou vybaveny nábytkem od lokální firmy. Interiér je dále doplněn jemnými křivkami světel o, jež dodávají pokojům osobitý a svěží detail. Dva apartmány v horním 6.patře naproti wellness zóně jsou specifické tím, že mají vlastní terasu s venkovními křesílky a ručně foukaná exkluzivní svítidla. Větší apartmán má velkorysou rozlohu i výhled po celém obvodu pokoje, rozkládací pohodlnou pohovku pro více hostů i vanu s unikátním výhledem do přírody i na terasu.
Centrální původní schodiště vedoucí ke všem pokojům je vypíchnuto v šedorůžové stěrce a tvoří tak spolu se světelným závěsem opálových i tónovaných foukaných koulí dominantu celé budovy.

Atmosférický relax i výhled k horám
Střešní nadstavbě vévodí dřevo a intimní atmosféra zázemí určená k odpočinku, která je podpořena ambientní povahou světelných objektů rozprostřených po celém prostoru saunového světa. Dekorativní osvětlení saun působí netradičně a výjimečně zároveň. Výhled z otevřené střešní terasy pak sahá až na horizont monumentálního horského reliéfu hlavního jesenického hřebene. Realizace trvala bezmála tři roky a představuje největší soukromou investici do turistického ruchu ve městě.

Autoři Lucie Koldová Studio
Foto Honza Zima a Martin Chum
Autorská zpráva
Soutěž Interiér roku, kterou pořádá Institut bytového designu, každoročně oceňuje výjimečné soukromé i veřejné interiéry navržené českými a slovenskými architekty. Do devátého ročníku soutěže designéři a architekti přihlašovali své nově realizované projekty do 28. 2. 2024. Více se dozvíte na www.interierroku.cz. Časopis STAVBA a stavbaweb.cz jsou mediálními partnery soutěže.











































Akustika je často podceňovaný, ale zásadní aspekt kvality bydlení... Článek dobře ukazuje, že nejde jen o samotný materiál, ale hlavně…
Oceňuji hlavně důraz na kvalitu provedení, nestačí jen dobrý materiál, ale i správná realizace. V praxi právě detaily často rozhodují…
Skvělý článek o akustické kvalitě staveb, která je často opomíjená, ale velmi důležitá. Systémy Heluz nabízejí dobrá řešení pro zvukovou…
Zajímavé téma, díky za sdílení. Tyhle novinky z praxe mají vždycky největší přínos 👍
Zajímavý webinář zaměřený na novinky od společnosti Heluz. Oceňuji hlavně představení cihel Heluz AKU a jejich výsledků v oblasti zvukové…