Objekt stodoly je součástí farního areálu u kostela Stětí sv. Jana Křtitele v pražské Hostivaři. Hodnotné území, jehož část je kulturní památkou, se nachází v těžišti původní historické obce. Urbánní struktura i měřítko zástavby jsou zde zachovány v autentické podobě. Původně klasicistní hospodářské stavení se sedlovou střechou pochází z počátku 19. století. V roce 1876 bylo zasaženo požárem a v 70. letech 20. století přestavěno na autodílnu.

Hlavní hodnota v podobě objemu a obrysu domu byla plně ponechána. Návrh reaguje na požadavek investora – zřídit prostor k setkávání komunity i veřejnosti. Hlavní vstup a velký zasklený portál zakončují primární osu areálu.

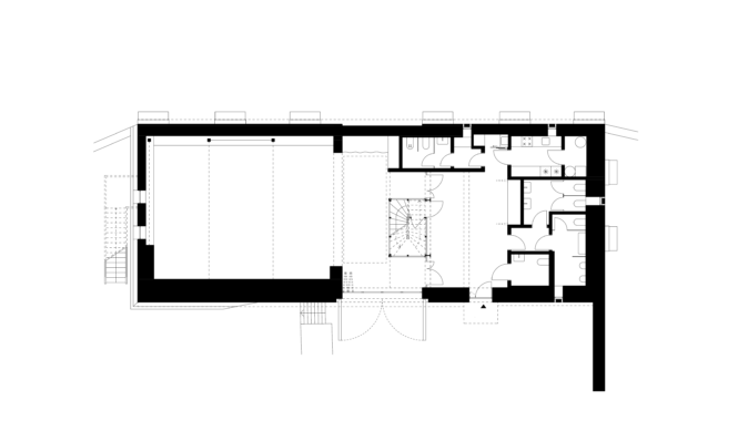
Původně trojtraktová dispozice byla uvolněna pro nové využití. V přízemí stodoly se nachází společenský sál a vstupní lobby, kolem kterého jsou navázány prostory zázemí. Dělicí stěny jsou nahrazeny hmotou schodiště s průsvitným opláštěním. Vertikální objem slouží k propojení podlaží a zároveň odděluje sál od lobby.

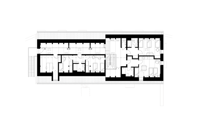
V podkroví domu vzniklo prosté ubytovaní v podobě tří apartmánů se zázemím. Ty doplňuje kancelář správce areálu. Dispozice podkroví obsluhuje podélná chodba. Přístup k ní umožňuje nově vybudované vnější schodiště přiléhající ke štítové stěně stodoly. V pomyslném středu podlaží vzniká převýšený prostor s galerií s kuchyní.

Při přestavbě domu byly nahrazeny nevhodné stavební vrstvy. Materiály použité pro obnovu stavby navazují svým charakterem i řemeslnými postupy na období jejího vzniku. Hlavní markantou interiéru domu je dřevo. Ocelové konstrukce v tlumené bílé barvě s novým omítnutím původních stěn vnáší do objektu současnou vrstvu. Původní krov byl ve velké části napaden houbami a hmyzem, nešel zachovat v plné míře a byl nahrazen kopií. Část zdravých a nenapadených konstrukčních prvků původního krovu, byla ošetřena a vsazena do nové konstrukce.
Kontrast starého a nového zdůrazňuje zřejmé kvality historického domu, přiznává zásahy a reflektuje současný stavitelský rukopis.

Adresa: Domkářská 21/1, Praha 15 Hostivař, 102 00
Realizace: březen–prosinec 2023
Autoři: Studio Raketoplán / Radek Vaňáč, Pavel Nalezený, Kristýna Sojka Rejsková, Ján Šefčík
Foto: Petr Polák
Autorská zpráva
























































Akustika je často podceňovaný, ale zásadní aspekt kvality bydlení... Článek dobře ukazuje, že nejde jen o samotný materiál, ale hlavně…
Oceňuji hlavně důraz na kvalitu provedení, nestačí jen dobrý materiál, ale i správná realizace. V praxi právě detaily často rozhodují…
Skvělý článek o akustické kvalitě staveb, která je často opomíjená, ale velmi důležitá. Systémy Heluz nabízejí dobrá řešení pro zvukovou…
Zajímavé téma, díky za sdílení. Tyhle novinky z praxe mají vždycky největší přínos 👍
Zajímavý webinář zaměřený na novinky od společnosti Heluz. Oceňuji hlavně představení cihel Heluz AKU a jejich výsledků v oblasti zvukové…