Při rekonstrukci bloku na Olšance podle návrhu Architektonického atelieru ABV byla kromě zlepšení tepelně technického standardu, úpravy parteru s rozšířenými průchody a celkové regenerace cílem alespoň částečná integrace do obrazu Žižkova.

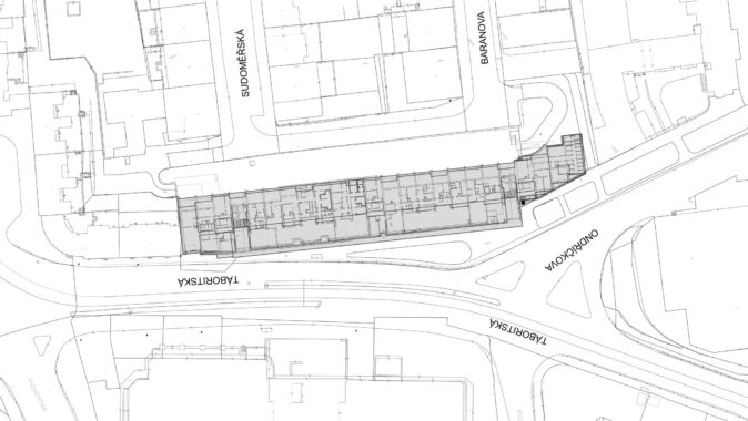
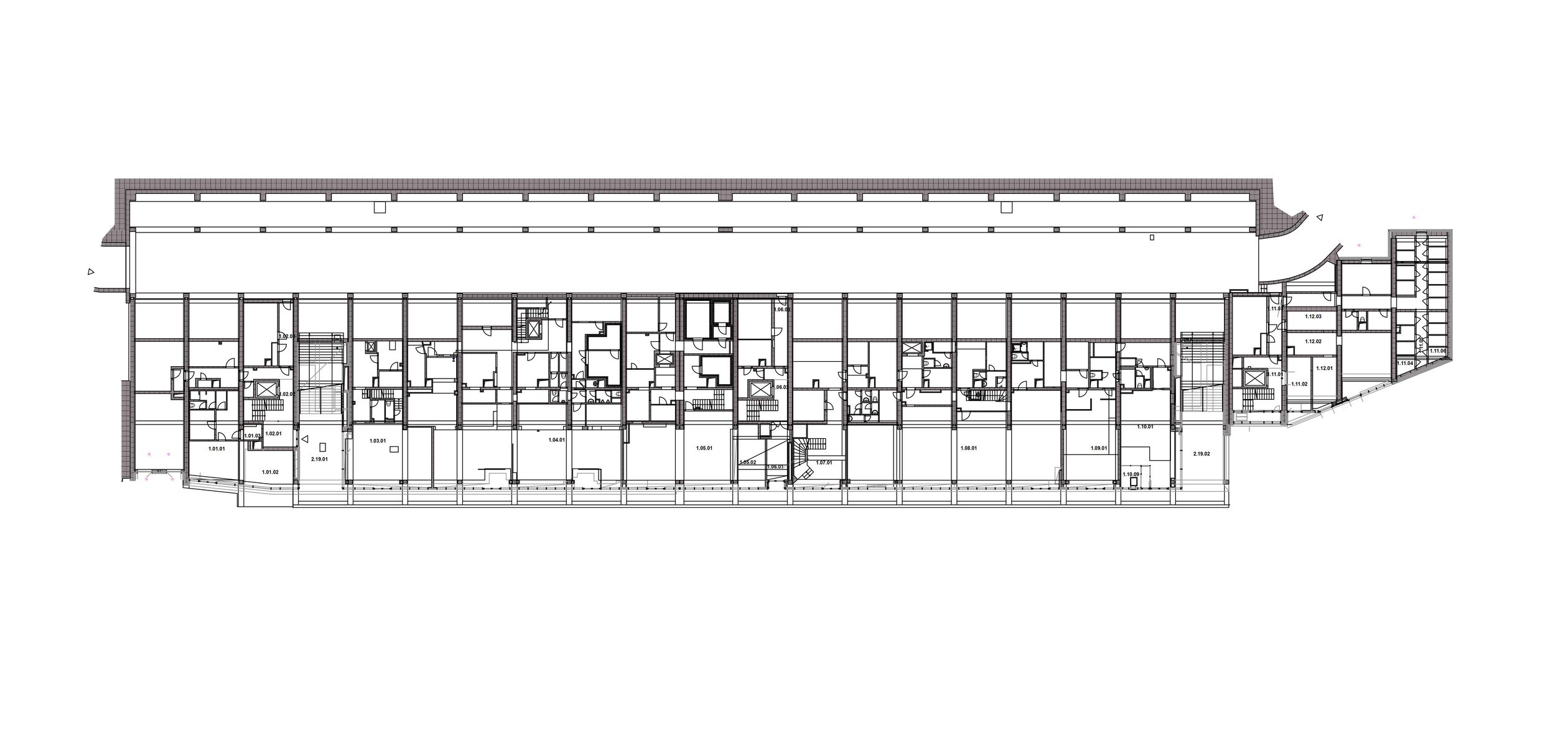
Monumentální forma bloku s převýšeným severním průčelím, domovními chodbami a vertikálním komunikacemi do Táboritské ulice je zdůrazněná téměř symetrickým umístěním schodišťových věží a rytmem původně červených sklípkových rizalitů. Dům tvoří výrazný dobový akcent při vstupu do Žižkova z východu. Neuplatňuje se stejnou měrou v dálkových pohledech jako blok Bezovka s Žižkovskou věží v pozadí. Je vystaven spíše šikmým pohledům z uličního prostoru Táboritské a Olšanské. Hlavní fasáda je odcloněna představeným dvoupodlažním pásem občanské vybavenosti. Jižní průčelí směrem do Baranovy a Sudoměřské mělo původně slepý parter se vstupy do skladového zázemí obchodů a další vybavenosti a před sebou nevyužitou plochu na střeše podzemních garáží.

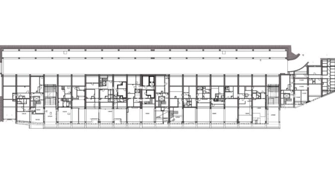
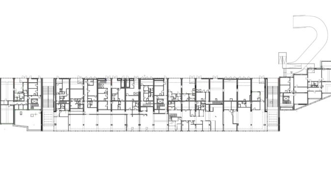
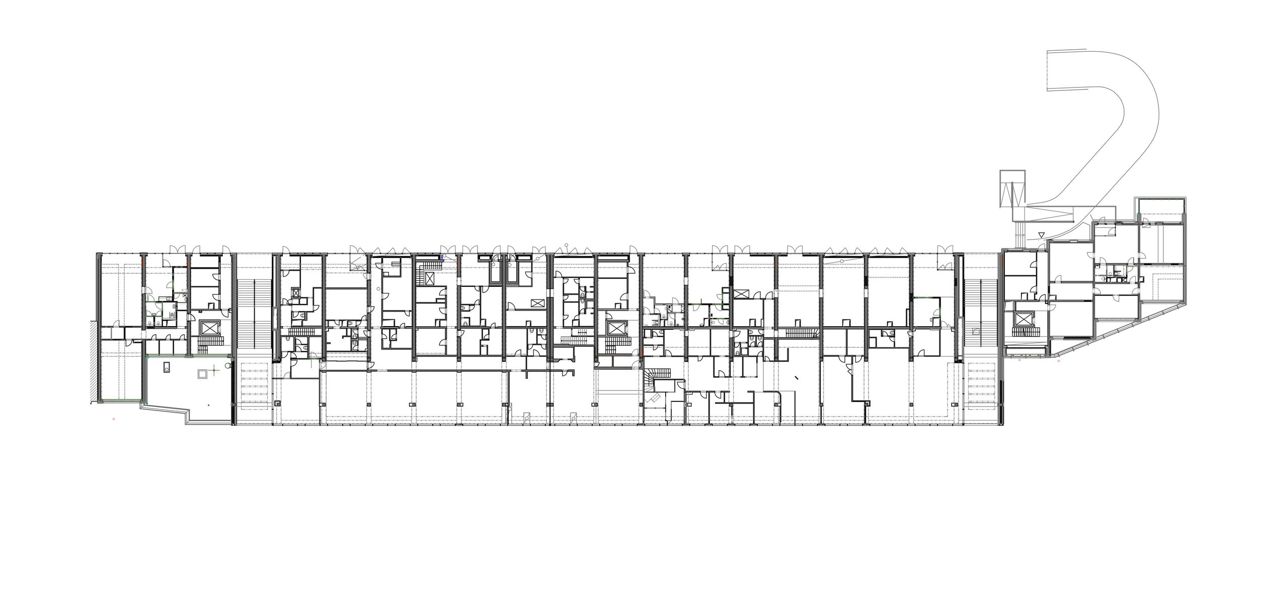
Dům byl zateplen, s bílou omítkou a šedými detaily, byly vyměněny všechny výplně otvorů fasády, proměnil se i výrazný skelet předsazeného obchodního parteru. Rozsvítila ho prosklená fasáda v 2. NP, boční štítové stěny jsou nově plné. Spolu s novým využitím některých nebytových prostor, částečně i v jižním parteru byly rozšířeny stávající průchody a je tak dosaženo dojmu krátkých pasáží. Plné rizality sklípků byly zbaveny barevného a materiálového akcentu, byly odstraněny nevyužívané lodžie před dvěma krajními schodišti a jejich vnitřní obvodový plášť nahradila prosklená fasáda. Byla doplněna výrazná střešní římsa, která s bočními rizality lodžií rámuje severní průčelí.

Úprava jižního průčelí spočívá především v novém barevném pojednání a tedy rozlišením celků v proporcích běžného žižkovského činžáku. Zábradlí lodžií bylo nahrazeno HPL deskami nebo prosklením. Průchody byly rozšířeny včetně schodišť přes téměř celý šestimetrový modul panelové soustavy VVÚ ETA. V návaznosti na obnovu opláštění budovy a rozšíření průchodů došlo i k dispozičním změnám v obchodní podnoži. Cílem bylo dispozice optimalizovat nevyužívané součásti domovního vybavení jako sušárny a prádelny nahradit pro komerčně využitelné jednotky. Ve výhledu je v návaznosti na etapu rekonstrukce podzemních garáží navržena revitalizace jižního parteru se stínícími pergolami a zelení pro venkovní pobyt a předzahrádku nového prostoru kavárny.
Autorská zpráva
Investor: Městská část Praha 3
Autoři: Architektonický atelier ABV / Petr Benda, Eva Letovská
Spolupráce: Veronika Suchánková, Filip Strnad
Vizuální komunikace: Veronika Rút Fullerová
Projekt: D-PLUS PROJEKTOVÁ A INŽENÝRSKÁ / Viktor Nýč
































Do 4/1 jsou Mockerovy domy přístupné v rámci akce Vánoční putování Pražským hradem https://www.hrad.cz/cs/kultura-na-hrade/program/vanocni-putovani-prazskym-hradem-1-13462
Hodně mě překvapilo, že je v areálu Pražského hrad tahle zanedbaný dvorek. Na leteckých snímcích to vypadá líp, jako že…
Díky za odkaz, opravdu zajímavý projekt! Rekonstrukce za plného provozu je vždycky náročná, a je skvělé vidět, jak se to…
Ano, továrna v Pardubicích je velmi zajímavá. Kromě jiného rekonstrukce probíhala za plného provozu. Přikládám odkaz na celou stavbu, je…
V rámci Prahy jde o jednu z nejhlučnějších lokalit, které lze v centru najít. ideální pro drahé kanceláře a bydlení.…