Rodinný dům v Kolíně od atelieru 0,5 Studio je výrazná novostavba, která díky ve své jednoduché formě doplňuje krajinu na rozhraní pole a dubového lesa. Návrh vznikl z požadavku na propojení domu s okolní přírodou.

Dům vychází z archetypu rodinného domu se stodolou, pracuje s výrazným hmotovým kontrastem a ikonickou „odříznutou“ vyhlídkou – pásmem panoramatických oken v horním patře, které otevírá výhledy do široké krajiny.

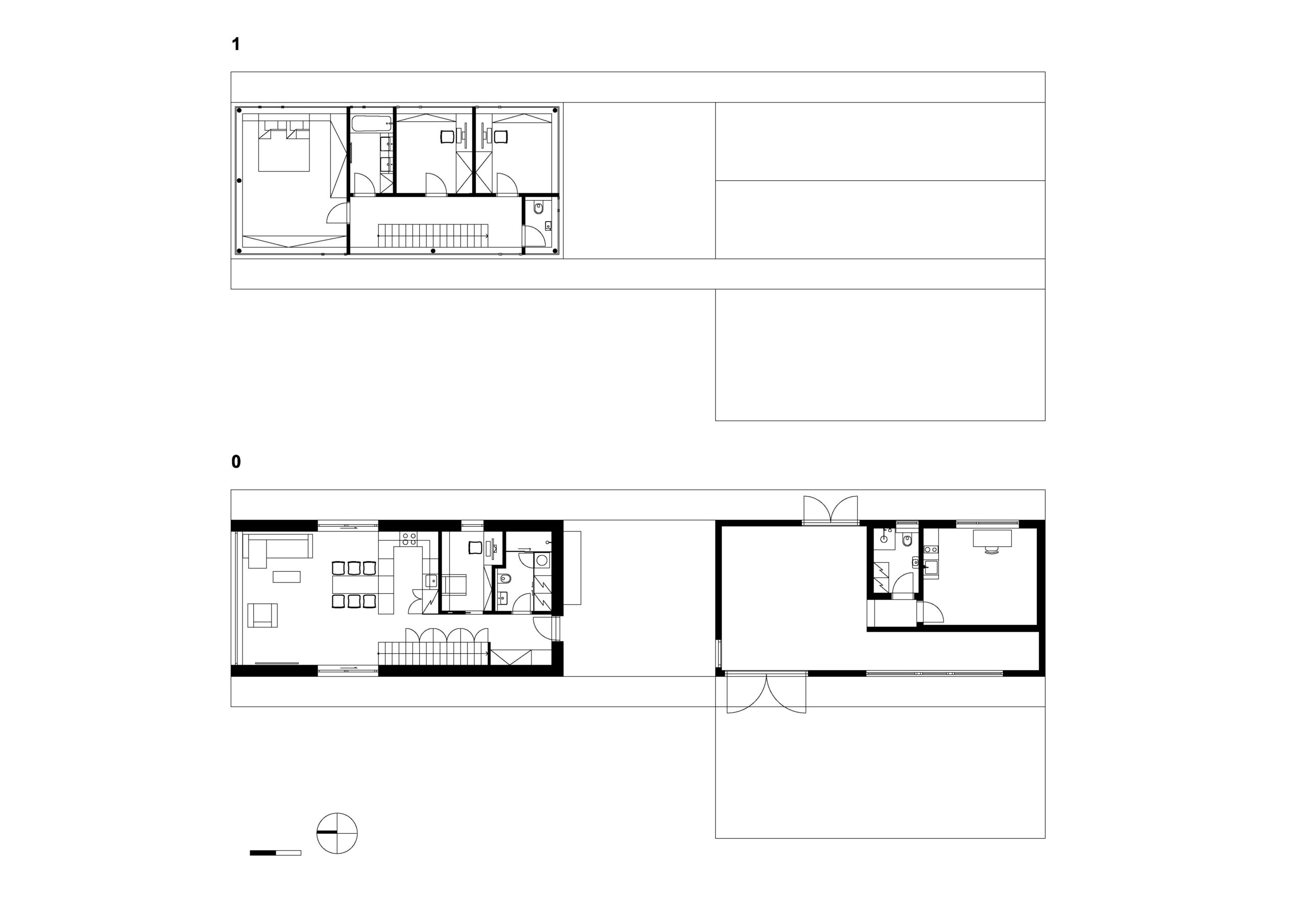
Samotný dům má převýšenou, dominantní kompozici, zatímco přístřešek a stodola působí lineárně a obslužně. Přízemí tvoří otevřený obytný prostor s kuchyní, pracovnou a zázemím. V horním patře se nacházejí dětské pokoje, ložnice, koupelna a WC. Přístřešek nabízí chráněné venkovní posezení a stodola slouží jako parkovací i tvůrčí prostor.

Exteriér je obložen černými horizontálně kladenými prkny, která zdůrazňují horizontální linii krajiny a zároveň vytvářejí kontrast ke světlému dřevěnému interiéru v jemných, světlých odstínech. Díky velkým oknům a otevřenému obytnému prostoru je interiér úzce propojený se zahradou i okolní přírodou. Čisté linie a přírodní materiály, zde vytvářejí klidné a harmonické prostředí respektující kontext pozemku i potřeby jeho obyvatel.

Horní patro funguje jako vyhlídka do krajiny, zatímco podlouhlá hmota stodoly doplňuje kompozici domu a odkazuje k tradičnímu hospodářskému stavitelství. Projekt tak spojuje moderní pojetí bydlení s citlivým vztahem k místu. Energetický koncept stavby využívá tepelné čerpadlo země–voda, podlahové vytápění a trojskla s vysokými izolačními vlastnostmi.
Autorská zpráva
Místo stavby: Kolín
Autoři: 0,5 Studio / Vít Svoboda, Pavel Nový
Projekt a realizace: Chytrý dům
Podlahová plocha: dům 124 m², stodola 71 m²
Návrh: 2023
Realizace: 2024–2025
Foto: Peter Fabo
































Ulice? Adresa?
V Kolíně, u dubového lesa 🙂
Nebyla uvedena – jako to u rodinných domů bývá často.