Rodinný dům Banánka od studia Paulíny Hovorka Architekti staví kvalitu bydlení na každodenním kontaktu s přírodou — obytné prostory se otevírají do zahrady, k jezírku i okolnímu lesu a umožňují plynulé propojení interiéru s venkovním životem během většiny roku.

Architektonický návrh vychází z bezprostředního kontaktu domu s okolní krajinou, který se promítá do jeho syrové materiality, uměřeného horizontálního tvarosloví i přímočaré funkcionality minimalistického řešení. Princip bydlení je založen na intenzivním propojení interiéru s exteriérem prostřednictvím velkorysých prosklených stěn lemujících podstatnou část stavby.

Posuvná prosklená fasáda umožňuje během teplejší části roku plné propojení centrální obytné haly s terasou a zahradou s jezírkem. Do interiéru se tak přirozeně promítá krajinná scenérie — vodní hladina, vzrostlé stromy i skalnatý charakter okolního údolí. Dům se nachází na okraji obce Banka u Piešťan v komorním prostředí zeleného údolí s velmi volnou zástavbou rodinných domů. Pozemek obklopuje listnatý les a jeho hranici lemuje celoročně vodnatý potok, což místu poskytuje výraznou míru soukromí i silnou přírodní kulisu. Původně zahradní charakter parcely se stal jedním ze základních východisek návrhu.

Hlavním principem bylo osadit stavbu mezi existující stromy bez nutnosti jejich kácení a zachovat tak přirozeně vzniklou strukturu zahrady. Trojramenný hvězdicový půdorys zároveň rozděluje pozemek na několik menších zahradních celků, k nimž se z jednotlivých částí interiéru otevírají specifické výhledy.
Soutěž Interiér roku, kterou pořádá Institut bytového designu, každoročně oceňuje výjimečné soukromé i veřejné interiéry navržené českými a slovenskými architekty. Více se dozvíte na interierroku.cz. Časopis STAVBA a stavbaweb.cz je mediálním partnerem soutěže.

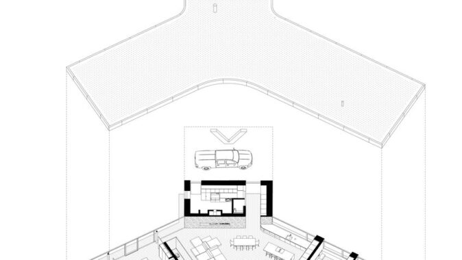
Dispozice domu je rozdělena do tří funkčních křídel propojených centrálním obytným prostorem. Ten tvoří hlavní společenské těžiště domu a zároveň navazuje na venkovní obytnou terasu. Severní křídlo obsahuje vstupní a technické zázemí, jižní křídlo je určeno dětským a hostovským pokojům doplněným pracovnou a meditační místností. Západní křídlo představuje klidovou část domu s hlavní ložnicí, šatnou, koupelnou a wellness se saunou.

Wellness zóna plynule přechází na menší terasu s vířivým a ochlazovacím bazénem navazujícím na zahradu s potokem. Hlavní terasa je doplněna venkovní kuchyní a jídelním prostorem orientovaným k zahradnímu jezírku. Výsledná stavba odráží původní zadání — vytvořit klidné místo pro život a relaxaci uprostřed zeleně, kde architektura nevystupuje nad krajinu, ale stává se její přirozenou součástí.
Podle autorské zprávy
Lokalita: Banka, okres Piešťany, Slovensko
Autoři: Paulíny Hovorka Architekti / Braňo Hovorka, Martin Paulíny, Natália Galko Michalová, Veronika Ivanovičová, Lenka Kopfová
Návrh a projekt: 2020–2021
Realizace: 2021–2024
Foto: Matej Hakár














































Obraťme zvýšenou pozornost místům, kde s dá stavět, Bubny Zátory, přednádražní prosto u branického nádraží...
Doplňuji do textu dva odstavce z tiskové zprávy.
To není moc jasné. Jaký most bude zcela uzavřen, když se staví zcela nový? Jistě ne na místě stávajícího, který…
Už mám těch všech nesmyslných nápadů až po krk! Je to úplně stejné jako za komunistů, banda hloupých a líných…
Otázka z titulku nebyla zodpovězena. Pod obrázky chybí popisky (kategorie, umístění). Jsou alespoň v pořadí, ve kterém jsou ceny uvedeny…