Projekt Adély Oršulíkové je transformací i osobním příběhem o hledání domova. Architektce ruch velkoměsta nevyhovoval, toužila po klidu a zároveň potřebovala zůstat v dosahu práce. Vlastní bydlení v rozumné vzdálenosti od Prahy se zdálo být nedosažitelné.

Když jsem se poprvé přišla podívat na malou chatku inzerovanou k prodeji, věděla jsem to je ono. Osada 40ti chat sloužila původně jako převlékárny berounské plovárny – čtvercové stavby o čtyřech samostatných místnostech, každá necelých 9m2, které se časem zprivatizovaly a dodnes mají některé chaty 4 majitele. Každý si ke své části více či méně něco přistavěl (převážně ze zbytků) a výsledkem je kolonie podobná slumu, ale geniem loci.

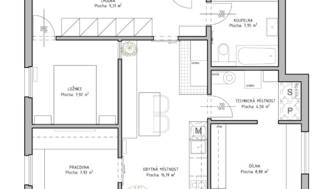
Měla jsem štěstí a koupila jsem „celou“ chatu zvětšenou o přístavek dílny a verandy. Dispozice je poznamenaná původním účelem, místnosti 2,6 × 2,6 m se světlou výškou 2,3 m naznačovaly, že není možné plýtvat místem. Výzvou bylo vytvořit plnohodnotný, funkční a estetický domov v rámci těchto omezení, a to s minimálními náklady a maximálním důrazem na udržitelnost a autenticitu. Dětství jsem kromě karvinského paneláku trávila na horách v Beskydech, kde jsme měli chatu – bez koupelny, v kuchyni tekla jen studená, zimní rána doprovázela jinovatka na zdech místnosti. Přesto pro mě jsou tyto vzpomínky synonymem úžasných časů dětství, nekonečné svobody, ticha lesa a syrového kouzla hor.
Soutěž Interiér roku, kterou pořádá Institut bytového designu, každoročně oceňuje výjimečné soukromé i veřejné interiéry navržené českými a slovenskými architekty. Do 11. ročníku soutěže mohou designéři a architekti přihlašovat své nově realizované interiéry do 28.2.2026, více se dozvíte na interierroku.cz. Časopis STAVBA a stavbaweb.cz je mediálním partnerem soutěže.

Vedle evropské tradice mě vždy přitahovala i estetika východní filozofie. Nejde jen o vizuální estetiku – lněná kimona, plátěné boty, neutrální barevnost – ale o celý způsob myšlení. Minimalismus, který není jen trendy pojmem, ale životní filosofií. Prostor, který dává prostor člověku, ne ho zahlcuje. Nábytek, který je lehký, vzdušný, ale přitom stabilní. Materiály, které s věkem získávají patinu a krásu. Hlavním principem návrhu bylo propojení skromnosti a jednoduchosti tradičních venkovských obydlí s požadavky moderního bydlení. V rámci dispozičního řešení bylo klíčové najít rovnováhu mezi otevřeností a intimitou. Přestože se jedná o poměrně malou stavbu (užitných 67 m²), podařilo se zde vytvořit plnohodnotnou dispozici 3+kk s dílnou, technickou místností a prostornou koupelnou.

Moderní technologie jsou buď skryté, nebo pečlivě integrovány tak, aby nerušily celkový dojem – lednice a pračka jsou umístěny v technické místnosti, trouba nebo kávovar bez zbytečně blikajícího digitálního displeje. Obytný prostor s kamny, stolem a lavicí odkazuje na starou světnici, kde večer slyšíte tikat hodiny a praskat oheň. Na omezené ploše bylo klíčové pracovat s úložnými prostory. Proto jsou ukryty pod lavicí, pod pohovkou nebo dokonce v pracovním stole, kde se nachází skryté piano.

Přestože interiér odkazuje k minulosti, nezapomíná na moderní komfort. Hliníková okna, zateplení, moderní kuchyňská linka s vestavnou myčkou a digestoří, plynová varná deska a elektrická trouba jsou integrovány tak, aby nenarušovaly estetiku prostoru. Dominují přírodní materiály – hliněná nátěrová omítka v neutrálním tónu na stěnách a stropě, borovicové dřevo, ze kterého jsou vyrobeny dveře, zárubně, parapety i nábytek. Lino v imitaci světlé betonové stěrky.
Autorská zpráva, kráceno
Autorka a foto: Adéla Oršulíková



































Doplňuji do textu dva odstavce z tiskové zprávy.
To není moc jasné. Jaký most bude zcela uzavřen, když se staví zcela nový? Jistě ne na místě stávajícího, který…
Už mám těch všech nesmyslných nápadů až po krk! Je to úplně stejné jako za komunistů, banda hloupých a líných…
Otázka z titulku nebyla zodpovězena. Pod obrázky chybí popisky (kategorie, umístění). Jsou alespoň v pořadí, ve kterém jsou ceny uvedeny…
Gratulace všem oceněným i nominovaným realizacím... Je vidět, že i u zděných domů vzniká spousta kvalitních a architektonicky zajímavých staveb..