Knihovna Gabriela Garcíi Márqueze od mladého španělského studia SUMA Arquitectura je průkopnickou stavbou. Slouží obyvatelům dělnické čtvrti, v níž léta chyběly významné investice. Realizace zvítězila v kategorii pro začínající architekty (Emerging Architecture) loňského ročníku Ceny Evropské unie za současnou architekturu / Ceny Miese van der Rohe.

Knihovnu představí na přednášce k výstavě Nejlepší evropská architektura v CAMP 29. ledna 2025 v 19h architekt Guillermo Sevillano z ateliéru SUMA arquitectura. Společně s Annou Ramos, ředitelkou nadace Ludwiga Miese van der Rohe, přiblíží příběh tohoto projektu.
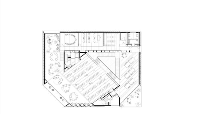
Tvar knihovny připomíná bloky naskládaných knih. Nachází se na vyvýšeném náměstí, které umožňuje plynulý pohyb chodců kolem budovy a přesahem vytváří „městský salón“, jenž prodlužuje pěší a kulturní osu čtvrti, obklopený vzrostlými původními stromy. Knihovna nabízí reinterpretaci charakteristického zkosení rohů (chamfer) čtvrti Eixample v Barceloně na křižovatce, která je nyní náměstím Plaça Carmen Balcells. Pětačtyřicetistupňová geometrie zkosení odráží osu sever–jih, která prochází celou knihovnou – od trojúhelníkového atria přes vertikální jádra až po fasády a světlíky, které zajišťují nepřímé osvětlení. Budova se vyhýbá přímým výhledům na policejní stanici a orientuje se na ulici s výhledem na stromy.

Pozemek knihovny je malá obdélníková parcela na křižovatce dvou vedlejších ulic, za policejní stanicí. Omezený prostor vedl k navýšení počtu podlaží, přičemž budova nepřesahuje výšku korun stromů. Vyvýšené přízemí přináší světlo a funkční nezávislost spodního patra, které je přístupné přes zadní zahradu. Budova má tři komunikační jádra kolem trojúhelníkového atria, která jsou propojená dřevěnými příhradovými nosníky. Geometrie a umístění jader podporuje pohyb v okolí atria, čímž se atrium stává centrálním a propojujícím prvkem s centrálním schodištěm ve tvaru spirály. Projekt redefinoval model moderní knihovny na základě průzkumu programu. Od Agory–Výkladní skříně přes Fórum myšlenek až po Palác čtení je knihovna krajinou, spirálou setkání, kde každý najde své místo.

Knihovna zahrnuje četné energeticky úsporné a udržitelné strategie, což jí zajistilo certifikaci LEED Gold. Ty zahrnují: atrium fungující jako solární komín, lehký a větraný obvodový plášť z laminovaného sklolaminátu s pryskyřicemi optimalizující solární ochranu a přirozené osvětlení, industrializované a prefabrikované stavební systémy, materiály s nízkými emisemi, fotovoltaické panely, recyklaci dešťové vody a další.

Dřevěná konstrukce nejen plní nosnou funkci, ale také utváří charakter prostoru. Dřevo ovlivňuje výhledy, cirkulaci, definuje měřítko a charakter knihovny. Spolu s ostatními architektonickými a programovými prvk vznikl soudržný ekosystém. Konstrukční celek kombinuje pohledové vrstvené a křížem vrstvené dřevo (největší pohledový objem tohoto typu v Evropě k datu stavby) se speciálními a vyztužujícími ocelovými prvky a truhlářskými detaily. Výsledkem je kombinace tepla, lehkosti a vizuální prostupnosti.
V roce 2023 byla tato „katedrála knih“ oceněna titulem „nejlepší nová knihovna na světě“ podle Světového kongresu knihoven v Rotterdamu.
Autorská zpráva, zdroj zdroj EUMiesAwards

Místo Barcelona, Španělsko
Rok zahájení 2019
Rok dokončení 2022
Autoři SUMA Arquitectura / Elena Orte, Guillermo Sevillano
Spolupráce
Architecture Team: Marta Romero Architecture team: Jesús López, Luis Sierra architecture team: Ana Patricia Minguito, Pablo Corroto, María Abellán, Sara Contreras, Rita Álvarez Tabio, Miguel Ángel Maure Structural engineering: Miguel Nevado Technical project architect: Nuria Sáiz Construction execution management – MasterPlan: Antonio Yoldi Construction execution management – Masterplan: Miguel Ángel Orcalla Consulting: ENAR facade consultants Ingeniería de instalaciones: Úrculo Ingenieros On-site engineering installations: M7 Ingenieros Landscape architect: Julio Gonzalez Acoustical: Margarida ingeniería acústica Energy Efficiency Engineering – LEED: CABA Signage: COMO design
Investor BIMSA Barcelonský magistrát
Zastavěná plocha 1574 m2
Užitná plocha 4170 m2
Foto Jesús Granada, Pol Viladoms
















































Kaskády Hranice jsou skvělým příkladem toho, že i bytová výstavba může mít kvalitní architekturu, promyšlený urbanismus a příjemný prostor pro…
Architektura musí souviset s místem, nikoli místo s architekturou. Proto jakékoli stavby umožňující realizaci na různých místech nejsou ARCHITEKTUROU.
Z mého pohledu je fajn vidět, jak se i u tak „běžné“ věci, jako jsou překlady, řeší systémovost a přesnost!
Praktické řešení, hlavně z pohledu rychlosti výstavby a přesnosti👍 U těchto systémových prvků dává smysl, že zjednodušují realizaci a pomáhají…
Zajímavý posun ve stavebnictví, je vidět, že se dnes klade velký důraz hlavně na rychlost výstavby a přesnost provedení. Systémové…