Technologické centrum UMPRUM v Praze od autorů Ivana Kroupy, Jany Moravcové a Tomáše Zmeka – recenze, kterou napsal Petr Volf pro časopis Stavba 2/2022. Dílny jsou finalistou České ceny za architekturu 2024.

Potřeba rozšířit vysokou školu uměleckoprůmyslovou (UMPRUM) se začala palčivě ukazovat zejména v průběhu 90. let 20. století. V souvislosti s privatizací nemovitostí prestižní škola přišla o řadu dílen na Starém Městě, které musely být posléze vtěsnány do historické budovy na Palachově náměstí. Situaci měla vyřešit výstavba nového areálu v Ďáblicích. Pozemky, zakoupené v roce 1998, se však ukázaly jako kontaminované ropnými látkami a musely se sanovat. V roce 2003 proběhla architektonická soutěž, v níž uspěl Josef Pleskot, na druhém místě skončili architekti A69, na třetím Ladislav Kuba s Tomášem Pilařem.

Myšlenka, že by studenti pendlovali mezi Palachovým náměstí a dalšími pracovišti v Ďáblicích, byla od samého počátku přijímána s nevolí a vesměs se hovořilo o možné ztrátě identity. Zaznívaly také obavy, že jde jen o první krok k tomu, aby UMPRUM úplně opustila střed Prahy (škola se prodá developerům na hotel) a následně se ocitla nejenom na periferii dění, ale i zájmu. V roce 2011 vedení instituce od ďáblického záměru upustilo s tím, že strategie byla shledána nevhodná. Tehdejší diskuse byly důležité vzhledem k přítomnosti, protože ukázaly, kudy cesta rozšiřování nevede, a přispěly k rozhodnutí hledat vhodnou budovu v přiměřené vzdálenosti od „matečního objektu“. V roce 2012 se vedení UMPRUM reprezentovanému rektorem Jindřichem Smetanou podařilo získat opuštěnou školu v Mikulandské ulici č. p. 134, která sledovaná kritéria splňovala: dvě zastávky tramvají nebo asi kilometr pěšky.

Třípodlažní stavba z roku 1892 byla sice provedena v novorenesančním slohu (podle plánů stavitele Václava Nekvasila), který je čím dál více historiky oceňován, nicméně při odborném posuzování v roce 2016 nebyla shledána natolik cennou, aby musela být památkově chráněna. Pravděpodobně k tomu přispěla skutečnost, že byla několikrát přestavována (1949, 1956, 1992), stejně jako fakt, že nejde o ojedinělý počin, jenž by mohl být nezastupitelným reprezentantem určité typologie. Adaptace na Technologické centrum, jak zní oficiální název budovy, byla svěřena přímo Ivanu Kroupovi, jenž jako profesor architektury na UMPRUM znal velmi detailně potřeby školy. Nešlo jen o tuto kvalifikaci. Především mohl uplatnit to, co si v prvním desetiletí jednadvacátého století osvojil při konverzi bývalé továrny na Centrum současného umění DOX v pražských Holešovicích nebo při tvorbě českobudějovické tiskárny Karmášek a jejím následném rozšířením o galerii. Zmíněné realizace byly hojně publikovány, jsou esencí obdivuhodné střídmosti, ukázněnosti a inovativnosti. Technologické centrum zmíněnou tendenci završuje.

Ivan Kroupa nejprve počítal s částečným zachováním původních podélných křídel školy, ale vzhledem ke statickým problémům, které se projevily masivním zřícením při pracích v roce 2018, zůstala zachována jenom uliční fasáda, za níž se odehrává vše podstatné. Věci se daly do pohybu. Jako by samy předznamenaly další děje. Nemá už smysl se zabývat tím, jestli je to správné nebo nikoliv: obecně platí, že převzít z prvotního objektu do novostavby jenom průčelí je považováno za lživý přístup nazývaný jako „fasádismus“, ale jsou případy, kdy je možné – vzhledem ke kvalitě projektu a jeho přínosu pro instituci, potažmo celou lokalitu – udělat výjimku.

Kroupovo pojetí je pragmatické, můžeme hovořit o tom, že vytvořil fabriku na umění v nejvlastnějším smyslu slova. Přesto je v něm dostatek prostoru pro architekturu a symboliku, která se projevuje například jednoznačným rozříznutím fasády na výšku stavby a skrze hloubku dispozice. Není to samoúčelné gesto, demonstruje otevřenost a čerstvou energii, která do budovy s novými nájemníky přichází. Vertikála je metaforou proměny základní školy ve školu vysokou. Součástí tohoto razantního vstupu je lešenářská konstrukce, která sehrává roli umělecké instalace a zároveň umožňuje poutat nejrůznější akce nebo dočasně představovat díla ve veřejném prostoru, aniž by komukoliv mohla překážet. Je to další zpřítomňující prvek. Mimochodem, Ivan Kroupa lešení jako určující výrazový prostředek použil v roce 2006 v Československém pavilonu v rámci prestižního benátského architektonického bienále.

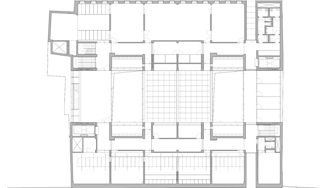
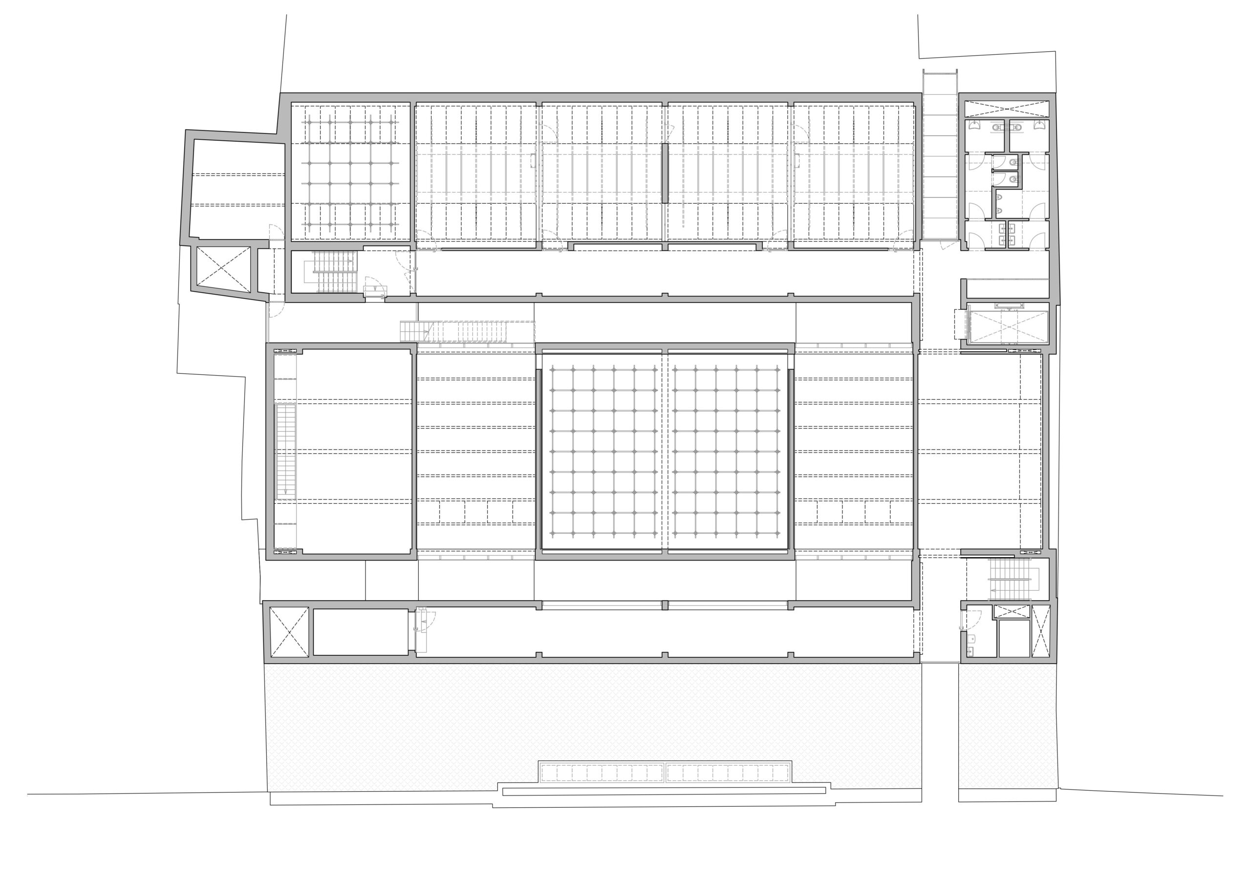
Podstatné je však to, co se skrývá za aktualizovanou novorenesanční zdí. Půdorys opakuje předchozí čtyřkřídlé členění, přičemž veškeré prostory jsou odstupňovány podle toho, jaké činnosti se v nich odehrávají. Zastřešené atrium, kde se můžou konat nejrůznější společenské akce, je veřejně přístupné. Jeho dominantou je vestavěná železobetonová, skleněnými stěnami opatřená konstrukce, jež kromě toho, že jsou v ní učebny, sehrává roli jakéhosi „levitujícího“ těžiště. Prvotřídně vybavené dílny (keramické, sklářské, typografické, modelářské a tak podobně, včetně lakovny nebo třírozměrného tisku), v nichž je nutné dodržovat bezpečnostní pravidla, nejsou pochopitelně běžně dosažitelné, můžou je využívat jenom studenti příslušných oborů. Hlavním rysem je prostorová velkorysost, lehkost, které jsou dosaženy převládající transparentností, díky níž jsou lidé v přirozeném vizuálním kontaktu. Leitmotivem objektu jsou ocelové rošty sloužící jako zábradlí na ochozech, ale jsou také pochozí: je jimi pokryta střešní terasa, odkud je inspirativní výhled na krajinu střech Starého Města, kterým se může těšit až sedm stovek lidí, tedy celá škola včetně studentů a zaměstnanců. Rošty se dají použít jako výstavní panely, vysloveně si říkají o to, aby na ně byly připevněny kresby, fotografie, plakáty, manifesty.

Technologické centrum UMPRUM je příkladem soudobé organické architektury, která není založena na prvoplánově amébovitém nebo eliptickém tvaru, ale je takovou, protože se v ní všechno vzájemně prolíná do jediného provázané celku jako v neuronové síti. Jedná se o nástroj k použití, který ožívá ve chvíli, je-li s ním správně zacházeno. Při jarní návštěvě měl autor tohoto textu dojem, že už funguje několik let. Zároveň je nutné poznamenat, že pro střed Prahy, který se dlouhodobě vylidňuje, se stal požehnáním, protože tam, kde jsou studenti, je o oživení postaráno. Hned v přímém sousedství se nachází Schönkirchovský palác (s Galerií Zdeněk Sklenář) a už ikonická budova Drn (s vyhledávaným coworkingovým pracovištěm) od architekta Stanislava Fialy, které revitalizační události v Mikulandské ulici nastartovaly. V projektu se počítá s tím, že by se v případě potřeby mohly tyto stavby synergicky propojit. Není nad dobré sousedy!
Petr Volf, leden 2022, vyšlo v časopise Stavba 2/2022
Foto Peter Fabo
Místo stavby Mikulandská 5, Praha 1
Autoři Ivan Kroupa, Jana Moravcová, Tomáš Zmek / Projektový atelier UMPRUM
Investor Vysoká škola uměleckoprůmyslová v Praze
Zastavěná plocha cca 2000 m2
Užitná plocha 10 570 m2 + terasa 540 m2
Obestavěný prostor 57 150 m3
Projekt 2012–2020
Realizace 2018–2021
Náklady stavba vč. interiéru 500 mil. Kč bez DPH + technologické vybavení dílenských provozů 100 mil. Kč bez DPH











































Architektura musí souviset s místem, nikoli místo s architekturou. Proto jakékoli stavby umožňující realizaci na různých místech nejsou ARCHITEKTUROU.
Z mého pohledu je fajn vidět, jak se i u tak „běžné“ věci, jako jsou překlady, řeší systémovost a přesnost!
Praktické řešení, hlavně z pohledu rychlosti výstavby a přesnosti👍 U těchto systémových prvků dává smysl, že zjednodušují realizaci a pomáhají…
Zajímavý posun ve stavebnictví, je vidět, že se dnes klade velký důraz hlavně na rychlost výstavby a přesnost provedení. Systémové…
Jako problém vidím hlavně "lavičky" v prostoru sdíleném s cyklisty. Neměly by mít třeba tyče s praporky, jako dětské nákupní…