Dům pro bydlení v zátopové oblasti
Stavba vlastního domu, vlastním nákladem a na vlastním pozemku v kombinaci s možnostmi elektronické komunikace všeho druhu představuje účinný nástroj ve všech fázích přípravy a tvorby stavby. Z jednoho místa je možné vytvářet a koordinovat kolektivy odborníků na projektování i realizaci stavby.
Prezentovaná realizace domu v Hradištku-Kersku je konkrétním
příkladem tohoto postupu. Dům je umístěn v prostoru slepého ramene dnes
radikálně regulované řeky Labe; jedná se o prostor s blíže neurčenou možností lehkého zatopení.
Dynamiku řeky v této části toku dokládají současné i historické mapové
podklady. Vlastnosti místa v proluce uprostřed
Kerského lesa vedly k pokusu o soudobě formulovaný typ domu s „průtočným
přízemím“, historicky hojně užívaný v okolí říčních toků s kolísající hladinou.
Pro daný úkol byla zvolena klasická rámová konstrukce z dřevěného smrkového masivu. Prvky tesařské konstrukce byly tvarovány s využitím elektronických automatických strojů a sestaveny na staveništi. Touto cestou se mimochodem stávají klasické tesařské rámové konstrukce znovu výhodné pro svou nízkou spotřebu řeziva.
Během stavby byly průběžně aktualizovány detaily fasád, zábradlí, schodišť a interiéru. Tak byla efektivně využita celá doba výstavby, ze které velké množství času představují technologické a kapacitní přestávky.
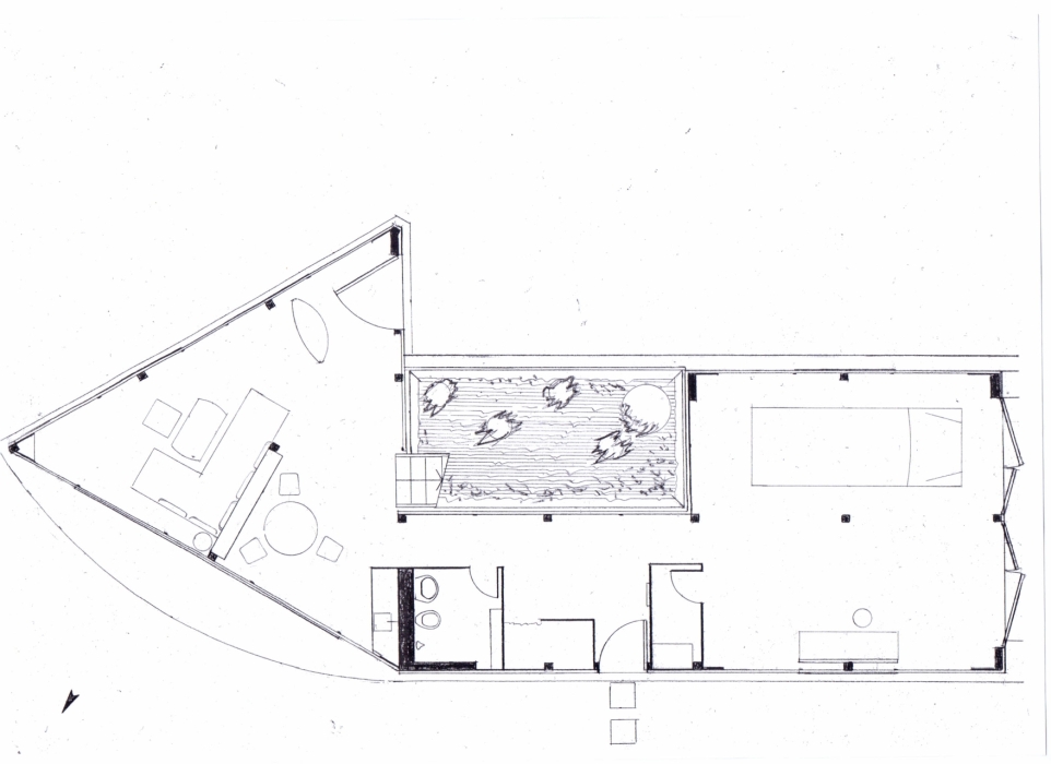
Půdorys je sestavou pravoúhlých a čtvrtkruhových forem. Dispoziční uspořádání ve dvou podlažích reaguje na dané prostředí. V přízemí jsou soustředěny nebytové části dispozice a zimní zahrada propojená s venkovním prostorem pro letní použití. Vzniká tak koncept „letního a zimního bytu“ k zajištění propojení vnitřního a vnějšího prostoru podle sezóny.
Obvodový plášť přízemí je tvořen lehkou fasádou z plastových a textilních výplní proti působení větru. Byt v patře s dřevěnou fasádou je opatřen výkonnou tepelnou izolací zahrnující okna s izolačními trojskly orientovaná do okolní zeleně s využitím efektu „stromového domu“.
Pro vytápění je zvolena kombinovaná sestava topidel (krbová vložka na dřevo, tepelné čerpadlo vzduch-vzduch a přímotopy) reagující na proměnlivé změny vnějších teplot v průběhu roku. Osvětlení je řešeno cestou úsporných LED zdrojů.
K dotvoření prostoru je navržen volný a zabudovaný nábytek ze smrkového masivu tvořený latěmi a lepenými deskami.
Celek, exteriér i interiér se snaží napodobit materiálovou jednotu známou z lidového stavitelství, avšak v moderní podobě.
Souvislost s tvorbou autora
Pro daný úkol byla zvolena klasická rámová konstrukce z dřevěného smrkového masivu. Prvky tesařské konstrukce byly tvarovány s využitím elektronických automatických strojů a sestaveny na staveništi. Touto cestou se mimochodem stávají klasické tesařské rámové konstrukce znovu výhodné pro svou nízkou spotřebu řeziva.
Během stavby byly průběžně aktualizovány detaily fasád, zábradlí, schodišť a interiéru. Tak byla efektivně využita celá doba výstavby, ze které velké množství času představují technologické a kapacitní přestávky.
Půdorys je sestavou pravoúhlých a čtvrtkruhových forem. Dispoziční uspořádání ve dvou podlažích reaguje na dané prostředí. V přízemí jsou soustředěny nebytové části dispozice a zimní zahrada propojená s venkovním prostorem pro letní použití. Vzniká tak koncept „letního a zimního bytu“ k zajištění propojení vnitřního a vnějšího prostoru podle sezóny.
Obvodový plášť přízemí je tvořen lehkou fasádou z plastových a textilních výplní proti působení větru. Byt v patře s dřevěnou fasádou je opatřen výkonnou tepelnou izolací zahrnující okna s izolačními trojskly orientovaná do okolní zeleně s využitím efektu „stromového domu“.
Pro vytápění je zvolena kombinovaná sestava topidel (krbová vložka na dřevo, tepelné čerpadlo vzduch-vzduch a přímotopy) reagující na proměnlivé změny vnějších teplot v průběhu roku. Osvětlení je řešeno cestou úsporných LED zdrojů.
K dotvoření prostoru je navržen volný a zabudovaný nábytek ze smrkového masivu tvořený latěmi a lepenými deskami.
Celek, exteriér i interiér se snaží napodobit materiálovou jednotu známou z lidového stavitelství, avšak v moderní podobě.
Souvislost s tvorbou autora
Spojitost této realizace s autorovou tvorbou od 70. let 20. stol. je dána respektem k širším krajinným a
urbanistickým souvislostem, snahami o sociální a ekologickou přívětivost v
podobě volby běžných případně recyklovatelných materiálů, a vyžíváním soudobých
poznatků v technickém vybavení k zajištění provozní úspornosti udržitelné
civilizace.
Kvalita stavby je ukryta v neotřelosti prostorového řešení, výjimečnosti polohy v daném prostoru a promyšleném technickém řešení včetně detailů realizovaných z dostupných zdrojů.
Kvalita stavby je ukryta v neotřelosti prostorového řešení, výjimečnosti polohy v daném prostoru a promyšleném technickém řešení včetně detailů realizovaných z dostupných zdrojů.
Autorská zpráva, redakčně upraveno
Autor: Doc. Ing. arch. Tomáš Brix
Návrh: 2018-21
Realizace: 2019-21
Zastavěná plocha: 115 m2
Užitná plocha: 182 m2
Návrh: 2018-21
Realizace: 2019-21
Zastavěná plocha: 115 m2
Užitná plocha: 182 m2


















Chybí schody z levého břehu na most, takže s Chuchle přijedeme na Lihovar , musíme přejít Strakonickou a pak teprve…
Dobrý den,žádám o informace o novinkách. J.J.Kubát
V jednoduchosti se skrývá přirozená krása, která svým provedením evokuje využití pro společenská setkávání odborné i laické veřejnosti k obdivování…
Cihla nabízí skvělé izolační vlastnosti a dlouhou životnost bez potřeby zateplení. Nicméně vždy záleží na konkrétním projektu a požadavcích na…
Skvělý článek, který rozebírá výhody a racionalitu jednovrstvého cihelného zdiva. Zajímavý pohled na to, jak materiál může ovlivnit energetickou náročnost…