Dům je situovaný zdánlivě mimo kontext baťovského urbanismu a jeho konstrukční a vizuální kánon. Vnímání Zlína je však v jeho řešení všudypřítomné, definující vzájemným pohledovým a průhledovým kontaktem horizont událostí celého architektonického konceptu. Pozemek je součástí nového urbanistického celku vzniklého adaptací zahrádkářské kolonie, která byla rozdělena na šest poměrně velkorysých stavebních parcel. Lokalita navazuje na čtvrť Lazy v její terminální partii v nejvyšší pozici na svahu pod lesem. Specifickým rysem pozemku je jeho inverzní orientace ke světovým stranám, kdy výhled do údolí je severním směrem, a jižní část je ovlivněna svahem a lesem stoupajícím nad domem. To je ovšem „vykoupeno“ výhledem do celoročně osluněného údolí. V záběru výhledu je široký úsek Zlína s charakteristickými čtvrtěmi domků v zeleni (Lazy, Lesní čtvrt, Podvesná, Zálešná) v panoramatickém rozsahu od areálu Baťovy továrny až po Příluky a hlubokým průhledem údolím v pozadí s Lukovem a Hostýnskými vrchy. Typologicky referenčními stavbami, ze kterých projekt čerpá své pocitové zakotvení, jsou výrazné solitérní vily typu „vila na útesu“ či „rezidence nad městem“. Jde o esenciální archetyp domu těžícího architektonickými prostředky z výjimečnosti svého umístění. V topografických podmínkách Zlína je výhled z domu analogií výhledu středomořských vil nebo losangeleských rezidencí.
Architektonické řešení
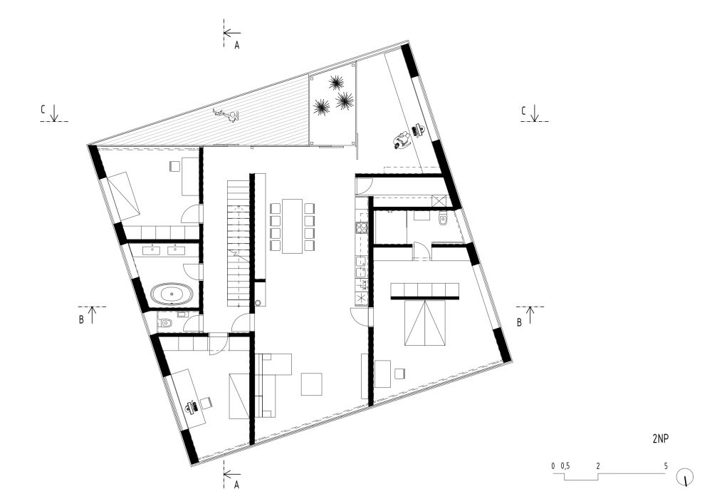
Dům je navržen jako kompaktní solitérní objem na čtvercovém půdorysu s pootočením dispozice uvnitř pláště. Vnějšek osově respektuje vrstevnicovou logiku okolních domů, zatímco vnitřek se přitáčí k městu ve směru hranic pozemku. Kompozice stavby je tvořena do svahu zapuštěným soklem spodního podlaží a na něm nasazeným hranolem hlavního obytného podlaží. Výsledná figura domu tak z jižní strany působí jako jednopodlažní. Soklové podlaží je zapuštěno v terénu a vymezeno vjezdovou stěnou garáží skosenou ve směru kolmo k podélné ose interiéru. Objekt hranolu horního podlaží tak vytváří dynamický vykonzolovaný prvek chránící příjezd do garáží. Motiv skosení dispozice je v patře zopakován. Zatravněná střecha vrací pozemku chybějící plochu zahrady odebranou půdorysem domu, doplněna je celoproskleným střešním ateliérem. Hlavní obytný prostor je koncentrován na ploše horního podlaží a je možné jej prohlédnout napříč ze zahrady k městu skrze centrální společenskou zónu. Rotace dispozice umožňuje rozmístění místností po obvodě tak, že si udržují vlastní intimitu a výhledovou logiku. Koncept domu umožňuje proměňovat dramaturgii užívání s plynulou reakcí na měnící se požadavky během životních etap stavby. Kompozice strukturuje dům na jednotlivé partie tak, že si udržují intimitu se vztahem k zahradě a výhledu. Umožňuje také dosáhnout vícegeneračního uspořádání pomocí dvou oddělitelných hostinských sekcí na vstupním podlaží s možností samostatného přístupu.
Výrazové řešení využívá mimikry maskování letadel. Hlavní obytné podlaží se pohledově propojuje s nebem odhmotněním skrze zrcadlení a moaré fasád a „levituje“ na cortenové podnoži. Zelená střecha s proskleným ateliérem srůstá v pohledu shora s kobercem zahradního města. Strategie vrůstání do svahu a splynutí s charakterem zahrady je použita u řešení sklípku, bazénu s grottou i příjezdové plochy a oplocení. Zahrada dům obtéká a vytváří skryté pobytové zálivy chráněné před pohledy zvnějšku a umožňující výhledy na město. Otevřený koncept zároveň přirozeně dosahuje pobytovou intimitu vegetačním řešením chránícím boční hranice pozemku.
Dispozice
Přístup do domu je veden z ulice skrze vstupní podlaží s garáží, které umožňuje oddělený vstup do hlavního obytného podlaží a hostinského bytu. Hlavní obytné podlaží je přístupné jednoramenným schodištěm otvírajícím průhled do zahrady. Dispoziční uspořádání minimalizuje použití komunikačních koridorů ve prospěch plynulého obytného prostoru. Zónování na klidové a společenské části je vedeno od středu dispozice k okraji. Principem byla maximální dosažitelnost klidových partií z centrální společenské zóny za současného oddělení částí určených dětem a rodičům. Společenskou zónu tvoří prostor sdružené kuchyně, jídelny a obývacího pokoje, který prochází napříč celou dispozicí. Kolem této centrální části jsou rozmístěny ostatní obytné místnosti situované do rohových pozic po obvodu tak, aby těžily buďto z výhledu na město nebo z kontaktu se zahradou. Dům je vizuálně prostupný (zevnitř ven) skrze severní a jižní fasádu. Východní a západní fasáda chrání soukromí v kontaktu se sousedy – propouští pohled ven a slunce dovnitř skrze pásová okna krytá nerezovou membránou a žaluziemi.
Rodičovskou zónu tvoří ložnice navázaná „tajnými“ dveřmi skrze šatnu na vlastní koupelnu, dětskou zónu pak dva pokoje, které mezi sebou svírají koupelnu a WC. Dispozici podlaží doplňuje prosklená pracovna propojená s obývací zónou a terasou skrze prosklenou zimní zahradu a spíž navázaná na vestavěné skříně kuchyně.
Spodní podlaží je koncentrováno kolem garáže uprostřed půdorysu, po stranách garáže jsou oba vstupy. Západní partie obsahuje hostinský byt pro prarodiče, návštěvy nebo dospívající děti. Byt je skrze terasu navázán na západní a severní část zahrady oddělující jeho soukromí od jižní pobytové zahrady hlavního podlaží. Hlavní vstup do domu je napojen na šatnu, kterou je možno změnit na další hostinský pokoj.
Konstrukce a materiály
Nosná konstrukce slouží jako kostra stavby, izolace jako svalstvo, vytápění jako krevní oběh, vzduchotechnika jako plíce a průdušnice, rozvody vody a kanalizace jako trávící ústrojí, elektroinstalace jako nervový systém a povrchové vrstvy jako kůže, chránící tělo a umožňující jeho povrchu dýchat.
Železobetonový monolit je kontaktně izolovaný výkonnou tepelnou izolací ve vrstvě odpovídající nízkoenergetickým až pasivním stavbám, pohledově obložený v exteriéru i interiéru tak, aby materiály podporovaly kompoziční skladbu domu. Hmota hlavního obytného podlaží má strukturálně prosklenou severní a jižní fasádu s velkoplošným pokoveným trojsklem. Fasády orientované k sousedům tvoří nerezová tkanina překrývající okna. Její hedvábně lesklý povrch doplňuje odraz skel a vytváří těkavé moaré, které splývá v pohledu od příjezdu s oblohou. Spodní podlaží je včetně vrat garáže obloženo cortenem s výraznou rezavou barevností, který propojuje dům se zahradou a materiálově s vjezdovou bránou a zahradními prvky.
Barevné a materiálové řešení pracuje i se sémantickým vymezením vně a uvnitř. Kovový exteriér kontrastuje s interiérem tvořeným velkoplošnými dýhovanými obklady, vestavěným nábytkem a masivními podlahami. Dominantním materiálem stěn, dveří a vestavěného nábytku jsou dýhy z jilmu v kombinaci s masivní irokovou podlahou. Výsledným dojmem je volné plynutí prostoru.
Práce s detailem byla podřízena měřítku domu. Potlačuje tektoniku jednotlivých prvků ve prospěch pocitu plynutí interiérové kůže. Logika dýhování sleduje celistvost a plošnou podstatu povrchů stěn. Listy dýh jsou kladeny tak, aby nedocházelo k čitelnému opakování a navazují mezi prvky a plochami zlomů. Směr podlahových a terasových prken sleduje plášť domu a jemně upozorňuje na napětí mezi oběma pravoúhlými systémy – exteriérovým a interiérovým.
Atmosféra interiéru pracuje s dramaturgií své proměnlivosti tvořené napětím mezi světelností přirozenou a modulovanou a její proměnlivostí v čase. Umělé osvětlení je řešeno jako integrální (a přitom stále autonomní) vrstva postavená na kombinaci přímého a nepřímého světla. Kombinovali jsme odražené „iridescentní“ světlo rozptýlené čočkami s dvoubarevnými rozptylovými filtry skrze plochu stropu a přímé svícení nebarevným světlem. Řešení stropů využívá jemný retroreflexivní vliv perleťového nástřiku v odstínech přecházejících gradientem od středu k okraji dispozice do jednotlivých zálivů interiéru. Možností je několikavrstvé postupné oddělení „scény“ interiéru od vnějšího vlivu pomocí záclon, závěsů a screenů, materiálově vycházejících z navazujících charakterů stěn s různou světelnou propustností od jemné translucence až k úplnému zatemnění.
Zahrada a vnější součásti domu
První vrstvou vsazující dům do jeho kontextu je zahrada. Navržena byla jako plynulý koberec rozvíjející původní spádování pozemku několika pobytovými epicentry. Dominantou nejvyšší části pozemku je kompozice grotty s bazénem vytvářející pobytové zázemí krytého exteriéru s výhledem na město. Výškové umístění bazénu je posazeno tak, že hladina bazénu leží nad „hladinou“ střechy domu, kterou je možné při plavání přehlédnout a vnímat ji jako propojenou se zahradním městem v údolí.
Křivková forma grotty je skládaná z postupně natočených modřínových fošen spřažených jako přiznané bednění pro skrytou železobetonovou skořepinu zapuštěnou v terénní modelaci. Nerezový bazén používá hranový přepad se žlabem kopírujícím svah navazujícího terénu a vytvářející nekonečný efekt hladiny. Roleta chránící teplotu vody v době, kdy bazén není využíván, je skrytá pod lavicí z nerezových tyčí ponořené v bazénu.
Sklípek je adaptací původního cihelného klenutého sklípku, reliktu zahrádkářské kolonie. Vybaven je ocelovou voskovanou vestavbou tvořící regály na láhve. Střechu sklípku tvoří irský mech prorůstající břidlicové štěty.
Zahrada je definována volně plynoucím propojením trávníku a louky. Intimitu vůči sousedům udržují výsadby bambusů a travin navazující na zvlněný terén. Kompozičně je doplňuje několik dřevin vybraných s důrazem na jejich pestrý projev během ročního cyklu.
Technologické řešení
Stavba dosahuje parametrů přibližující se pasivnímu standardu. Spolu s odkazem k místopisnému názvu lokality se to stalo zdrojem jeho pojmenování Lazyhouse. Celý dům má řízenou ventilaci s rekuperací kombinovanou s podlahovým vytápěním napojeným na tepelné čerpadlo se dvěma zemními vrty. Umístěné jsou pod základovou deskou. Letní reverzní chod čerpadla slouží k chlazení interiérů. Vytápění a chlazení je nízkoteplotní a neznatelné při doteku na povrchu podlah. Kombinované rozvedení s vlastní regulací vytápí stěny v koupelnách před ručníkovými madly a ocelové sloupky v zimní zahradě.
Vnější nádech vzduchotechniky je vyveden pomocí zemního registru do prostoru v sousedství sklípku, což díky vedení v nezámrzné hloubce umožňuje teplotní úpravu vzduchu již před vlastní rekuperací. Rozvody ventilace jsou ze strojovny vedeny pod stropem garáže a v konstrukcích podlah k vyústění výdechů do plenumboxů s distribucí neznatelnými štěrbinami v linii doběhu podlah k velkoplošnému zasklení. Zpětná cirkulace probíhá skrze nasávání ve stropech koupelen a štěrbinami mezi stropem a obkladem.
Střešní ateliér je možno vzhledem k jeho prosklení stínit pomocí screenových rolet a lokálně dochladit jednotkou skrytou ve schodu na terasu.
Bazénová technologie s filtrací je umístěna uvnitř domu; využívá samospádný sběr vody z bazénových žlabů a její zpětné přečerpání.
Zahrada je zavlažována rozvedením spádové podpovrchové vody a z vrtané studny a rezervoáru skrytého v prostoru nad grottou.
Aktivní bleskosvod je umístěn v horním cípu zahrady za grottou.
Autorská zpráva
Foto: BoysPlayNice
Stavební konstrukce: AREA ZLÍN s.r.o.
Zasklení: AZ Glass s.r.o.
Interiér: EFF spol. s r.o.
Podlahy: Ing. Rajmund Coufal CSc.
Obklady mozaikou: Los Kachlos s.r.o.
Vytápění a vzduchotechnika: Active Elements s.r.o.
Osvětlení: ATEH spol. s r.o.
Grotta: Truhlářství Obdržálek
Sklípek: Jiří Stelšovský
Spolupráce na krajinářské architektuře: Jitka Tomsová; realizace zahrady GARD&N
Zastavěná plocha: 225 m²
Hrubá podlahová plocha: 400 m²
Užitná plocha: 345 m²
Plocha pozemku: 1400 m²
Lazy House byl publikován v časopise Stavba č. 3/2021 včetně recenze od Petra Šmídka a Jiřího Vítka.






































































Krása a nádhera!