Terénní profil pozemku se svažuje souběžně s ulicí a také
jihozápadně od ní – to autorům projektu umožnilo vymezit zásobovací a
manipulační prostor do zadní části stavby, kde má terén nejnižší úroveň, a
napojit jej tak na skladovací prostory v podzemním podlaží.
Objem budovy tvoří dvě hmoty: přízemí je rovnoběžné s rušnou městskou ulicí a
napomáhá tak tvořit uliční čáru, která byla v této lokalitě narušená. Další
stavby na jih mají orientaci různoběžnou, proto se vyšší hmota lékárny zalamuje
do tupého úhlu a přiklání se, avšak ne úplně, k těmto domům.
Přízemní objem stavby slouží pro provoz veřejné části lékárny, orientovaný je
do ulice. Jeho prosklené průčelí kopíruje sklon terénu a provází tak
kolemjdoucí podél objektu. „Architektonický záměr, aby nižší hmota v celé délce
kopírovala spád ulice, navozuje dojem, že prosklení vyrůstá ze zeleně. Atika
také kopíruje zmíněný sklon. To si vyžádalo netradiční řešení v interiéru
výdejny léčiv, jejíž podlaha je tak s chodníkem různoběžná. Tam, kde je podlaha
níže než terén, vznikl v interiéru pod prosklenou fasádou šikmý parapet, na
opačné straně se pak stropní deska i s podlahou netradičně zalamuje a padá k
patě skel, aby navazovala na terén vně v nižší úrovni,“ říká architekt Miroslav
Pospíšil a dodává: „Fasádu jsme řešili jako kontaktně zateplený plášť s
grafikou rostlinných motivů odkazujících na původ léčiv v bylinách. Tato
grafika vznikla díky dvouvrstvé omítce, což je v podstatě novější verze
kontrasgrafita.“ Plné boční plochy nižší hmoty budovy jsou pohledové
monolitické železobetonové stěny ze strany exteriéru i interiéru, mezi které
byla vložena tepelná izolace. Plné plochy fasády propichují okenní otvory pouze
v místech, kde je to z hlediska provozu nutné. Okna svým kruhovým nebo oválným
tvarem fasádu oživují – jejich tvary symbolizují tablety nebo ampule.
Fasády čtyřpodlažní části objektu tedy mají finální stěrku v tmavé barvě, která
byla nanesena na světlý podklad s nálepkami, jež nesly grafiku s motivy bylin.
Nálepky se po nanesení svrchního nátěru slepily a vznikla tak dvoubarevná
fasáda. Tmavá barva byla zvolena i proto, aby odrážela velkou část sluneční
energie v rozsahu blízkém infračervenému záření, čím dochází ke snížení
povrchové teploty fasády. Minerální izolace v kontaktním zateplovacím systému
má tloušťku 200 mm, v soklové části je použit certifikovaný kontaktní
zateplovací systém s perimetrickým polystyrenem tl. 200 mm pro soklovou část.
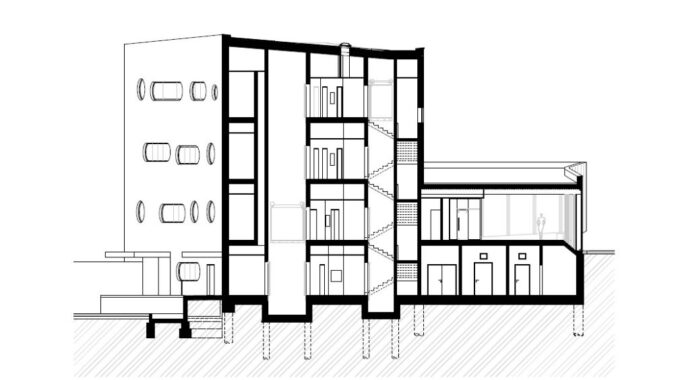
Dispozice
Ve vyšší budově je těžiště provozu: laboratoře, specializovaná pracoviště
sterilní přípravy a oddělení ředění cytostatik. V suterénu je centrální sklad
léčiv. V návaznosti na tyto prostory je umístěn archiv, sklady a místnosti pro
domovní techniku. Personál vstupuje do objektu ze severovýchodní strany, nalevo
od tohoto vstupu je oddělení diagnostiky.
Prostor výdejny léčiv a zdravotních pomůcek má dostatečně dimenzované zázemí,
kde jsou příruční sklady, pracovny a sociální zařízení. V menší hmotě jsou za
výdejnou léčiv pracovny vedení lékárny s vlastním vstupem. V severovýchodní
části půdorysu sídlí laboratoře galeniky, kde se připravují roztoky a masti, je
zde také výroba tablet.
Ve druhém podlaží se nachází oddělení ředění cytostatik s mimořádně čistým
provozem (do jednotlivých prostor se vstupuje přes hygienické filtry a samotná
práce probíhá v izolátorech). Na opačné straně patra jsou oddělení kontroly,
pracoviště klinických studií a administrativně-provozní pracovny. Třetí podlaží
je rozděleno na část laboratorní s oddělením sterilní přípravy a část
technickou pro domovní techniku. Obě tato oddělení tvoří technologické srdce
nové lékárny fakultní nemocnice. Chladicí jednotky byly umístěny na vloženém
nezastřešeném dvorku v prostoru strojovny vzduchotechniky, aby se skryly za
fasádou domu a nevyčnívaly ani na střeše. Ve středu dispozice je knihovna
plnící také funkci zasedací místnosti. Přes chodbu je místnost pro výrobu
čištěné vody a serverovna.
-red-
Místo: ulice I. P. Pavlova, Olomouc
Investor: Fakultní nemocnice Olomouc
Autor: ateliér-r – Miroslav Pospíšil, spolupráce Daria Johanesová, Martin
Karlík, Robert Randys, Lucie Rohelová, Milena Koblihová
Zastavěná plocha: 1270 m2
Užitná plocha 3210 m2


























Akustika je často podceňovaný, ale zásadní aspekt kvality bydlení... Článek dobře ukazuje, že nejde jen o samotný materiál, ale hlavně…
Oceňuji hlavně důraz na kvalitu provedení, nestačí jen dobrý materiál, ale i správná realizace. V praxi právě detaily často rozhodují…
Skvělý článek o akustické kvalitě staveb, která je často opomíjená, ale velmi důležitá. Systémy Heluz nabízejí dobrá řešení pro zvukovou…
Zajímavé téma, díky za sdílení. Tyhle novinky z praxe mají vždycky největší přínos 👍
Zajímavý webinář zaměřený na novinky od společnosti Heluz. Oceňuji hlavně představení cihel Heluz AKU a jejich výsledků v oblasti zvukové…