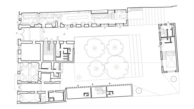
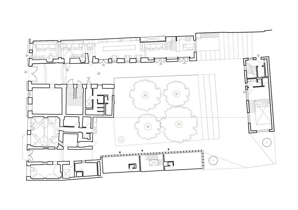
Dispozice stavby je vertikálně členěná na pronajímatelné prostory, kanceláře a podkrovní apartmán.
Autorská zpráva
Foto: BoysPlayNice
Autor: Vallo Sadovsky Architects – Matúš Vallo,
Oliver Sadovský, Marián Stanislav, Viliam Zajíček, Zuzana Krejčířová, Elena
Šoltésová, Jakub Španiel
Plocha pozemku: 1 557,1 m2
Zastavěná plocha: 104,7 m2
Celková podlažní plocha: 331,4 m2
Plocha pozemku: 1 557,1 m2
Zastavěná plocha: 104,7 m2
Celková podlažní plocha: 331,4 m2


















































Architektura musí souviset s místem, nikoli místo s architekturou. Proto jakékoli stavby umožňující realizaci na různých místech nejsou ARCHITEKTUROU.
Z mého pohledu je fajn vidět, jak se i u tak „běžné“ věci, jako jsou překlady, řeší systémovost a přesnost!
Praktické řešení, hlavně z pohledu rychlosti výstavby a přesnosti👍 U těchto systémových prvků dává smysl, že zjednodušují realizaci a pomáhají…
Zajímavý posun ve stavebnictví, je vidět, že se dnes klade velký důraz hlavně na rychlost výstavby a přesnost provedení. Systémové…
Jako problém vidím hlavně "lavičky" v prostoru sdíleném s cyklisty. Neměly by mít třeba tyče s praporky, jako dětské nákupní…