Architektonické řešení vycházelo ze stávajícího stavu budovy
Ministerstva dopravy a prostor určených ke stavebním úpravám. Samotná budova vykazuje
vysoké architektonické kvality, jedná se o dílo architekta Antonína Engela a je
to nemovitá kulturní památka. Stavební úpravy probíhaly výhradně uvnitř objektu
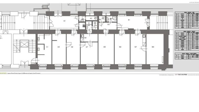
a nezasáhly do jeho vnějšího vzhledu. Řešené prostory se nacházejí v 1. PP,
které je vzhledem ke svažitosti terénu v celém rozsahu nadzemním podlažím a
také v bočním, západním křídle. Křídlo je dvojtrakt, kde užší chodbová část je
orientována do dvora a širší s pobytovými místnostmi je orientována do ulice. V
minulosti se tyto prostory využívaly jako ordinace praktického lékaře a denní
místnosti pro řidiče. Z tohoto důvodu zde došlo k dobudování drobných místností
pro sociální zařízení a kuchyňky, především v užším traktu křídla.
Návrh stavebních úprav pro dětskou skupinu zachovává a
využívá dvojtrakt. Všechny dodatečně
vybudované příčky včetně podhledů, starých zařizovacích předmětů byly
odstraněny, aby došlo k vyčištění dispozice. Odstraněna byla také většina
příček v širším traktu mezi pobytovými místnostmi. V užším traktu jsou umístěny
opět prostory zázemí (koupelna, wc, kancelář, výdejna jídel), v hlavním traktu
pobytová místnost dětí (herna/jídelna/ložnice) jako jeden velký prostor a
oddělená vstupní šatna.
Původní stavební prvky i řemeslné výrobky interiéru (dveře, zárubně, okna,
radiátory) byly v maximální míře opraveny. Zachovali jsme také barevnost
původních prvků, ale barevnost nových částí je pestrá, odpovídá novému programu
– mateřské školce. Nově vzniklé prostory jsou vybaveny novým mobiliářem: dětský
dřevěný nábytek, herní prvky, úložné prvky pro hračky, výtvarné a sportovní
potřeby, lůžkoviny.
Pro hlavní vstup slouží stávající boční dveře z ulice Lodní mlýny (boční vstup
do budovy), na které přímo navazují dveře do šatny dětské skupiny. Ze šatny je
přímý přístup do hlavní místnosti – herny/jídelny/ložnice, zároveň i do dětské
koupelny. Na hlavní místnost navazuje zázemí: koupelny, kancelář a výdejna
jídel. U výdejny jídel je zachován vedlejší vstup z průjezdu, který slouží pro
zásobování. Další stávající vedlejší vstup u koupelny byl zaslepen (se
zachováním původních dveří), prostor před ním je upraven jako denní úschovna
kočárků.
Autorská zpráva
Foto:Tomáš Rasl
Místo: Mateřská škola v objektu Ministerstva dopravy,
Nábřeží Ludvíka Svobody 1222/12, Praha 1
Autoři: HOFMAN ARCHITEKTI s.r.o. – Ing. arch. Robert Hofman, Ing. arch. Eva
Melicharová, Ing. arch. Lenka Prokopová
Užitný prostor: 200 m2



















Architektura musí souviset s místem, nikoli místo s architekturou. Proto jakékoli stavby umožňující realizaci na různých místech nejsou ARCHITEKTUROU.
Z mého pohledu je fajn vidět, jak se i u tak „běžné“ věci, jako jsou překlady, řeší systémovost a přesnost!
Praktické řešení, hlavně z pohledu rychlosti výstavby a přesnosti👍 U těchto systémových prvků dává smysl, že zjednodušují realizaci a pomáhají…
Zajímavý posun ve stavebnictví, je vidět, že se dnes klade velký důraz hlavně na rychlost výstavby a přesnost provedení. Systémové…
Jako problém vidím hlavně "lavičky" v prostoru sdíleném s cyklisty. Neměly by mít třeba tyče s praporky, jako dětské nákupní…