Na palubě, v podpalubí.
Severní svah s výhledem na vesnici
s věží kostela. Původně podlouhlý
pozemek se záhumenní cestou na jižní straně, hranice mezi kulturou a
naturou.
Namísto výměnku pro rodiče, vznikla
v zadní části u záhumenní cesty novostavba rodinného domu pro děti. Dům má
dva vstupy. V patře ze záhumenní cesty a v přízemí ze zahrady od
rodičů. Je navlečeným korálkem na niti pradávného pohybu mezi životem v obci a
práci na poli.
Samostatně stojící dvojgaráž spolu
s domem člení pozemek na část poloveřejnou – terasa s jižním výhledem
do krajiny a na část soukromou – zahrada
přimykající se k identitě vesnice.
Morfologie terénu, světové strany a
výhledy daly vzniknout konceptu paluby – společenského patra s bazénem, levitujícího
na podnoži ložnicové části podpalubí.
Uspořádání paluby umožňuje volný
pohyb, prolínání interiéru s exteriérem a výhledy všemi směry. Volně plynoucí prostor, který se dá členit
posuvnými stěnami.
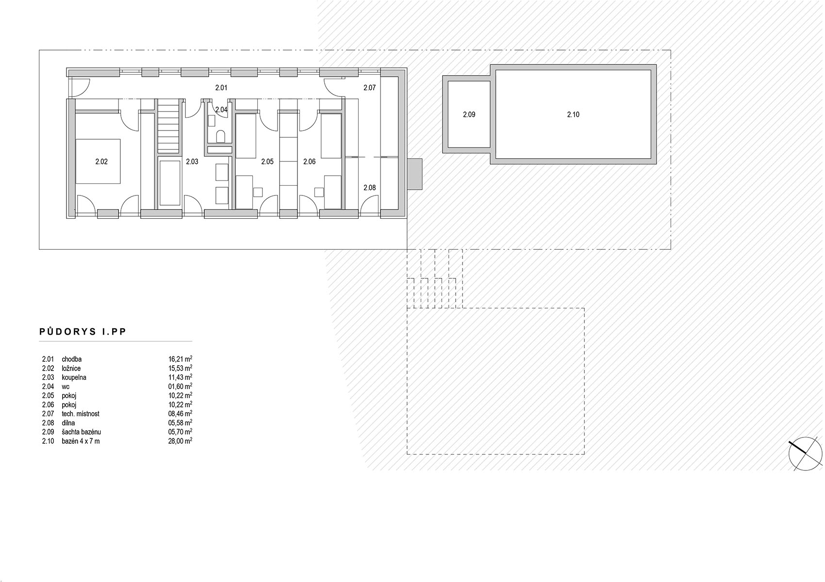
Kajuty pod hladinou ponoru, doslovně
i v přeneseném slova smyslu intimity, jsou přes anglický dvorek orientovány do
soukromé části zahrady.
Svislé nosné konstrukce jsou
z keramických tvarovek. Stropy jsou železobetonové monolitické. Dům je
vytápěný tepelným čerpadlem vzduch – voda. Kromě možnosti přirozeného větrání zajišťuje
výměnu vzduchu rekuperace.
AUTORSKÁ ZPRÁVA
RD Hrabyně
II.
Lokace: Hrabyně, Moravskoslezský kraj
Investor: Soukromá osoba
Autor: Tomáš Bindr, Pavlína
Harazimová / Atelier38 s. r. o.
HIP: Michal Výtisk, Atelier38
s.r.o.
Projekt: 2009 -2010
Realizace: 2012 – doposud
Fotografie: Roman Polášek




























Zajímavý posun ve stavebnictví, je vidět, že se dnes klade velký důraz hlavně na rychlost výstavby a přesnost provedení. Systémové…
Jako problém vidím hlavně "lavičky" v prostoru sdíleném s cyklisty. Neměly by mít třeba tyče s praporky, jako dětské nákupní…
Zdravím, děkuji za informaci o výstavbě v areálu i zmínku o vile, žel chybí aspoň informace, zda vila stojí a…
Článek působí docela věcně a snaží se jít víc po principu než jen po marketingu, což je za mě plus…
Chybí schody z levého břehu na most, takže s Chuchle přijedeme na Lihovar , musíme přejít Strakonickou a pak teprve…