Na třetí fázi projektu Smíchov City, v jehož rámci jsou postupně doplňovány volné parcely v lokalitě podél ulice Nádražní, spolupracovala čtyři renomovaná architektonická studia – edit!, A69, Chapman Taylor a LZ Architekti. Autorům se podařilo navrhnout moderní městský blok, jenž čerpá inspiraci z tradiční blokové zástavby 19. století, jakou lze vidět například na Žižkově nebo Vinohradech.

Návrhy domů jsou vypracovány do nejmenších detailů, včetně designu truhlíků, značení nebo přípravy na instalaci vířivek, přičemž každý element budov je pečlivě zpracován tak, aby výsledný celek fungoval harmonicky. Domy zároveň splňují přísné energetické normy.
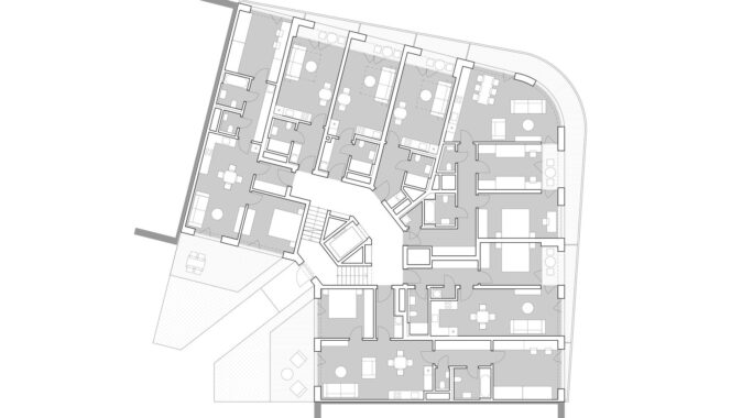
Ačkoliv blok na první pohled působí jako soustava samostatných budov, technicky jde o jeden rozsáhlý objekt se společným zázemím a parkováním, do kterého je možný vjezd z několika různých míst v rámci bloku. Důležitou součástí celkového řešení je zpřístupnění pobytového vnitrobloku pro všechny residenty. Projekt je ukázkou současných trendů v městském bydlení, reaguje na potřebu kvalitních bytů v centru města a zároveň využívá proluk a volných parcel.

Haus Rot
Rohový Haus Rot má zaoblené tvary, které domu dodávají na otevřeném a přívětivém charakteru. Ak-centované horizontální linie zvýrazňují dynamiku stavby a nároží tak působí měkčeji. Specifickou barvu dodávají budově ručně vyráběné keramické obkladové pásky s barevným střepem, které vznikají na míru ve spolupráci s kadaňskou cihelnou.
Lodžie směřující do ulice jsou umístěny ve druhém plánu, čímž zvyšují pocit soukromí a mimo jiné slouží jako přirozená ochrana před hlukem přicházejícím z pulzující Nádražní ulice. Nad přízemím je umístěn spojitý balkon, který rozšiřuje venkovní prostory bytů v prvním patře – piano nobile a zároveň tvoří římsu, která podtrhuje horizontální členění budovy

V posledním ustupujícím patře se nachází dva prémiové byty s částečně stíněnými velkými terasami a výhledy na Vyšehrad a Pražský hrad. Zajímavým prvkem je schodišťové jádro, které svou geometrií absorbuje tupý úhel nároží a navazuje na obdobná řešení u nárožních činžovních domů z přelomu 19. a 20. století.
Autorská zpráva
Autoři edit! / Ivan Boroš, Juraj Calaj, Vítězslav Danda, Jakub Vysoký
Místo Praha-Smíchov
Rok projektu 2024
Rok dokončení 2026
Klient Sekyra Group a.s.
Fotografie / Vizualizace DOUSEK-ZÁBORSKÝ, edit!
Bytový dům Iconic od studia edit!
Smíchov city první fáze




























Akustika je často podceňovaný, ale zásadní aspekt kvality bydlení... Článek dobře ukazuje, že nejde jen o samotný materiál, ale hlavně…
Oceňuji hlavně důraz na kvalitu provedení, nestačí jen dobrý materiál, ale i správná realizace. V praxi právě detaily často rozhodují…
Skvělý článek o akustické kvalitě staveb, která je často opomíjená, ale velmi důležitá. Systémy Heluz nabízejí dobrá řešení pro zvukovou…
Zajímavé téma, díky za sdílení. Tyhle novinky z praxe mají vždycky největší přínos 👍
Zajímavý webinář zaměřený na novinky od společnosti Heluz. Oceňuji hlavně představení cihel Heluz AKU a jejich výsledků v oblasti zvukové…