Silo je součástí oživených mlýnů. Prokš Přikryl architekti jej adaptovali pro potřeby Nadace Automatické mlýny. Hlavní náplní je společenská funkce, která po sto letech nahradila funkci průmyslovou. Areál tvoří dohromady více budov a institucí, které jsou propojeny cihelným kobercem a nepochybně i zvláštním napětím mezi sebou.
Vyšlo v časopise Stavba 2/2024 s recenzí Rostislava Šváchy.

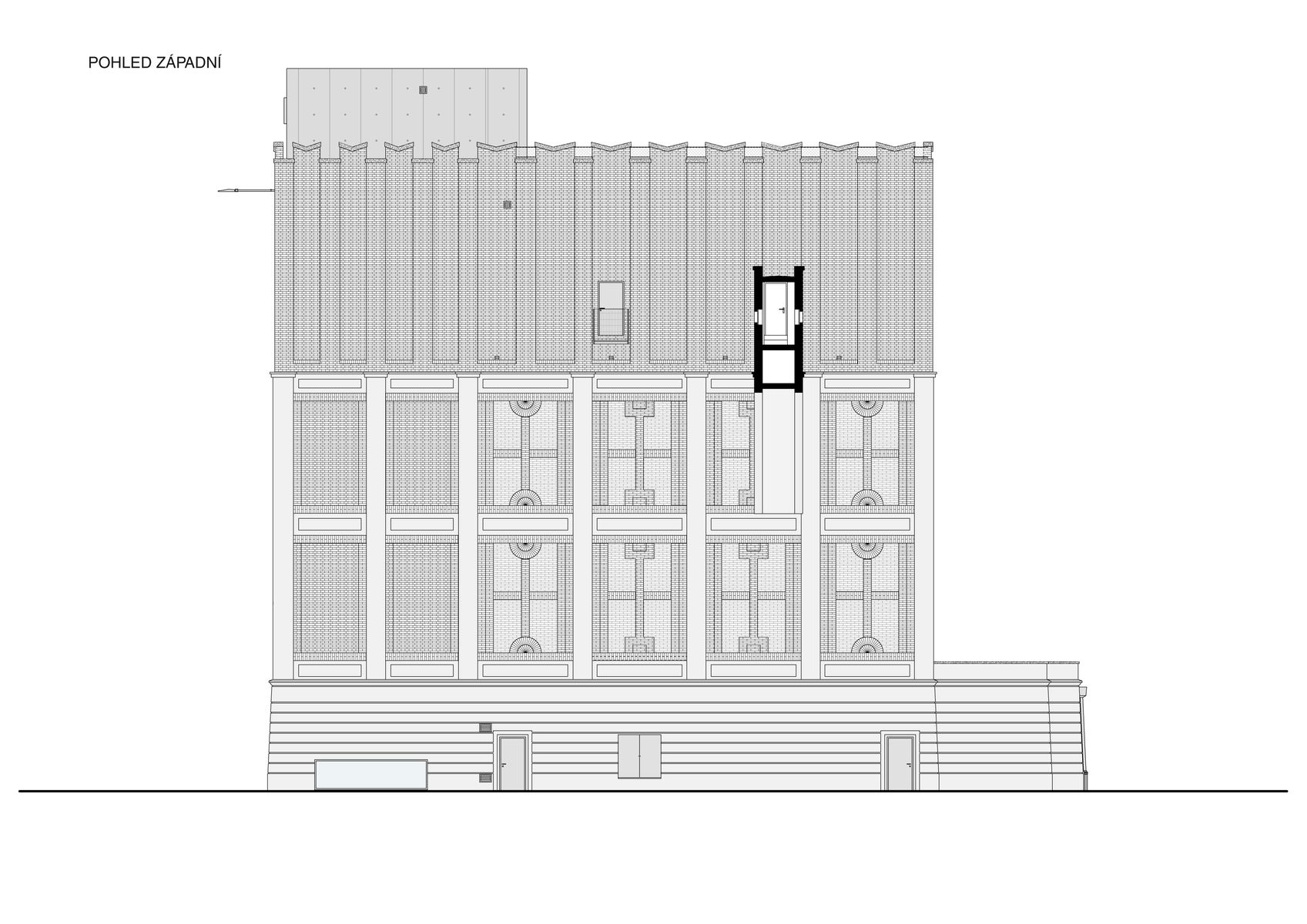
Silo, tento dům-stroj měl tři základní části: mlynářskou technologii (firma Prokop a synové), skeletovou konstrukci (dílo stavitele Pollerta) a vnější plášť (architekt Gočár). Díky Josefu Gočárovi nejsou mlýny od počátku vnímány čistě jako průmyslová stavba. Mají v sobě tajuplnost stroje ukrytého v pevnosti. Ani obilné silo, přistavěné k mlýnici v roce 1924, není jednoznačně uchopitelné.

Úvahy o hlavním vstupu vedly k rozhodnutí odtajnit, aktivovat parter z obou bočních stran a vytvořit pod zásobníky volně přístupný veřejný prostor. Myšlenka otevření budovy do náměstí šla ruku v ruce s otevřením areálu městu po více než sto letech. Otevřeli jsme velkým otvorem i cihelný sokl, který byl doposud uzavřený. Odkryté zásobníky obilí daly krytému prostoru atmosféru. Ze strany mezi mlýny a silem je parter propojen v místech původních dveří. Z druhé strany je sokl naopak široce prolomen novým otvorem.

Stejně jako v minulosti silo dnes propojuje jedno komunikační jádro. Hlavní změnou je vložení sálu do bývalého technologického prostoru v šestém podlaží. Zde má výsostnou polohu nad celým areálem. Společně se sálem je bezbariérově zpřístupněna i střecha objektu.

Pro silo a jeho technologii je typická vertikalita, vertikální pohyb. Sklobetonové podlahy v parteru a sálu vytvářejí pro světlo vertikální dráhu přes všechna podlaží až do suterénu. Suterén byl vyhlouben mezi masivními sloupy a slouží jako zázemí. Nově je zpřístupněn i vnitřek zásobníků na obilí v úrovni druhého podlaží. Zde je vidět samotná podstata sila.

Úpravy interiéru jsou civilní, barvy a cihly jsou přenechány fasádám, vnitřek je tlumený, rejstřík materiálů standardní a jde cestou nekontrastního doplňování starého. Původní povrchy jsou ponechány včetně patiny, různých odvrtů a šrámů po vybouraných příčkách. Snahou bylo rozvinout dům v jeho racionalitě i monumentalitě.
Autorská zpráva
Místo stavby Automatické mlýny čp. 1963, Pardubice
Autoři Martin Prokš, Marek Přikryl / Prokš Přikryl architekti
Spolupráce Jan Kolář
Profese: MDS PROJEKT / betonové konstrukce, STA-NOC / ocelové konstrukce, PROJEKTY PO / požárně bezpečnostní řešení, MK Profi / zdravotechnika, MIKROKLIMA / větrání, Jiří Vik / vytápění, Miroslav Bouček / elektroinstalace, SONING / akustika a A/V média, Ladislav Tikovský / osvětlení, GEROTOP / Geotermální vrty, TECONT / měření a regulace
Investor Nadace Automatické mlýny / Lukáš Smetana, Mariana Smetanová
Náklady 85 mil. Kč
Zastavěná plocha 357 m2
Užitná plocha 1131 m2
Plocha pozemku 4030 m2
Obestavěný prostor 7600 m3
Projekt 2018–2020
Realizace 2021–2023
Foto Petr Polák

Slovo investora
Lukáš Smetana
Nápad, že bych měl spolu s manželkou koupit areál Automatických mlýnů, se zrodil v hlavě protagonisty pardubického studia Zette a mého kamaráda, architekta Zdeňka Balíka. Oslovil mě s návrhem, zda bychom nechtěli Automatickým mlýnům vdechnout nový život podle vlastních představ. Bylo to pro mě velkou výzvou, ale zároveň obrovskou příležitostí.

Automatické mlýny jsou impozantní cihlová stavba, kterou v roce 1910 navrhl architekt Josef Gočár pro bratry Egona a Karla Winternitzovy. Mouka se tu mlela až do roku 2013 pod firmou GoodMills. Na prodávanou nemovitost jsem se přijel podívat vlakem, a protože jsem na obhlídku dorazil i s manželkou a dítětem v kočárku, nikdo ze zájemců o koupi mě nebral příliš vážně. Přesto jsme v roce 2016 koupili Automatické mlýny za téměř 21 milionů korun. S manželkou jsme totiž pochopili, že tato stará, ale vznešená stavba má potenciál stát se centrem kultury, vzdělání a života v Pardubicích. Neměli jsme vizi, že všechno vybouráme, ale že to zachráníme a ponecháme v původním stavu. Abychom toho však dosáhli, potřebovali jsme podporu a spolupráci. Proto jsme oslovili místní radnici a hejtmanství Pardubického kraje. V západní Evropě už je tento přístup standardní, my jsme na místní poměry dokázali spojit nespojitelné – město, kraj, nadaci – a jít společně k cíli.

Financování tak rozsáhlého projektu bylo samozřejmě výzvou, ale díky především evropským dotacím jsme byli schopni zrealizovat naše sny. Celá výstavba i rekonstrukce za 905 milionů korun proběhla hladce, včetně spolupráce s památkáři. A ač to na první pohled návštěvník ani nepostřehne, na každém objektu pracoval jiný architekt – Petr Všetečka na obnově původních mlýnů, Prokš & Přikryl na silu, Jan Šépka na nové budově a veřejném prostranství. Všichni přitom zachovali ducha místa, dali vyniknout červené cihle a výhledům na okolní krajinu. Automatické mlýny dnes pojímají Gočárovu galerii a městskou galerii Gampa, vzdělávací centrum Sféra, polytechnické dílny, multifunkční sál, turistické informační centrum a kavárnu.

Jsem hrdý na to, že jsme dokázali zachovat krásu starých mlýnů a zároveň vytvořit místo, které ožívá novým životem. Věřím, že naše společná snaha přinesla do Pardubic něco jedinečného, co přitahuje nejen turisty, ale i místní obyvatele. Nicméně mluvíme-li o finanční soběstačnosti areálu, musíme být realističtí. Ano, mlýny dnes slouží jako kulturní a vzdělávací centrum a už dnes v sile zajišťujeme firemní konference či svatby, ale abychom dosáhli plného potenciálu, potřebujeme rozšířit nabídku o další služby, jako jsou restaurace, pekárny, pracovní místa s kancelářemi, ordinace doktorů a bydlení. Pokud půjde vše hladce, na jaře se začne znovu stavět. Až tohle všechno bude hotové, teprve potom budou Automatické mlýny fungovat tak, jak jsme si to spolu s architekty představovali.












































































Dali jste Pardubičákům něco, díky čemu moou být na své město hrdí.
Skvělá konverze! Bravo!
Děkuji
S pozdravem
Ing. arch. Karel Doubner
tel. (+420) 603 433 611
Skvělá konverze! Bravo!
Děkuji
S pozdravem
Ing. arch. Karel Doubner
tel. (+420) 603 433 611
Zbraslavská 35/7
CZ-159 00 Praha 5 Malá Chuchle
Autorizace v ČKA 00078
DOUBNER spol. s r. o.
IČ 62909231
ID datové schránky 64v2537
https://www.facebook.com/architekt.doubner;
http://www.doubner.cz;