Cílem projektu dokončeného v roce 2022 od studia Architekti BKPŠ byla obnova původního architektonického souboru a jeho doplnění o nové prostory pro potřeby Slovenské národní galerie v 21. století. Kromě naplnění prostorových požadavků programu bylo zásadním záměrem výrazné otevření areálu směrem k městu a tedy veřejnosti. Areál má být místem aktivit, které přesahují jeho galerijní funkci.

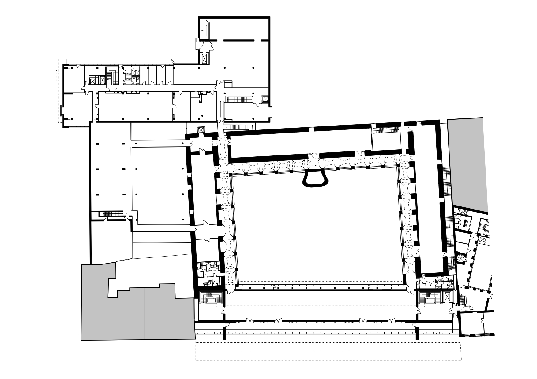
Soubor galerie je situován na prestižním místě v centru města mezi nábřežím Dunaje a historickým centrem. Je součástí historické městské struktury a skládá se z kontrastních architektonických vrstev baroka, neoklasicismu a vrstev, které navrhoval architekt Vladimír Dedeček v 70. letech minulého století. Tato architektura je vynikajícím reprezentantem východoevropského pozdně moderního brutalismu. Kromě obnovy a rozšíření stávajících výstavních prostor byl areál doplněn o další prostory a objemy. Je také místem heterogenní materiality původních barokních vojenských kasáren a ocelových staveb s hliníkovými plášti ze 70. let období architekta Vladimíra Dedečka.

Národní galerie byla neobyčejně komplexním a mnohovrstevným úkolem. Kromě splnění nových požadavků programu na omezené ploše pozemku byla obzvláště náročná rekonstrukce pozdně moderního období za podmínek chybějící metodologie jeho obnovy. Bylo také nutné korigovat různá provizoria pocházející z předchozích přestaveb v 50. a 70. letech minulého století. V barokním korpusu areálu byl vytvořen nový centrální vstupní vestibul a výstavní prostory byly doplněny o novou expoziční halu pro velké instalace a akce.

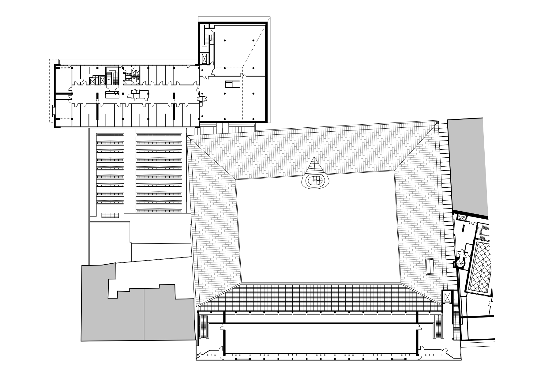
K objemům souboru bylo přidáno těleso nového depozitáře. Původně relativně uzavřený soubor je koncipován jako areál otevřený pro veřejnost prostřednictvím nádvoří, pasáží a průchodností prostorů parteru. Má být místem široké škály různých aktivit. Již několik měsíců po dokončení v prosinci 2022 se stal vyhledávaným živým místem centra Bratislavy. Prostředí tohoto komplexu má inspirovat radikálním sousedstvím autonomních architektur baroka, pozdní moderny a dnešní architektury s jejich jedinečnými výstavními prostory.

Z hlediska materiálové koncepce byly pro různé části souboru uplatněny různé postupy. Cenné barokní arkády nádvoří byly pečlivě restaurovány. Odvrácená fasáda barokní části byla během předchozích přestaveb vážně poškozena. Při naší rekonstrukci byla obnovena ne jako replika, ale ve své tektonické podstatě. Pozdně moderní části areálu z 70. let minulého století byly tvořeny ocelovými nosnými konstrukcemi. Jejich fasády musely být kompletně přezděny kvůli jejich nedostatečným tepelně-fyzikálním vlastnostem. Byl použit původní výrazný červeno-bílý barevný kód tohoto období. Nové hliníkové fasádní prvky jsou částečně replikou těch původních. Původní ALU lamely se svým autentickým zvětralým povrchem, sejmuté z odvrácené barokní fasády, byly osazeny na nový objem depozitáře. Mnohé původní povrchy, materiály a prvky byly znovu použity na různých místech. Zničené kamenné dlažby byly použity jako plnivo v terazzových podlahách barokních arkád. Téměř všechny venkovní veřejné plochy jsou upraveny tak, aby vsakovaly vodu. Vzrostlé stromy na nádvoří zůstaly zachovány.
Autorská zpráva
Autoři: Architekti BKPŠ / Martin Kusý II., Pavol Paňák, Martin Kusý III., Mária Michalič Kusá, Jana Paňáková
Autor rekonstrukce a dostavby z 60.-70. let: Vladimír Dedeček
Foto: Matej Hakár, Ján Kekeli


































Kaskády Hranice jsou skvělým příkladem toho, že i bytová výstavba může mít kvalitní architekturu, promyšlený urbanismus a příjemný prostor pro…
Architektura musí souviset s místem, nikoli místo s architekturou. Proto jakékoli stavby umožňující realizaci na různých místech nejsou ARCHITEKTUROU.
Z mého pohledu je fajn vidět, jak se i u tak „běžné“ věci, jako jsou překlady, řeší systémovost a přesnost!
Praktické řešení, hlavně z pohledu rychlosti výstavby a přesnosti👍 U těchto systémových prvků dává smysl, že zjednodušují realizaci a pomáhají…
Zajímavý posun ve stavebnictví, je vidět, že se dnes klade velký důraz hlavně na rychlost výstavby a přesnost provedení. Systémové…