Tři výrazné domy studia edit! architects doplní nový obytný blok u Smíchovského nádraží. Každý z domů – Noir, Rot a Champagne – přináší specifický architektonický styl a barevnou paletu. Projekt developera Sekyra Group integruje moderní architektonické principy do tradiční městské struktury a doplňuje širší plán revitalizace této části Prahy. Výstavba započne v prosinci 2024.

Architektonické ztvárnění domů Noir, Rot a Champagne studia edit! architects respektuje charakter lokality a zároveň odpovídá současným nárokům na komfortní městské bydlení. Domy jsou vizuálně jednoduše rozpoznatelné, barevně výrazné, přesto harmonicky začleněné do okolního prostředí. „Každý z domů má svou specifickou identitu. Noir s tmavou fasádou svým objemem navazuje na stávající zástavbu, Rot se svými zaoblenými tvary, které mu dodávají otevřený a přívětivý charakter a Champagne přinášející do lokality minimalistickou eleganci,“ popisuje záměr Vítězslav Danda ze studia edit! architects.

House Noir
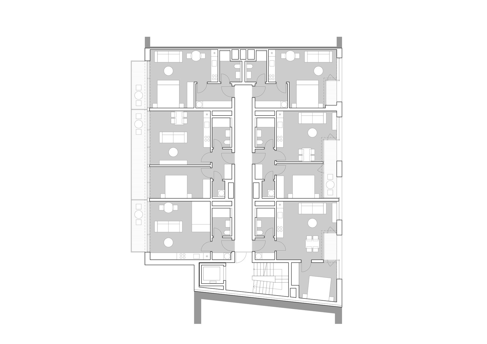
Dům Noir s tmavou fasádou navazuje na jedinou původní stavbu, která v bloku zůstala zachována – činžovní dům z přelomu 19. a 20. století. Snaha o plynulé propojení budov ovlivnila dispoziční řešení nového domu, původní stavba je totiž užší než plánovaná zástavba. Přechod tvoří vertikální komunika-ce kopírující šířku staršího domu. Nový dům se následně rozšiřuje tak, aby odpovídal rozměrům pláno-vaných vedlejších staveb. Poslední patro zároveň po vzoru domů ze třicátých let částečně ustupuje, díky čemuž dům při pohledu z ulice působí nižší.

V přízemí jsou umístěny obchodní jednotky, které využívají strategické polohy na rušné Nádražní ulici. Každý byt orientovaný do ulice disponuje lodžií, přičemž zejména v prvním podlaží slouží tyto venkovní prostory jako přirozená ochrana před hlukem a oddělují obytný prostor od retailových ploch.
Velkorysejší balkony jsou umístěny do klidného vnitrobloku. Také díky vyšší míře prosklení směrem do vnitrobloku a orientaci na západ působí byty světlým vzdušným dojmem. Čistý design fasády domu podtrhuje moderní hliníkové ostění a navazující výplně otvorů s integrovaným systémem stínění.
Autorská zpráva
Autoři edit! / Ivan Boroš, Juraj Calaj, Vítězslav Danda, Jakub Vysoký
Místo Praha-Smíchov
Rok projektu 2024
Rok dokončení 2026
Klient Sekyra Group a.s.
Fotografie / Vizualizace DOUSEK-ZÁBORSKÝ, edit!

Bytový dům Iconic od studia edit!
Smíchov city první fáze
























Architektura musí souviset s místem, nikoli místo s architekturou. Proto jakékoli stavby umožňující realizaci na různých místech nejsou ARCHITEKTUROU.
Z mého pohledu je fajn vidět, jak se i u tak „běžné“ věci, jako jsou překlady, řeší systémovost a přesnost!
Praktické řešení, hlavně z pohledu rychlosti výstavby a přesnosti👍 U těchto systémových prvků dává smysl, že zjednodušují realizaci a pomáhají…
Zajímavý posun ve stavebnictví, je vidět, že se dnes klade velký důraz hlavně na rychlost výstavby a přesnost provedení. Systémové…
Jako problém vidím hlavně "lavičky" v prostoru sdíleném s cyklisty. Neměly by mít třeba tyče s praporky, jako dětské nákupní…