Trojúhelníková parcela. Tři strany, tři domy.
Rafinovaná geometrie tří solitérních objektů.
Náměstí s průhledy. Zeleň. Fontány. Socha.
Stíny, světlo, ranní opar, západ slunce.
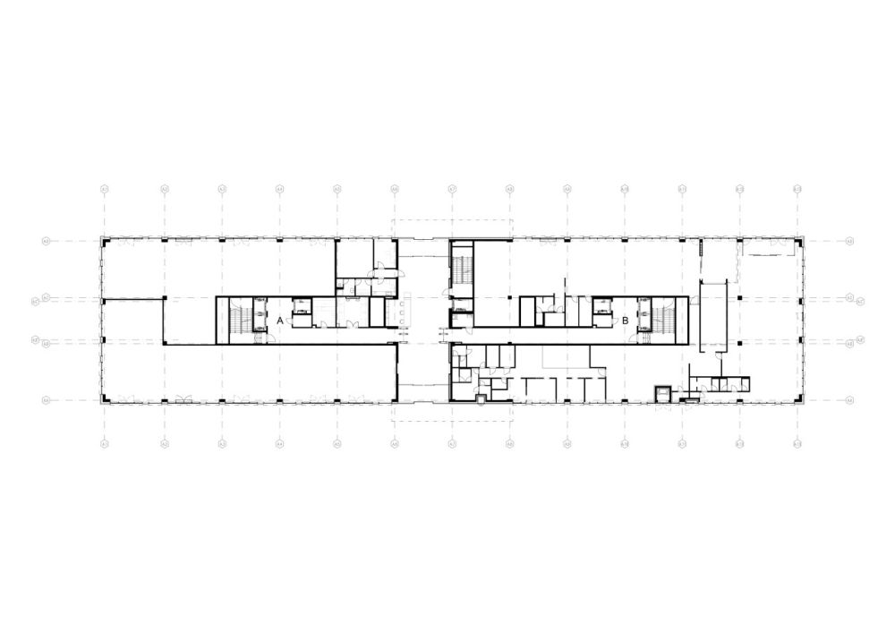
Místo: Administrativní komplex byl postaven na ploše bývalých Pražských akciových strojíren, dříve Ruston a spol., známý pod zlidovělým názvem Rustonka. Trojúhelníková parcela je vymezena ulicemi K Olympiku, Sokolovská, Rohanské nábřeží a U Rustonky, poblíž sídliště a stanice metra Invalidovna a hotelu Olympik.
Koncept: Velkorysé jednoduché objemy administrativních budov jsou na pozemku umístěny zdánlivě nahodile. Ve skutečnosti finálnímu řešení předcházelo nespočet variant výpočtů ploch a úhlů, rozmístění a velikost jednotlivých hmot, a zkoumání jejich vzájemných vazeb. Výsledkem je pečlivě zkonstruovaná geometrie tří stejných objemů a volného prostoru mezi těmito objemy.
Architektonické řešení odkazuje na industriální charakter lokality a její genius loci. Velké hmoty, sedmipodlažní kancelářské budovy, vybavené špičkovou technologií, stroje na práci. Industriální cihelná fasáda v barvě černé a hnědé, štíhlá vysoká okna s výraznými šambránami a venkovními žaluziemi. V přízemí obchodní plochy, kavárny, restaurace. Velkorysé vstupní lobby s výraznou markýzou. Střešní krajina, plná technologií, s terasami, krytými vysokou atikou a žaluziemi.
Veřejný prostor: Návrh prostoru mezi budovami se pro nás stal samostatným tématem. Spoluautorem celkového konceptu rozvržení terénu a zpevněných venkovních ploch je krajinářský architekt Martin Barry. Základní geometrie se v návrhu dělí a rozpadá na jednotlivé linie, prvky, materiály. Celková kompozice je horizontálně i výškově rozdělena na jednotlivé široké chodníky podél objektů, propojených rampou a schody, poblíž centrálního náměstí jsou umístěny dvě fontány. Rostlý terén je od zpevněných ploch oddělen opěrnými stěnami. Na zatravněné ploše jsou atypické lavice k sezení. Divoký charakter zeleně, odkazující k industriální historii místa, vznikl v úzké koordinaci autorů s krajinářskou architektkou Janou Pyškovou.
Na piazzettě mezi budovami se autoři, ve spolupráci s investorem, rozhodli umístit nepřehlédnutelné dílo s názvem Vista Mars od sochaře Jiřího Příhody, laureáta ceny Jindřicha Chalupeckého v roce 1997. Futuristická ocelová otáčející se spirála s leštěným nerezovým povrchem, s panoramatickým snímkem Marsu na velkoplošné obrazovce, s možností vstupu dovnitř objektu.
Autorská zpráva
Foto: BoysPlayNice
Investor: White Star Real Estate; developer J&T Real Estate
Autoři: Studio CMC architects – Vít Máslo, David Richard Chisholm, Evžen Dub; spolupráce Miroslav Peterka, architekt a HIP, Aneta Všechovská Zadáková, architekt, Martin Barry, krajinářský architekt (celkový koncept řešení a projekt), Jana Pyšková, krajinářský architekt (návrh zahradních úprav)
Rozloha: zastavěná plocha 7000 m2; hrubá podlahová plocha (nadzemní část) 47 250 m2; užitná plocha – kanceláře 36 000 m2 , obchodní plochy 4500 m2
Dodavatel: Sdružení GEOSAN – BAK; spolupracovali NĚMEC POLÁK – statika; AREA TZB – technické zařízení budovy; EXPLAN – elektro; SAUTER – měření a regulace; Triangel – fasáda, Altech, Dlažba BEST, LIKO-S – příčky v interiérech
Náklady: 1.5 mld Kč
Související články:
Rustonka 2
Přístavba kanceláře ve Vysokém Mýtě
Administrativní budova firmy Konplan
Centrála pro ČSOB v pražských Radlicích
Kotelna Park – II. fáze
Rustonka 2
Přístavba kanceláře ve Vysokém Mýtě
Administrativní budova firmy Konplan
Centrála pro ČSOB v pražských Radlicích
Kotelna Park – II. fáze









































Akustika je často podceňovaný, ale zásadní aspekt kvality bydlení... Článek dobře ukazuje, že nejde jen o samotný materiál, ale hlavně…
Oceňuji hlavně důraz na kvalitu provedení, nestačí jen dobrý materiál, ale i správná realizace. V praxi právě detaily často rozhodují…
Skvělý článek o akustické kvalitě staveb, která je často opomíjená, ale velmi důležitá. Systémy Heluz nabízejí dobrá řešení pro zvukovou…
Zajímavé téma, díky za sdílení. Tyhle novinky z praxe mají vždycky největší přínos 👍
Zajímavý webinář zaměřený na novinky od společnosti Heluz. Oceňuji hlavně představení cihel Heluz AKU a jejich výsledků v oblasti zvukové…